Exklusives Wohnen am Kreuzbergl – Villen St. Martin mit einzigartigem Panoramablick

Haus , 9020 Klagenfurt am Wörthersee , Lönsweg 9B


Dieses außergewöhnliche Neubauprojekt befindet sich in einer der exklusivsten Wohnlagen Klagenfurts – im begehrten Stadtteil St. Martin am Kreuzbergl. Die Umgebung zählt zu den gehobensten Wohngegenden der Stadt und vereint absolute Ruhe, Natur und Privatsphäre mit einer hervorragenden Infrastruktur. Die Villen liegen am sonnigen Südhang und bieten dadurch nicht nur optimale Lichtverhältnisse, sondern auch ein einzigartiges Wohngefühl mit Blick ins Grüne. Das Naherholungsgebiet Kreuzbergl befindet sich in unmittelbarer Nähe und lädt zu Spaziergängen, Sport und Entspannung ein. Gleichzeitig sind das Stadtzentrum sowie der Wörthersee in wenigen Minuten erreichbar – eine Kombination, die höchste Lebensqualität garantiert.

Beschreibung der Immobilie

Exklusives Wohnen am Kreuzbergl – Villen St. Martin mit einzigartigem Panoramablick

Das Projekt – Villen St. Martin



Am Lönsweg entsteht ein exklusives Wohnensemble aus drei modernen Villen (9A, 9B und 9C), die terrassenförmig in den Hang integriert sind und höchsten architektonischen sowie technischen Ansprüchen gerecht werden.



Die klare, zeitlose Architektur verbindet moderne Geradlinigkeit mit eleganter Wohnkultur und schafft ein hochwertiges Gesamtbild. Großzügige Glasflächen, weitläufige Terrassen und durchdachte Grundrisse sorgen für lichtdurchflutete Räume und ein einzigartiges Wohnambiente. 



Die drei Villen unterscheiden sich in ihrer Struktur:



  • Villa 9A: Villa Klagenfurt - Bungalow
  • Villa 9B: Villa St. Martin - Erdgeschoss und Obergeschoss
  • Villa 9C: Villa Wörthersee - Erdgeschoss, Obergeschoss und 2. Obergeschoss


Alle Einheiten zeichnen sich durch ein hohes Maß an Privatsphäre, uneinsichtige Außenflächen und ein luxuriöses Raumgefühl aus.



Besonderes Augenmerk wurde auf nachhaltige und zukunftsorientierte Bauweise gelegt. Die Beheizung erfolgt mittels moderner Erdwärmepumpe mit Fußbodenheizung, ergänzt durch Deckenkühlung für angenehmes Raumklima auch im Sommer. Hochwertige Materialien, großzügige Fensterflächen mit 3-fach Verglasung sowie elektrische Raffstores unterstreichen den gehobenen Standard dieses Projekts. 



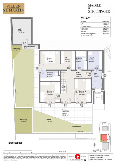
Ihre Einheit – Villa St. Martin (Villa 2) | Maisonette mit Hauscharakter



Diese exklusive Maisonette-Einheit erstreckt sich über zwei Ebenen und vereint großzügiges Wohnen mit dem Gefühl eines eigenen Hauses.



Im Obergeschoss bildet die beeindruckende Wohnküche mit ca. 67 m² das Herzstück der Einheit. Große Fensterflächen sorgen für lichtdurchflutete Räume und bieten direkten Zugang zur Terrasse – ideal für entspanntes Wohnen und stilvolles Genießen. 



Das Erdgeschoss bietet mehrere Schlafzimmer, zwei Bäder sowie zusätzliche Nebenräume und schafft damit ausreichend Platz für Familie, Gäste oder Homeoffice. Der direkte Zugang zur großzügigen Terrasse und dem privaten Garten unterstreicht den besonderen Wohnkomfort. 



Mit ca. rund 177 m² Wohnfläche und weitläufigen Außenflächen bietet diese Einheit exklusives Wohnen auf zwei Ebenen – mit echtem Hausgefühl.



Hinweis: Die dargestellten Bilder und Visualisierungen dienen als Symbolbilder und können von der tatsächlichen Ausführung abweichen.




Ausstattung & Highlights



Dieses Projekt steht für modernes High-End-Wohnen auf höchstem Niveau. Edle Parkettböden, großformatige Fliesen, hochwertige Sanitärausstattung sowie durchdachte technische Lösungen sorgen für maximalen Wohnkomfort.



Die großzügigen Außenflächen in Form von Terrassen, Balkonen oder Gärten erweitern den Wohnraum ins Freie und schaffen private Rückzugsorte mit besonderer Atmosphäre. Die Bauweise sowie die Ausstattung orientieren sich an höchsten Qualitätsstandards und bieten eine nachhaltige Wertbeständigkeit.



Fazit



Diese Immobilie vereint exklusive Lage, moderne Architektur und hochwertige Ausstattung zu einem einzigartigen Wohnkonzept. Ob als stilvoller Lebensmittelpunkt oder wertbeständige Investition – die Villen St. Martin erfüllen höchste Ansprüche an modernes Wohnen.




Besichtigung



Gerne präsentieren wir Ihnen dieses außergewöhnliche Projekt persönlich und beraten Sie individuell zu den verfügbaren Einheiten.

Vereinbaren Sie noch heute Ihren Besichtigungstermin – wir freuen uns auf Ihre Anfrage.

Infrastruktur / Entfernungen

Gesundheit
Arzt <225m
Apotheke <950m
Krankenhaus <1.675m
Klinik <1.750m

Kinder & Schulen
Schule <875m
Kindergarten <1.075m
Universität <950m
Höhere Schule <2.350m

Nahversorgung
Supermarkt <675m
Bäckerei <750m
Einkaufszentrum <2.700m

Sonstige
Bank <750m
Geldautomat <750m
Post <1.500m
Polizei <925m

Verkehr
Bus <175m
Autobahnanschluss <725m
Bahnhof <675m
Flughafen <5.500m

Angaben Entfernung Luftlinie / Quelle: OpenStreetMap

Eckdaten Objektnr. 563

Art: Haus
Land: Österreich
Baujahr: 2025
Zustand: Erstbezug
Alter: Neubau
Kaufpreis: 1.850.000,00
Wohnfläche: 174,49 m²
Zimmer: 5,50
Bäder: 2
WC: 3
Terrassen: 1
Heizwärmebedarf:  B  43,00 kWh/m²a
fGEE:  A+  0,66
Nebenkostenübersicht Kauf Immobilie merken Exposé

Ausstattung

Parkett, Fliesen, Erdwärme, Fußbodenheizung, Wohnküche / offene Küche, Badewanne, Dusche


Immobilie anfragen


Ihre persönliche Beratung

Mag. Anna- Katharina Kos

Altior Immobilien GmbH.

T +43 664 4118523