SCHLÜßLBERG | STRAßFELD: Idyllisches Zweifamilienhaus mit großzügigem, sonnigem Garten und beeindruckendem Fernblick!

Haus - Zweifamilienhaus, 4707 Schlüßlberg


Nähe Bahnhof Schlüßlberg

Beschreibung der Immobilie

SCHLÜßLBERG | STRAßFELD: Idyllisches Zweifamilienhaus mit großzügigem, sonnigem Garten und beeindruckendem Fernblick!

VKB-Immobilien GmbH „Wir haben immer das Wohl unserer Kunden im Fokus. Das macht uns erfolgreich und unsere Kunden zufrieden.“





Dieses ältere und teils sanierungsbedürftige Zweifamilienwohnhaus befindet sich in leichter Hanglage am westlichen Rand der zentralen Ortschaft Schlüßlberg. Die Liegenschaft genießt eine sehenswerte Aussichtslage mit hervorragender Infrastruktur, optimaler Verkehrsanbindung sowie einer gut ausgebauten Nahversorgung. Sie profitieren von einem reizvollen Umfeld mit kulturhistorischem Erbe (Schloss Schlüßlberg), vielfältigen Freizeitangeboten, Bildungseinrichtungen und einem stabilen sozialen sowie wirtschaftlichen Umfeld. Die in unmittelbarer Nähe gelegenen, wirtschaftlich relevanten Gewerbe- und Handelsparks bestärken die Attraktivität dieser Immobilie sowohl im Hinblick auf die private Wohnnutzung als auch auf berufliche Nutzungsmöglichkeiten im Sinne einer Kombination von Wohnen und Arbeiten.



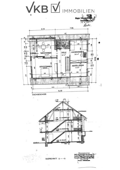
Bereits beim Betreten des großzügig dimensionierten Eingangsbereichs vermittelt dieses Wohnhaus ein ausgeprägtes Gefühl von Weitläufigkeit und Wohnkomfort. Die Vielzahl an Wohn- und Schlafräumen eröffnet eine bemerkenswerte Bandbreite an Nutzungsmöglichkeiten und schafft ideale Voraussetzungen für individuelle Entfaltung – eingebettet in ein anspruchsvolles Wohnambiente



Das Dachgeschoss wurde im Rahmen der baulichen Planung bereits vorausschauend für die potenzielle Errichtung einer zweiten Wohneinheit vorbereitet und bietet somit eine ausgezeichnete Grundlage für eine individuelle Adaptierung gemäß Ihren persönlichen Vorstellungen und Wünschen. Aktuell stehen insgesamt sieben Wohn- bzw. Schlafräume zur Verfügung.



Dem großzügig konzipierten Wohnhaus ist straßenseitig eine Einzelgarage samt angrenzendem Carport vorgelagert. Darüber hinaus stehen für Gäste zusätzliche Freistellplätze im Außenbereich zur Verfügung. Die weitläufige Gartenfläche mit liebevoll angelegtem Zierpflanzen- und Obstbaumbestand lässt das Herz eines jeden Hobbygärtners höherschlagen. Aufgrund der großzügigen Grundstücksdimension steht auch einer künftigen Errichtung eines Swimmingpools aus baulicher Sicht nichts im Wege. Für zusätzlichen Stauraum stehen Ihnen darüber hinaus mehrere Räumlichkeiten im Kellergeschoss zur Verfügung.





Ihr zukünftiges Wohnerlebnis im kurzen Überblick!



  • "Idyllisches ländliches Zweifamilienhaus" - Für Handwerker und Hobbygärtner!
  • Großzügiger Grundriss - 7 Wohnräume zur Verfügung
  • Ca. 2010 - Neue Vaillant Gastherme mit 300 Liter Warmwasserspeicher
  • Teilmöbliert
  • Riesiger Garten mit Obstbäume und diverse Pflanzenbestände
  • Hauseigene Brunnenversorgung
  • Gartenhütte
  • Geräumiges Kellerabteil für ihre Hobby und Freizeitaktivitäten
  • Flexibles Wohnen (Jung und Alt) oder auch Wohnen und Arbeiten in Kombination möglich!
  • Und noch vieles mehr...


Detailunterlagen:
Bei Interesse übermitteln wir Ihnen gerne die Pläne und Detailinformationen der Liegenschaft bzw. laden wir Sie jederzeit gerne zu einer Besichtigung ein. Bitte haben Sie Verständnis, dass wir aufgrund der Nachweispflicht gegenüber dem Eigentümer nur Anfragen mit vollständigen Kontaktdaten beantworten können. Informationsmaterial und Terminvereinbarung unter der Telefonnummer 07242/ 617 21  Durchwahl 2339 oder 0676/83 667 782.



Da wir die Privatsphäre unserer Klienten wahren möchten, bitten wir um Ihr Verständnis, dass Anfragen sowie die Übermittlung weiterführender Unterlagen (Exposé) ausschließlich schriftlich und unter vollständiger Angabe Ihrer Kontaktdaten (Name, Anschrift, Telefonnummer) bearbeitet werden können.



Unverbindliche Unterlage. Die angegebenen Informationen sind nach bestem Wissen erstellt, Druck- bzw. Redaktionsfehler oder Irrtümer vorbehalten. Für Angaben, Auskünfte und Flächen, die uns von Eigentümerseite bzw. Dritten zur Verfügung gestellt wurden, können wir keine Haftung übernehmen. Gem. § 5, Abs. 3 Maklergesetz weisen wir darauf hin, dass die Firma VKB-Immobilien GmbH als Doppelmakler tätig ist.


Der Vermittler ist als Doppelmakler tätig.

Infrastruktur / Entfernungen

Gesundheit
Arzt <500m
Krankenhaus <4.000m
Apotheke <500m

Kinder & Schulen
Schule <500m
Kindergarten <500m

Nahversorgung
Supermarkt <1.500m
Bäckerei <3.000m
Einkaufszentrum <3.500m

Sonstige
Bank <500m
Geldautomat <500m
Post <500m
Polizei <3.500m

Verkehr
Bus <500m
Autobahnanschluss <5.500m
Bahnhof <500m

Angaben Entfernung Luftlinie / Quelle: OpenStreetMap

Eckdaten Objektnr. 5117

Art: Haus - Zweifamilienhaus
Land: Österreich
Baujahr: 1964
Zustand: Teil_vollsaniert
Möbliert: Teil
Alter: Altbau
Kaufpreis: 349.000,00
Wohnfläche: 200,00 m²
Grundstücksfl.: 1.369,00 m²
Zimmer: 7
Bäder: 2
WC: 3
Balkone: 1
Terrassen: 1
Stellplätze: 3
Heizwärmebedarf:  F  225,00 kWh/m²a
fGEE:  E  2,56
Nebenkostenübersicht Kauf Immobilie merken Exposé

Ausstattung

Parkett, Fliesen, Gas, Zentralheizung, Einbauküche, Bad mit Fenster, Badewanne, Dusche, Carport, Garage, Parkplatz, Wasch/Trockenraum


Immobilie anfragen


Ihre persönliche Beratung

VKB-Immobilien GmbH

Romana Rangl

VKB-Immobilien GmbH