Dachgeschossappartement mit Terrasse in ruhiger Naturlage

Wohnung , 8785 Hohentauern


in Hohentauern, sonnige und ruhige Lage

Beschreibung der Immobilie

Dachgeschossappartement mit Terrasse in ruhiger Naturlage

Großzügige Dachgeschosswohnung mit Terrasse



Weitläufiges Wohnen mit besonderem Wohnkomfort



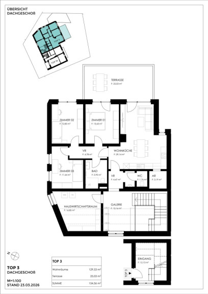
Diese beeindruckende Eigentumswohnung im Dachgeschoss bietet mit ca. 130 m² Wohnfläche ein außergewöhnlich großzügiges Raumangebot und überzeugt durch eine rund 25 m² große Terrasse – perfekt, um die Ruhe und den Ausblick in vollen Zügen zu genießen.



Die Raumaufteilung schafft ein harmonisches Zusammenspiel aus Offenheit und privaten Rückzugsbereichen: Ein Vorraum erschließt die Wohnung und bietet Zugang zu den weiteren Räumlichkeiten. Der weitläufigen Wohn-, Ess- und Küchenbereich mit Zugang zur Terrasse bildet das Herzstück der Immobilie. Ergänzt wird das Raumangebot durch drei Zimmer, ein Badezimmer, ein separates WC, einen weiteren Vorraum sowie einen praktischen Abstellraum.



Ein zusätzlicher Mehrwert ist der ca. 17 m² große Hauswirtschaftsraum, der sich direkt neben der Wohnung befindet und zusätzlichen Stauraum sowie funktionale Nutzungsmöglichkeiten bietet.



Raumaufteilung im Überblick:
Vorraum | WC | Badezimmer | Vorraum | 3 Zimmer | Wohn-Ess-Küche mit Terrassenzugang | Abstellraum | Hauswirtschaftsraum



Diese Immobilie eignet sich gleichermaßen zur Eigennutzung wie auch als attraktive Anlageobjektlösung, da sie zweitwohnsitzfähig ist und eine touristische Vermietung ermöglicht wird.



Nutzen Sie diese besondere Gelegenheit und verwirklichen Sie Ihr Wohn- oder Investmentprojekt in dieser einzigartigen Dachgeschosswohnung in naturnaher Lage.


Der Vermittler ist als Doppelmakler tätig.

Infrastruktur / Entfernungen

Gesundheit
Arzt <2.000m
Apotheke <7.000m

Kinder & Schulen
Schule <6.500m
Kindergarten <7.000m

Nahversorgung
Supermarkt <7.000m
Bäckerei <6.500m

Sonstige
Bank <2.500m
Geldautomat <2.500m
Polizei <7.000m
Post <2.500m

Verkehr
Bus <1.000m
Autobahnanschluss <7.500m
Bahnhof <7.000m
Flughafen <7.500m

Angaben Entfernung Luftlinie / Quelle: OpenStreetMap

Eckdaten Objektnr. 11067

Art: Wohnung
Land: Österreich
Kaufpreis: 375.000,00
Wohnfläche: 129,53 m²
Zimmer: 4
Bäder: 1
WC: 1
Terrassen: 1
Stellplätze: 1
Heizwärmebedarf: 83,60 kWh/m²a
fGEE: 0,83
Nebenkostenübersicht Kauf Immobilie merken Exposé

Ausstattung

Fußbodenheizung, Zentralheizung, Wohnküche / offene Küche, Dusche


Immobilie anfragen


Ihre persönliche Beratung

wohn4you Immobilien Bacher & Steininger Immobilienmakler KG

Hans Jürgen Bacher

wohn4you Immobilien Bacher & Steininger Immobilienmakler KG

T +43 3612 25080

H +43 676 49 756 73

F +43 3612 25081