Appartement in den Bergen – ruhig, modern, besonders

Wohnung , 8785 Hohentauern


in Hohentauern, sonnige und ruhige Lage

Beschreibung der Immobilie

Appartement in den Bergen – ruhig, modern, besonders

Gartenwohnung mit großzügigem Außenbereich in Hohentauern



Wohnen mit viel Platz und direktem Zugang ins Grüne



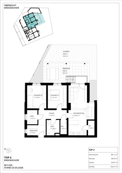
Diese attraktive Eigentumswohnung im Erdgeschoss bietet auf ca. 88 m² Wohnfläche ein großzügiges Raumkonzept und überzeugt durch ihre weitläufige Terrasse mit ca. 29 m² sowie einen privaten Garten mit rund 40 m² – ideal, um entspannte Stunden im Freien zu genießen.



Der durchdachte Grundriss sorgt für ein angenehmes Wohngefühl: Ein Vorraum bildet den Eingangsbereich und führt zu den Räumlichkeiten. Neben einem Hauswirtschaftsraum, einem Badezimmer und einem separaten WC stehen zwei vielseitig nutzbare Zimmer zur Verfügung. Das Herzstück der Wohnung ist der offene Wohn-, Ess- und Küchenbereich mit Zugang zur Terrasse und in den eigenen Garten.



Raumaufteilung im Überblick:
Vorraum | Hauswirtschaftsraum | Badezimmer | WC | Gang | 2 Zimmer | Wohn-Ess-Küche mit Zugang zu Terrasse und Garten



Beheizt wird die Wohnung mittels moderner Pelletsheizung in Kombination mit Fußbodenheizung und Radiatoren, was für ein angenehmes und nachhaltiges Wohnklima sorgt.



Diese Wohnung ist sowohl für Eigennutzer als auch für Investoren interessant: Dank Zweitwohnsitzfähigkeit und der Möglichkeit zur touristischen Vermietung bietet sie eine ideale Verbindung aus persönlicher Nutzung und attraktiver Rendite.



Nutzen Sie diese Gelegenheit und sichern Sie sich Ihr neues Zuhause mit Garten oder eine wertbeständige Anlage in naturnaher Lage.


Der Vermittler ist als Doppelmakler tätig.

Infrastruktur / Entfernungen

Gesundheit
Arzt <2.000m
Apotheke <7.000m

Kinder & Schulen
Schule <6.500m
Kindergarten <7.000m

Nahversorgung
Supermarkt <7.000m
Bäckerei <6.500m

Sonstige
Bank <2.500m
Geldautomat <2.500m
Polizei <7.000m
Post <2.500m

Verkehr
Bus <1.000m
Autobahnanschluss <7.500m
Bahnhof <7.000m
Flughafen <7.500m

Angaben Entfernung Luftlinie / Quelle: OpenStreetMap

Eckdaten Objektnr. 11066

Art: Wohnung
Land: Österreich
Kaufpreis: 335.000,00
Wohnfläche: 88,11 m²
Zimmer: 3
Bäder: 1
WC: 1
Terrassen: 1
Stellplätze: 1
Garten: 39,87 m²
Heizwärmebedarf:  C  83,60 kWh/m²a
fGEE:  A  0,83
Nebenkostenübersicht Kauf Immobilie merken Exposé

Ausstattung

Fußbodenheizung, Zentralheizung, Wohnküche / offene Küche


Immobilie anfragen


Ihre persönliche Beratung

wohn4you Immobilien Bacher & Steininger Immobilienmakler KG

Hans Jürgen Bacher

wohn4you Immobilien Bacher & Steininger Immobilienmakler KG

T +43 3612 25080

H +43 676 49 756 73

F +43 3612 25081