Schöne 3-Zimmerwohnung in zentraler Lage - LEOBERSDORF

Wohnung , 2544 Leobersdorf


Beschreibung der Immobilie

Schöne 3-Zimmerwohnung in zentraler Lage - LEOBERSDORF

Schöne 3-Zimmerwohnung in zentraler Lage Leobersdorf.



Die Küche, Badezimmermöbel, Couch, Esstisch (ohne Sesseln), Wandgarderobe können dem Vormieter abgelöst werden!



Ausstattung:



  • Ziegelmassivbauweise
  • Wohnraumlüftung
  • Fußbodenheizung (Fernwärme)
  • Badezimmer inkl Dusche
  • KFZ-Stellplatz


Mietkosten:



  • zzgl. Heizkosten (Fernwärme eigener Zähler)
  • zzgl. Stromkosten (eigener Zähler)




Die angeführte Kaution versteht sich als Baukostenzuschuss, welcher bei Auszug, nach Abzug der monatlichen Abwertung von 0,25%, wieder ausbezahlt wird.



Das Bauvorhaben wurde mit Mitteln der NÖ Landesregierung (Wohnbauförderung) gefördert. Der Hauptmietzins erhöht sich entsprechend den Förderrichtlinien der Wohnbauförderung.



Aufgrund der individuellen Wohnbauförderungen erhalten Sie eine detaillierte Erklärung bei unserem Beratungsgespräch.



Alle Informationen beruhen auf Angaben des Abgebers und sind ohne Gewähr.



Satz- und Tippfehler vorbehalten.




Wir weisen darauf hin, dass zwischen dem Vermittler und dem zu vermittelnden Dritten ein familiäres oder wirtschaftliches Naheverhältnis besteht.


Der Immobilienmakler erklärt, dass er – entgegen dem in der Immobilienwirtschaft üblichen Geschäftsgebrauch des Doppelmaklers – einseitig nur für den Vermieter tätig ist.

Infrastruktur / Entfernungen

Gesundheit
Arzt <500m
Apotheke <500m
Klinik <7.500m
Krankenhaus <8.000m

Kinder & Schulen
Schule <500m
Kindergarten <500m

Nahversorgung
Supermarkt <500m
Bäckerei <500m
Einkaufszentrum <1.000m

Sonstige
Bank <1.000m
Geldautomat <1.000m
Post <1.000m
Polizei <1.000m

Verkehr
Bus <500m
Bahnhof <1.000m
Autobahnanschluss <1.000m
Straßenbahn <8.000m
Flughafen <4.500m

Angaben Entfernung Luftlinie / Quelle: OpenStreetMap

Eckdaten Objektnr. 294762149

Art: Wohnung
Land: Österreich
Baujahr: 2021
Zustand: Neuwertig
Alter: Neubau
Gesamtmiete: 840,00
Kaltmiete (netto): 550,91 €
Kaltmiete: 760,99 €
Betriebskosten: 210,07 €
MwSt Gesamt: 79,01 €
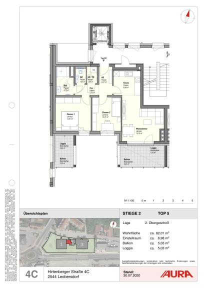
Wohnfläche: 62,01 m²
Zimmer: 3
Bäder: 1
WC: 1
Balkone: 1
Stellplätze: 1
Keller: 6,98 m²
Heizwärmebedarf: 15,50 kWh/m²a
fGEE: 0,73
Nebenkostenübersicht Miete Immobilie merken Exposé

Ausstattung

Fliesen, Laminatboden, Fußbodenheizung, Personenaufzug, Südbalkon, Dusche, Kabel/Satelliten-TV, Parkplatz


Immobilie anfragen


Ihre persönliche Beratung

AURA Liegenschafts - und Objektverwertungs GmbH

Stephanie Kaiser

AURA Liegenschafts - und Objektverwertungs GmbH

T +43 2256 63 770

H +43 664 85 72 454