Graz - Jakomini - Bürofläche - 4 Räume - 65 m²

Büro / Praxis , 8010 Graz , Schießstattgasse


Diese Bürofläche in der Schießstattgasse, 8010 Graz, besticht durch ihre Nähe zur TU Graz und vielfältige Infrastruktur. Ärzte, Apotheke, Klinik, Schulen, Kindergarten und Universität sind fußläufig erreichbar. Supermärkte, Bäckerei, Einkaufszentrum, Bank, Post, Polizei sowie Bus- und Straßenbahnanschlüsse garantieren optimale Erreichbarkeit und Komfort im steirischen Herzen Graz.

Beschreibung der Immobilie

Graz - Jakomini - Bürofläche - 4 Räume - 65 m²

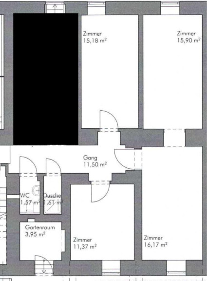
Zur Vermietung gelangt eine Gewerbefläche mit einer Nutzfläche von ca. 65 m² .





Raumaufteilung:
+ 4 Räume, davon 3 getrennt begehbar

+ 1 Raum, nutzbar z.B. als Kaffeeküche

+ Toilette





Diese Fläche eignet sich durch ihr  attraktives  Preis/Leistungsverhältnis als Bürofläche, Homeoffice, Coworking oder Startup.



Alle Räumlichkeiten wurden soeben kernsaniert.



Haben wir Ihr Interesse geweckt?  Kontaktieren Sie uns gerne um einen Besichtigungstermin zu vereinaren.




Wir weisen darauf hin, dass zwischen dem Vermittler und dem zu vermittelnden Dritten ein familiäres oder wirtschaftliches Naheverhältnis besteht.


Der Vermittler ist als Doppelmakler tätig.

Infrastruktur / Entfernungen

Gesundheit
Arzt <250m
Apotheke <500m
Klinik <1.000m
Krankenhaus <1.500m

Kinder & Schulen
Schule <250m
Kindergarten <500m
Universität <500m
Höhere Schule <250m

Nahversorgung
Supermarkt <250m
Bäckerei <500m
Einkaufszentrum <500m

Sonstige
Geldautomat <500m
Bank <500m
Post <250m
Polizei <750m

Verkehr
Bus <250m
Straßenbahn <250m
Autobahnanschluss <4.250m
Bahnhof <1.250m
Flughafen <8.500m

Angaben Entfernung Luftlinie / Quelle: OpenStreetMap

Eckdaten Objektnr. 5195/422986338

Art: Büro / Praxis
Land: Österreich
Baujahr: 1869
Zustand: Teil_vollrenoviert
Alter: Altbau
Kaltmiete (netto): 370,00 €
Kaltmiete: 492,38 €
Betriebskosten: 122,38 €
MwSt Gesamt: 98,48 €
Bürofläche: 64,81 m²
Zimmer: 4
WC: 1
Heizwärmebedarf:  D  135,00 kWh/m²a
Nebenkostenübersicht Miete Immobilie merken Exposé

Ausstattung

Fliesen, Kunststoffboden, Elektro, Etagenheizung, Kabel/Satelliten-TV


Immobilie anfragen


Ihre persönliche Beratung

Kahler Immobilien OG

Gudrun Kahler

Kahler Immobilien OG

T +43 650 82 07 163

H +43 650 82 07 163