DB IMMOBILIEN | Eckreihenhaus in ausgezeichneter Lage !!!

Haus - Reiheneckhaus, 2380 Perchtoldsdorf


Das Haus befindet sich im beliebten Wohnort Perchtoldsdorf, in einer ruhigen Sackgasse am Rande einer Reihenhaussiedlung. Umliegend finden Sie Einfamilienhäuser, Weingärten und Sie erreichen sogar fußläufig in nur wenigen Minuten einen Supermarkt, Ärzte, eine Busstation sowie das wunderschöne Ortszentrum.

Beschreibung der Immobilie

DB IMMOBILIEN | Eckreihenhaus in ausgezeichneter Lage !!!

Dieses charmante Eckreihenhaus in Perchtoldsdorf bietet eine seltene Gelegenheit für alle, die sich ihren Wohntraum nach eigenen Vorstellungen gestalten möchten.



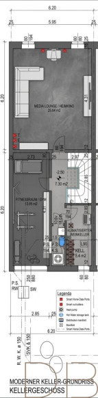
Errichtet im Jahr 1973, erstreckt sich die Liegenschaft über rund 105 m² Wohnfläche und ca. 54 m² Keller, auf einem ca. 210 m² großen Grundstück und überzeugt mit einem familienfreundlichen Grundriss mit 5 Zimmern.



Aber nicht nur für Familien ist dieses Haus sehr interessant, sondern es bietet vielseitige Nutzungsmöglichkeiten – ideal auch für Homeoffice oder man zaubert z.B. aus 2 Räumen gleich einen großen Schlafraum.



Besonders hervorzuheben sind die sonnige, südseitig ausgerichtete Terrasse (ca. 12 m²) sowie die großzügige Loggia mit Blick ins Grüne – ideale Rückzugsorte für entspannte Stunden im Freien.



Beheizung und Warmwasseraufbereitung erfolgen zentral über die Siedlungsanlage. Das Haus ist mit Radiatoren ausgestattet. Dach und Teile der Fassade bestehen aus Eternit.



Die Liegenschaft präsentiert sich in renovierungsbedürftigem Zustand – eine perfekte Basis, um den eigenen Stil und moderne Wohnstandards zu verwirklichen. Damit Sie sich so eine Veränderung besser vorstellen können, habe ich Ihnen auch Bilder mittels KI bearbeitet und angefügt.



Ein ideales Zuhause mit viel Potenzial in attraktiver Lage!



Für genauere Informationen oder zur Vereinbarung eines Besichtigungstermines freue ich mich auf Ihre Kontaktaufnahme!



Noch nichts gefunden? Wir informieren Sie über geeignete Immobilienangebote noch vor allen anderen.
Legen Sie jetzt Ihren individuellen Suchagenten unter folgendem Link an. Wir schicken Ihnen passende Immobilien exklusiv vorab zu.
Suchagent anlegen - https://db-immobilien.service.immo/registrieren/de


Hinweis gemäß Energieausweisvorlagegesetz: Ein Energieausweis wurde vom Eigentümer bzw. Verkäufer, nach unserer Aufklärung über die generell geltende Vorlagepflicht, sowie Aufforderung zu seiner Erstellung noch nicht vorgelegt. Daher gilt zumindest eine dem Alter und der Art des Gebäudes entsprechende Gesamtenergieeffizienz als vereinbart. Wir übernehmen keinerlei Gewähr oder Haftung für die tatsächliche Energieeffizienz der angebotenen Immobilie.


Der Vermittler ist als Doppelmakler tätig.

Infrastruktur / Entfernungen

Gesundheit
Arzt <500m
Apotheke <1.000m
Klinik <2.500m
Krankenhaus <3.500m

Kinder & Schulen
Schule <1.000m
Kindergarten <1.000m
Universität <8.000m
Höhere Schule <5.000m

Nahversorgung
Supermarkt <500m
Bäckerei <1.000m
Einkaufszentrum <2.000m

Sonstige
Bank <1.000m
Geldautomat <1.000m
Post <1.000m
Polizei <1.000m

Verkehr
Bus <500m
U-Bahn <3.500m
Straßenbahn <2.000m
Bahnhof <1.500m
Autobahnanschluss <1.500m

Angaben Entfernung Luftlinie / Quelle: OpenStreetMap

Eckdaten Objektnr. 472

Art: Haus - Reiheneckhaus
Land: Österreich
Baujahr: 1973
Alter: Neubau
Kaufpreis: 560.000,00
Betriebskosten: 163,80 €
MwSt Gesamt: 18,09 €
Wohnfläche: 105,00 m²
Grundstücksfl.: 210,00 m²
Zimmer: 5
Bäder: 1
WC: 2
Terrassen: 1
Keller: 54,00 m²
Nebenkostenübersicht Kauf Immobilie merken Exposé

Ausstattung

Teppichboden, Parkett, Fliesen, Zentralheizung, Einbauküche, Südbalkon, Badewanne, Kabel/Satelliten-TV


Immobilie anfragen


Ihre persönliche Beratung

DB IMMOBILIEN

Doris Breis

db immobilien e.U.

T +43 676 46 22 700