SÜDOSTSEITIGES DACHGESCHOSS MIT SÜDOSTBALKON

Wohnung , 1120 Wien


1120 Wien, Dunklergasse

Beschreibung der Immobilie

SÜDOSTSEITIGES DACHGESCHOSS MIT SÜDOSTBALKON

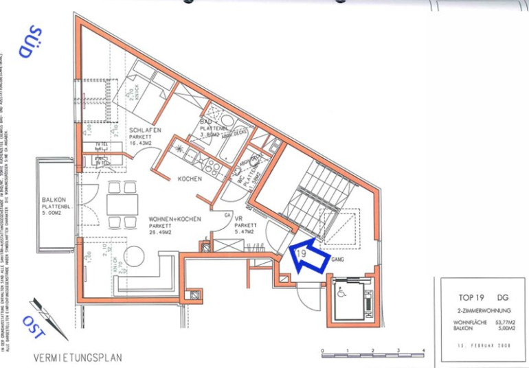
Sonnige 54m² große, südostseitige 2-Zimmer-Wohnung mit 5m² großer Südostterrasse im Dachgeschoss ( BJ 2008 )



( Vorzimmer, Südostterrasse, Wohnzimmer, offene Küche, Schlafzimmer, Badezimmer, WC & Kellerabteil )



--- Dachgeschoss mit Lift ---



Bezugsdatum: 15.04.2026 / 01.05.2026



Vom 5m² großen Vorzimmer gelangt man in das 26m² große, südostseitige Wohnesszimmer mit anschließender 5m² großer Südostterrasse und integrierter, offener Küche. Die moderne Küche ist mit einem Kühlgefrierkombination, Mikrowelle, Geschirrspüler, Ceranfeld und Backrohr ausgestattet. Das 16m² große Schlafzimmer ist südseitig orientiert. Das Badezimmer ist mit einer Wanne, einem Waschtisch, fliesenbündigem Spiegel, Waschmaschinenanschluss, Handtuchtrockner und elektrischer Entlüftung versehen. Es gibt ein separates WC mit elektrischer Entlüftung und Handwaschbecken.



Der Wohnung ist ein Kellerabteil zugeordnet.



PKW-Stellplätze zu mieten möglich um € 120,-- brutto / Monat



Mietvertragskosten bei der Hausverwaltung € 250,--



Infrastruktur: In wenigen Gehminuten gelangt man sowohl zur U-Bahn-Station Längenfeldgasse U4 & U6 als auch zur U-Bahn-Station Margaretengürtel U4. In der nahen Korbergasse befindet sich die Bushaltestelle 12A. In der Schönbrunner Straße befindet sich ein Hofer, ein Billa, eine Apotheke und ein DM. Durch die Nähe zu den öffentlichen Verkehrsmitteln ist man bestens angebunden - auch mit dem PKW gelangt man schnell in den Süden und Westen Wiens. 


Der Immobilienmakler erklärt, dass er – entgegen dem in der Immobilienwirtschaft üblichen Geschäftsgebrauch des Doppelmaklers – einseitig nur für den Vermieter tätig ist.

Infrastruktur / Entfernungen

Gesundheit
Arzt <500m
Apotheke <500m
Klinik <500m
Krankenhaus <1.000m

Kinder & Schulen
Schule <500m
Kindergarten <500m
Universität <500m
Höhere Schule <1.000m

Nahversorgung
Supermarkt <500m
Bäckerei <500m
Einkaufszentrum <1.000m

Sonstige
Geldautomat <1.000m
Bank <1.000m
Post <500m
Polizei <500m

Verkehr
Bus <500m
U-Bahn <500m
Straßenbahn <500m
Bahnhof <500m
Autobahnanschluss <3.500m

Angaben Entfernung Luftlinie / Quelle: OpenStreetMap

Eckdaten Objektnr. 3547

Art: Wohnung
Land: Österreich
Baujahr: 2008
Alter: Neubau
Gesamtmiete: 1.079,99
Kaltmiete (netto): 760,04 €
Kaltmiete: 981,90 €
Betriebskosten: 220,86 €
MwSt Gesamt: 98,09 €
Wohnfläche: 54,00 m²
Zimmer: 2
Bäder: 1
WC: 1
Balkone: 1
Heizwärmebedarf:  C  53,30 kWh/m²a
fGEE:  C  1,40
Nebenkostenübersicht Miete Immobilie merken Exposé

Ausstattung

Fliesen, Parkett, Fernwärme, Zentralheizung, Einbauküche, Wohnküche / offene Küche, Personenaufzug, Badewanne, Kabel/Satelliten-TV, Wasch/Trockenraum


Immobilie anfragen


Ihre persönliche Beratung

Brigitte U. Stanzel

STANZEL & CO Wohnungs- und Geschäftsvermittlung GmbH

T +43 (1) 533 43 05

F +43 (1) 533 08 87