Ankommen. Aufatmen. Wachsen. – Ein Zuhause für kleine Familien und große Pläne. Provisionsfrei

Wohnung - Etage, 1140 Wien


Die Wohnanlage befindet sich in einer begehrten Lage in Wien - im charmanten Stadtteil Penzing im 14. Wiener Gemeindebezirk, nur wenige Gehminuten vom prachtvollen Schlosspark Schönbrunn entfernt. In rund fünf Minuten erreichen Sie den Haupteingang der weitläufigen Parkanlage, die zu entspannten Spaziergängen, sportlichen Aktivitäten oder kulturellen Erlebnissen einlädt. Die hervorragende Verkehrsanbindung - mit der U4-Station Wien Hietzing sowie dem Bahnhof Penzing in fußläufiger Distanz - sorgt für eine schnelle Verbindung ins Wiener Stadtzentrum. Zahlreiche Straßenbahn- und Buslinien ergänzen das öffentliche Verkehrsnetz optimal. So vereint die Lage auf einzigartige Weise das elegante Flair Penzings mit der unmittelbaren Nähe zu einem der bedeutendsten historischen und grünen Juwelen Wiens. Somit profitieren die Bewohner von der perfekten Symbiose aus Stadtleben und Natur.

Beschreibung der Immobilie

Ankommen. Aufatmen. Wachsen. – Ein Zuhause für kleine Familien und große Pläne. Provisionsfrei

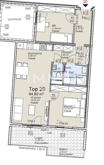
Diese 3-Zimmer-Wohnung bietet genau das, was junge Familien oder Menschen mit Kinderwunsch suchen: Platz zum Entfalten, eine durchdachte Aufteilung und ein Gefühl von Zuhause, das schon beim Eintreten spürbar ist.



Die helle Wohnküche ist das Herzstück der Wohnung – hier wird gekocht, gespielt, gelacht und gelebt. Der offene Wohnbereich geht nahtlos in die sonnige Loggia mit südlicher Ausrichtung über – ein Platz für den ersten Morgenkaffee, bunte Blumentöpfe oder kleine Kinderfüße, die in der Sonne spielen.



Zwei WCs – eines davon separat – sorgen im Alltag für entspannte Routinen, vor allem wenn morgens alle gleichzeitig in den Tag starten. Das Bad mit Wanne ist perfekt für ein wohltuendes Bad nach einem langen Tag oder das gemeinsame Planschen am Wochenende.



Die beiden Schlafzimmer lassen sich flexibel nutzen – ob als Elternschlafzimmer, Kinderzimmer, Homeoffice oder Gästezimmer – hier passt sich das Zuhause Ihrer Lebensphase an. Ein Abstellraum, ein Vorzimmer mit Stauraum und ein Kellerabteil im Eigentum bieten zusätzlich Platz für alles, was im Alltag nicht im Weg stehen soll, aber dennoch griffbereit sein muss.



Ein Zuhause mit Raum zum Wachsen – für Familien, die an morgen denken, und Menschen, die mehr suchen als vier Wände.

Infrastruktur / Entfernungen

Gesundheit
Arzt <500m
Apotheke <500m
Klinik <500m
Krankenhaus <1.000m

Kinder & Schulen
Schule <500m
Kindergarten <500m
Universität <1.500m
Höhere Schule <2.500m

Nahversorgung
Supermarkt <500m
Bäckerei <500m
Einkaufszentrum <2.000m

Sonstige
Geldautomat <1.000m
Bank <1.000m
Post <1.000m
Polizei <1.000m

Verkehr
Bus <500m
U-Bahn <500m
Straßenbahn <500m
Bahnhof <500m
Autobahnanschluss <4.500m

Angaben Entfernung Luftlinie / Quelle: OpenStreetMap

Eckdaten Objektnr. 1939/163017

Art: Wohnung - Etage
Land: Österreich
Zustand: Erstbezug
Kaufpreis: 506.800,00
Wohnfläche: 65,00 m²
Zimmer: 3
Bäder: 1
WC: 1
Balkone: 1
Heizwärmebedarf:  A  42,30 kWh/m²a
fGEE:  A  0,77
Nebenkostenübersicht Kauf Immobilie merken Exposé

Ausstattung

Parkett, Fußbodenheizung, Einbauküche, Personenaufzug, Dusche


Immobilie anfragen


Ihre persönliche Beratung

IMMOcontract Immobilien Vermittlung GmbH

Alexandra Kraus

IMMOcontract Immobilien Vermittlung GmbH

T +43 664 6000 8134

H +43 664 6000 8134

F +43 732 890 800 2466