Penthouse-Highlight: Lichtdurchflutete 4-Zimmer-Residenz mit exklusivem Wohngefühl

Wohnung - Dachgeschoß, 1130 Wien


Die Auhofstraße 258 vereint exklusive Wohnqualität mit einer Lage, die ihresgleichen sucht. Eingebettet in die grüne Idylle des traditionsreichen Bezirks Hietzing, einer der prestigeträchtigsten Adressen Wiens, genießen Sie hier die perfekte Balance aus Ruhe, Natur und urbaner Nähe. Nur wenige Schritte entfernt sorgen die U4-Station Hütteldorf, diverse S-Bahn- und Buslinien für eine schnelle, bequeme Anbindung ins Wiener Stadtzentrum. Zugleich eröffnet sich direkt vor der Haustür ein reichhaltiges Angebot an erstklassigen Einkaufsmöglichkeiten, feiner Gastronomie, renommierten Bildungseinrichtungen sowie umfassender medizinischer Versorgung. Für aktive Erholung und entspannte Stunden im Freien bietet die Umgebung eine Vielzahl an Möglichkeiten – vom malerischen Wiental-Radweg über gepflegte Parks bis hin zu den weitläufigen Grünflächen des Wienerwalds. Hier wohnen Sie dort, wo andere Erholung suchen – inmitten von Natur und dennoch in bester Verbindung zur pulsierenden Metropole Wien.

Beschreibung der Immobilie

Penthouse-Highlight: Lichtdurchflutete 4-Zimmer-Residenz mit exklusivem Wohngefühl

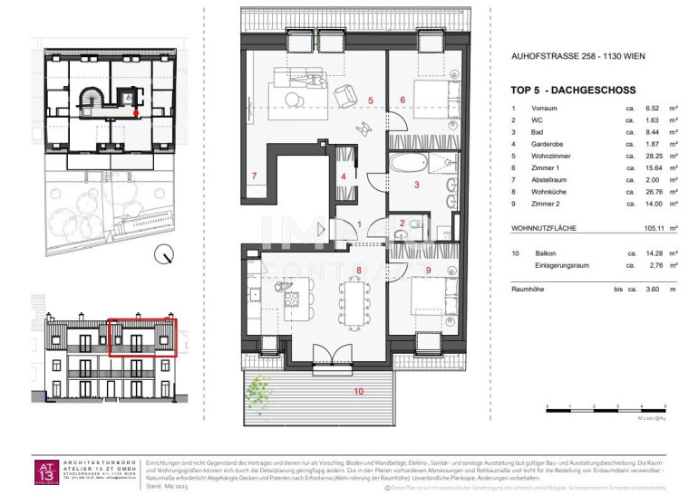
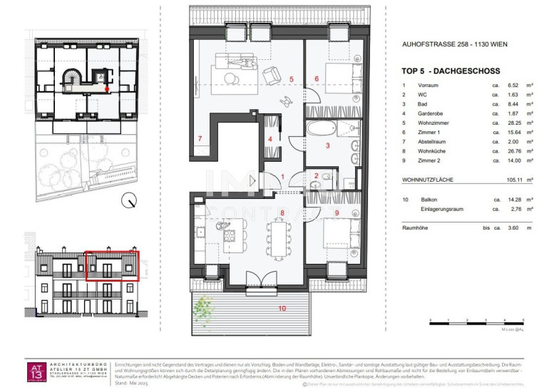
Diese exklusive 4-Zimmer-Penthousewohnung im Dachgeschoss der historischen Villa Auhof bietet auf ca. 105,11 m² Wohnfläche ein luxuriöses Wohnambiente mit höchstem Komfort. Der großzügige Wohn- und Essbereich mit 26,76 m² Wohnküche und separatem 28,25 m² Wohnzimmer schafft ein beeindruckendes Raumgefühl.

Zwei Schlafzimmer, ein stilvolles Badezimmer, separates WC, Garderobe und Abstellraum bieten durchdachte Funktionalität. Über bodentiefe Fenster gelangt man auf den 14,28 m² großen Balkon, der den Blick ins Grüne freigibt.

Die Raumhöhe von 3,60 m unterstreicht die Großzügigkeit und Exklusivität dieser Residenz.


Der Vermittler ist als Doppelmakler tätig.

Infrastruktur / Entfernungen

Gesundheit
Arzt <500m
Apotheke <1.000m
Klinik <3.000m
Krankenhaus <1.000m

Kinder & Schulen
Schule <500m
Kindergarten <500m
Universität <2.000m
Höhere Schule <5.000m

Nahversorgung
Supermarkt <500m
Bäckerei <1.000m
Einkaufszentrum <3.000m

Sonstige
Geldautomat <500m
Bank <500m
Post <2.000m
Polizei <1.000m

Verkehr
Bus <500m
U-Bahn <500m
Straßenbahn <500m
Bahnhof <1.000m
Autobahnanschluss <3.000m

Angaben Entfernung Luftlinie / Quelle: OpenStreetMap

Eckdaten Objektnr. 1939/162486

Art: Wohnung - Dachgeschoß
Land: Österreich
Zustand: Erstbezug
Alter: Altbau
Kaufpreis: 888.000,00
Wohnfläche: 105,11 m²
Nutzfläche: 105,11 m²
Gesamtfläche: 119,39 m²
Zimmer: 4
Bäder: 1
WC: 1
Balkone: 1
Heizwärmebedarf:  B  40,20 kWh/m²a
fGEE:  A  0,82
Nebenkostenübersicht Kauf Immobilie merken Exposé

Ausstattung

Parkett, Fußbodenheizung, Personenaufzug, Ostbalkon, Badewanne, Dusche, Kabel/Satelliten-TV


Immobilie anfragen


Ihre persönliche Beratung

IMMOcontract Immobilien Vermittlung GmbH

Julian Pelzmann

IMMOcontract Immobilien Vermittlung GmbH

T +43 664 6000 8409

H +43 664 6000 8409