Geförderte 2 Zimmer-Wohnung mit Balkon in Eggenberg - Eckertstraße 56a - Top 17

Wohnung - Etage, 8020 Graz , Eckertstraße 56a


Die Lage kann unter anderem mit seiner guten Anbindung an den öffentlichen Verkehr und seiner Infrastruktur punkten. Nahversorger für den täglichen Gebrauch sind fußläufig zu erreichen. Die Lage zeichnet sich ebenfalls durch die Nähe zur Fachhochschule, das Schloss Eggenberg mit seiner großen Parkanlage sowie das Bad Eggenberg "die Auster" aus.

Beschreibung der Immobilie

Geförderte 2 Zimmer-Wohnung mit Balkon in Eggenberg - Eckertstraße 56a - Top 17

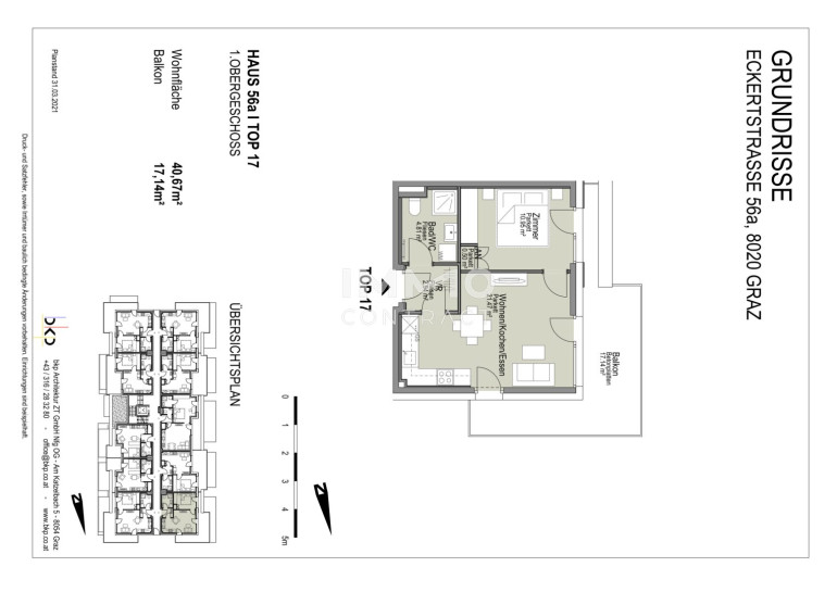
Diese ca. 40,67 m² große 2 Zimmer-Wohnung befindet sich im 1.OG des Hauses Eckertstraße 56a in einem modernen, neuwertigen Wohnhaus.



RAUMAUFTEILUNG: Vorraum, offenen Wohnküche, Schlafzimmer, Bad/Toilette, Abstellnische, Kellerabteil, Terrasse.



AUSSTATTUNG: Die Wohnung ist mit hochwertigen Parkettböden im Wohnbereich sowie mit Fliesenboden im Bad ausgestattet . Das Badezimmer ist unter anderem mit einer Dusche und einem Waschmaschinenanschluss ausgestattet. Darüber hinaus verfügt die Wohnung Einbauküche inklusive Elektrogeräten. Die Wohnung wird mittels Fernwärme beheizt. Das Warmwasser wird ebenfalls zentral mit Fernwärme aufbereitet. Dieser Wohnung ist darüber hinaus ein Kellerabteil zugeteilt.



LAGE: ruhige und zentrale Lage in der Eckertstraße 56a



PARKEN: Es besteht die Möglichkeit Parkplätze in der hauseigenen Tiefgarage anzumieten.



Der Immobilienmakler erklärt, dass er - entgegen dem in der Immobilienwirtschaft üblichen Geschäftsgebrauch des Doppelmaklers - einseitig nur für den Vermieter tätig ist.


Wir weisen darauf hin, dass zwischen dem Vermittler und dem zu vermittelnden Dritten ein familiäres oder wirtschaftliches Naheverhältnis besteht.


Der Immobilienmakler erklärt, dass er – entgegen dem in der Immobilienwirtschaft üblichen Geschäftsgebrauch des Doppelmaklers – einseitig nur für den Vermieter tätig ist.

Infrastruktur / Entfernungen

Gesundheit
Arzt <75m
Apotheke <250m
Klinik <625m
Krankenhaus <1.025m

Kinder & Schulen
Schule <250m
Kindergarten <50m
Universität <325m
Höhere Schule <350m

Nahversorgung
Supermarkt <75m
Bäckerei <200m
Einkaufszentrum <1.225m

Sonstige
Geldautomat <225m
Bank <225m
Post <275m
Polizei <775m

Verkehr
Bus <200m
Straßenbahn <200m
Autobahnanschluss <4.025m
Bahnhof <725m
Flughafen <9.425m

Angaben Entfernung Luftlinie / Quelle: OpenStreetMap

Eckdaten Objektnr. 1939/215068

Art: Wohnung - Etage
Land: Österreich
Baujahr: 2020
Gesamtmiete: 725,72
Kaltmiete (netto): 448,56 €
Kaltmiete: 585,43 €
Betriebskosten: 136,87 €
Heizkosten: 68,12 €
MwSt Gesamt: 72,17 €
Wohnfläche: 40,67 m²
Zimmer: 2
Bäder: 1
Balkone: 1
Keller: 2,00 m²
fGEE: 0,65
Nebenkostenübersicht Miete Immobilie merken Exposé

Ausstattung

Fliesen, Parkett, Zentralheizung, Einbauküche, Westbalkon, Dusche


Immobilie anfragen


Ihre persönliche Beratung

IMMOcontract Immobilien Vermittlung GmbH

Jan Sarkantyu

IMMOcontract Immobilien Vermittlung GmbH

T +43 316 890 800

H +43 664 423 19 13