Lagerfläche | Außergewöhnliches Objekt mit großem Potential zur Vermietung | Variante (3)

Halle / Lager / Produktion - Lager, 1230 Wien


Beschreibung der Immobilie

Lagerfläche | Außergewöhnliches Objekt mit großem Potential zur Vermietung | Variante (3)

Dieses besondere Gewerbeobjekt gelangt zur Vermietung. Das freistehende Haus in der Kolpingstraße kann vielseitig genutzt werden: 




Variante 1) Gesamtfläche von 2.915,16qm exklusiv 



  • Büroflächen auf 3 Etagen
  • Terrasse
  • Lagerhalle auf 2 Ebenen 
  • Grünfläche 703qm
  • 24 Stellplätze (Pauschal 1.000€) 
  • 2.915qm für 13.813,54€ (6,5€/qm) zzgl. 2.125,16€ BK (1€/qm) 


Variante 2) Bürofläche von 1.237qm im vorderen Gebäudeteil



  • Büroräume aufgeteilt auf 3 Etagen
  • Bürofläche: 1.237qm für 8.040,50€ (6,5€/qm) zzgl. 1.237€ BK (1€/qm) 
  • Terrassenfläche 87qm


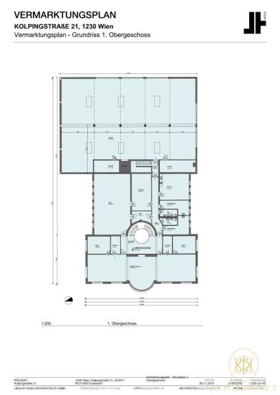
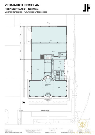
Variante 3) Lagerfläche über 888,16qm im hinteren Gebäudeteil



  • Lagerhalle auf 2 Ebenen
  • Lagerflächen: 888,16qm für 5.773,04€ (6,5€/qm) zzgl. 888,16€ BK (1€/qm) 




Die 888,16qm  Lagerfläche erstreckt sich über 2 Etagen, die über einen Treppenaufgang sowie Lastenaufzug verbunden sind. Das Lager ist ebenerdig über eine Laderampe mit Rolltor befahrbar. Der Standort im 23. Bezirk kann Ihr neues Verteilerzentrum werden. 



Das Gebäude besticht durch seine Gegebenheiten, lassen Sie uns Ihr Konzept auf genau diese anpassen. Ob Büro/ Zentrale/ Lager/ Produktion/ Eventlocation/ Schulungsräume/ Gastronomie/ Verein... diese Immobilie bietet die Möglichkeit. Überzeugen Sie sich von dem repräsentativen Charakter, dem gepflegten Zustand und der Exklusivität. 



Alle Beträge verstehen sich als Nettobeträge!

Noch nichts gefunden? Wir informieren Sie über geeignete Immobilienangebote noch vor allen anderen.
Legen Sie jetzt Ihren individuellen Suchagenten unter folgendem Link an. Wir schicken Ihnen passende Immobilien exklusiv vorab zu.

Suchagent anlegen - https://immosamet.service.immo/registrieren/de


Wir weisen darauf hin, dass zwischen dem Vermittler und dem zu vermittelnden Dritten ein familiäres oder wirtschaftliches Naheverhältnis besteht.


Der Vermittler ist als Doppelmakler tätig.

Infrastruktur / Entfernungen

Gesundheit
Arzt <2.000m
Apotheke <1.500m
Klinik <2.000m
Krankenhaus <3.000m

Kinder & Schulen
Schule <1.500m
Kindergarten <1.000m
Universität <4.000m
Höhere Schule <4.500m

Nahversorgung
Supermarkt <1.000m
Bäckerei <2.000m
Einkaufszentrum <1.000m

Sonstige
Geldautomat <1.000m
Bank <1.000m
Post <500m
Polizei <1.500m

Verkehr
Bus <500m
U-Bahn <2.500m
Straßenbahn <2.000m
Bahnhof <1.500m
Autobahnanschluss <1.000m

Angaben Entfernung Luftlinie / Quelle: OpenStreetMap

Eckdaten Objektnr. 1856/91

Art: Halle / Lager / Produktion - Lager
Land: Österreich
Zustand: Gepflegt
Kaltmiete (netto): 5.773,04 €
Kaltmiete: 6.661,20 €
Miete / m²: 6,50 €
Betriebskosten: 888,16 €
Lagerfläche: 888,16 m²
Terrassen: 1
Garten: 703,00 m²
Nebenkostenübersicht Miete Immobilie merken Exposé

Immobilie anfragen


Ihre persönliche Beratung

Immosamet GmbH

Samet Erdinc

Immosamet GmbH

T +43 660 608 06 08

H +43 660 608 0 608