Garantierte Rendite 7,5 % - Büro & Lager in einem repräsentativen, klassischen Gründerzeithaus

Zinshaus Renditeobjekt , 1020 Wien


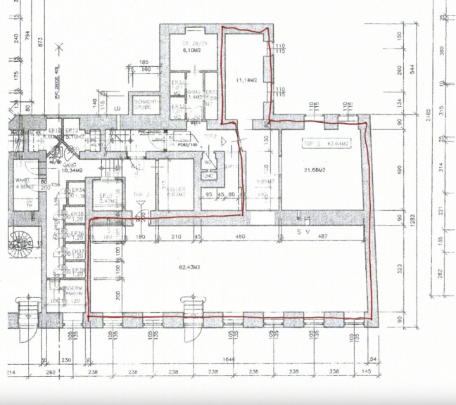
Beschreibung der Immobilie

Garantierte Rendite 7,5 % - Büro & Lager in einem repräsentativen, klassischen Gründerzeithaus

Zum Verkauf steht eine derzeit unbefristet vermietete Büro- und Lagerfläche im Souterrain eines klassischen Wiener Gründerzeit-Zinshauses der Jahrhundertwende. Das attraktive Wohnhaus verfügt über eine ansprechende, gegliederte Fassade und befindet sich in der Böcklinstraße, unweit der WAC Sportanlage sowie der Rotundenbrücke.



Das unbefristet vermietete Verkaufsobjekt gliedert sich in einen direkt von der Straße zugänglichen Teil, der als Veranstaltungs und Besprechungsraum genutzt wird sowie dem hinteren Teil, der teilweise als Büro zur Verfügung steht. Die attraktive Mikrolage der Büro- bzw. Veranstaltungsfläche birgt langfristiges Potential für ein perfektes Arbeitsumfeld und Kapitalanlage mit Wertsteigerung bei entsprechender Vermietung.



Der Verkäufer garantiert eine jährliche Rendite von 7,5% für die Laufzeit des unbefristeten Vertrages.



Fakten & Daten



  • Zentrale Lage unweit des Donaukanals 
  • ca. 1899 errichtetes, gepflegtes Gründerzeit-Haus mit gegliederter Fassade 
  • vielseitig einsetzbare Büro- und Lagerfläche
  • ca. 126 m² Gesamtfläche



Lage und Infrastruktur



Die Mikrolage rund um der zum Verkauf stehenden Liegenschaft ist äußerst attraktiv und bietet eine gelungene Kombination aus urbanem Leben und ausgezeichneten Verkehrsanbindungen. Nur wenige Gehminuten von der Rotundenbrücke entfernt, profitieren zukünftige Eigentümer und Besucher von einer Vielzahl an Einkaufs- und Freizeitmöglichkeiten, Cafés und kulturellen Angeboten. Die Wiener Innenstadt sowie zahlreiche touristische Attraktionen sind mittels öffentlicher Nahverkehrsmittel schnell und einfach erreichbar.

Die Infrastruktur in dieser Gegend ist hervorragend - sämtliche Geschäfte und Einrichtungen des täglichen Bedarfs befinden sich in Gehnähe.

 



Verkehrsanbindung



Straßenbahnlinie 1 - in ca. 250 m Entfernung

Buslinie 4A und 80A - in ca. 200 m Entfernung

Per Individualverkehr perfekte Anbindung an die Wiener City und zur Südosttangente.

 



Sonstiges



Wir ersuchen um Verständnis, dass wir aufgrund unserer Nachweispflicht gegenüber dem Eigentümer / der Eigentümerin nur Anfragen mit vollständigen Kontaktdaten (Name, Adresse, Telefonnummer, E-Mail) bearbeiten können.



Sämtliche Angaben zum beschriebenen Verkaufsobjekt sind ohne Gewähr und basieren auf Informationen und Unterlagen, die vom Eigentümer der Liegenschaft bzw. Dritten zur Verfügung gestellt wurden. Für Vollständigkeit, Richtigkeit und Aktualität aller Angaben und Abmessungen wird keine Gewähr übernommen. Allfällige Änderungen, Irrtümer, Satz- und Druckfehler vorbehalten.


Wir weisen darauf hin, dass zwischen dem Vermittler und dem zu vermittelnden Dritten ein familiäres oder wirtschaftliches Naheverhältnis besteht.


Der Vermittler ist als Doppelmakler tätig.

Infrastruktur / Entfernungen

Gesundheit
Arzt <500m
Apotheke <500m
Klinik <1.000m
Krankenhaus <1.000m

Kinder & Schulen
Schule <500m
Kindergarten <500m
Universität <500m
Höhere Schule <1.000m

Nahversorgung
Supermarkt <500m
Bäckerei <500m
Einkaufszentrum <1.000m

Sonstige
Geldautomat <500m
Bank <500m
Post <500m
Polizei <1.000m

Verkehr
Bus <500m
U-Bahn <1.000m
Straßenbahn <500m
Bahnhof <1.000m
Autobahnanschluss <2.000m

Angaben Entfernung Luftlinie / Quelle: OpenStreetMap

Eckdaten Objektnr. 212

Art: Zinshaus Renditeobjekt
Land: Österreich
Baujahr: 1899
Zustand: Gepflegt
Alter: Altbau
Kaufpreis: 170.000,00
Kaufpreis / m²: 1.348,35 €
Betriebskosten: 130,00 €
MwSt Gesamt: 26,79 €
Nutzfläche: 126,08 m²
Heizwärmebedarf:  C  65,10 kWh/m²a
fGEE:  C  1,47
Nebenkostenübersicht Kauf Immobilie merken Exposé

Ausstattung

Gas


Immobilie anfragen


Ihre persönliche Beratung

Marker Immobilien GmbH

Dieter Marker

Marker Immobilien GmbH

T +43 664 3134681

H +43 664 3134681