Werkstatt/Büro im Gewerbegebiet, 8 Minuten zum Zentrum von Wiener Neustadt

Halle / Lager / Produktion , 2722 Weikersdorf am Steinfelde , Industriestraße 258


Beschreibung der Immobilie

Werkstatt/Büro im Gewerbegebiet, 8 Minuten zum Zentrum von Wiener Neustadt

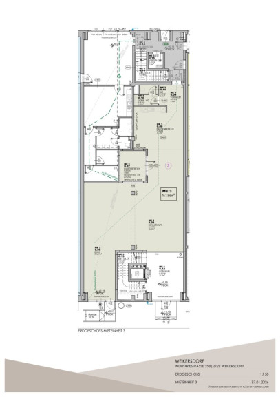
Das als Werkstatt/Lager/Büro nutzbare Objekt befindet sich im EG über Rampe und Stufen erreichbar.



Es gibt wenig Tageslicht im hinteren Bereich, Küche, WC, Fußbodenheizung vorhanden.



Lage:



2 min zur A2: Die Auffahrt Wr. Neustadt West befindet sich in ca. 1,5 km Entfernung.




Optional können auch Lagerflächen angemietet werden



Weitere Ausstattung:

CAT Verkabelung

WC, Personalraum, Küche

Mitarbeiter und Kunden-Parkplätze





HWB 64 kWh/m² p.a.



Bitte beachten Sie, dass die von uns angegebenen Preise exklusive USt sind.



Nebenkosten bei Anmietung:

Kaution 3 BMM

Provision:3 BMM inkl. 20% USt

1% Vertragsvergebührung an das Finanzamt



Kontakt:

Für einen Besichtigungstermin oder nähere Informationen steht Ihnen Herr Augenhammer gerne jederzeit unter 0660 4678417 zur Verfügung.



Bitte beachten Sie, dass wir aufgrund der Nachweispflicht gegenüber dem Eigentümer nur Anfragen mit vollständiger Bekanntgabe von Name, Adresse, Telefon und E-Mail bearbeiten können.

Es wird darauf hingewiesen, dass wir als Doppelmakler tätig sind, und dass zwischen dem Abgeber und uns ein wirtschaftliches Naheverhältnis besteht. Die Überwälzung der Vermieterprovision auf den Mieter nach §12 IMVO wird durch Abschluss des Mietvertrags vom Mieter akzeptiert.


Wir weisen darauf hin, dass zwischen dem Vermittler und dem zu vermittelnden Dritten ein familiäres oder wirtschaftliches Naheverhältnis besteht.


Der Vermittler ist als Doppelmakler tätig.

Infrastruktur / Entfernungen

Gesundheit
Arzt <3.100m
Apotheke <3.400m
Klinik <4.675m
Krankenhaus <5.500m

Kinder & Schulen
Schule <2.500m
Kindergarten <2.575m
Höhere Schule <5.175m
Universität <6.350m

Nahversorgung
Supermarkt <2.475m
Bäckerei <2.875m
Einkaufszentrum <3.350m

Sonstige
Bank <2.475m
Geldautomat <2.475m
Post <2.900m
Polizei <4.150m

Verkehr
Bus <850m
Autobahnanschluss <1.600m
Bahnhof <2.250m
Flughafen <4.825m

Angaben Entfernung Luftlinie / Quelle: OpenStreetMap

Eckdaten Objektnr. 1226/22086

Art: Halle / Lager / Produktion
Land: Österreich
Zustand: Neuwertig
Alter: Neubau
Kaltmiete (netto): 1.200,00 €
Kaltmiete: 1.417,00 €
Miete / m²: 7,16 €
Betriebskosten: 217,00 €
Heizkosten: 84,00 €
MwSt Gesamt: 300,20 €
Nutzfläche: 167,56 m²
Zimmer: 4
WC: 4
Stellplätze: 20
Heizwärmebedarf:  B  37,60 kWh/m²a
fGEE:  A  0,85
Nebenkostenübersicht Miete Immobilie merken Exposé

Ausstattung

Zentralheizung


Immobilie anfragen


Ihre persönliche Beratung

Boubeva Makler GmbH

Markus Augenhammer

Boubeva Makler GmbH

T +43 660 4678 417