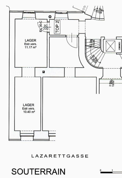
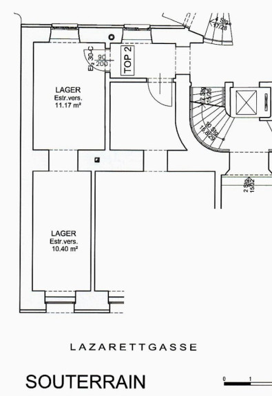
LAZARETTGASSE, AKH-Nähe, 21,57 m2 Lagerfläche im Souterrain, Steckdosen, Heizung

Sonstige , 1090 Wien , Lazarettgasse


LAZARETTGASSE - NADLERGASSE mit perfekter Infrastruktur des 9. Bezirks (Spitalgasse - Alser Straße - Nadlergasse - Sensengasse -Mariannengasse); das AKH-Wien, das Goldene Kreuz Privatspital und St. Anna-Kinderspital; perfekte Verkehrsverbindungen wie U6-Station Alser Straße sowie die Linien 5, 33, 43, 44, 37, 38, 40 + 41 sind in unmittelbarer Nähe

Beschreibung der Immobilie

LAZARETTGASSE, AKH-Nähe, 21,57 m2 Lagerfläche im Souterrain, Steckdosen, Heizung

IN DER LAZARETTGASSE ZWISCHEN AKH UND MED-UNI-WIEN GELANGT DIESE 21,57 m2 LAGERFLÄCHE IM SOUTERRAIN ZUR BEFRISTETEN VERMIETUNG!


Versperrbarer Eingang, Lagerfläche mit Fenster und Steckdosen, Heizung



ANFRAGEN BITTE AUSSCHLIESSLICH VIA MAIL STELLEN! DANKE



Lage



LAZARETTGASSE -  NADLERGASSE mit perfekter Infrastruktur des 9. Bezirks (Spitalgasse - Alser Straße - Nadlergasse - Sensengasse -Mariannengasse); das AKH-Wien, das Goldene Kreuz Privatspital und St. Anna-Kinderspital; perfekte Verkehrsverbindungen wie U6-Station Alser Straße sowie die Linien 5, 33, 43, 44, 37, 38, 40 + 41 sind in unmittelbarer Nähe



Sonstiges



Gesamtmiete € 157,75 inklusive Betriebskosten-20 % MwSt.,


3 BMM Kaution: € 480,00 per Überweisung;

Gebühr für Errichtung und Durchführung des Mietvertrages: € 180,00 inkl. 20 % MwSt (HV IMV GmbH),

Finanzamtsgebühr: einmalig - € 94,65

3 BMM Vermittlungsprovision = € 473,25 inklusive 20 % MwSt.

auf 5 Jahre befristete Hauptmiete



Anbindung öffentlicher Verkehr



die U6-Station Alser Straße sowie die Linien 5, 33, 43, 44, 37, 38, 40 + 41 sind in unmittelbarer Nähe



ANFRAGEN BITTE AUSSCHLIESSLICH VIA MAIL STELLEN! DANKE



Ansprechpartner: MARTIN ROS
E-Mail: martin.ros@ros-real.at 

Infrastruktur / Entfernungen

Gesundheit
Arzt <500m
Apotheke <500m
Klinik <500m
Krankenhaus <250m

Kinder & Schulen
Schule <250m
Kindergarten <250m
Universität <250m
Höhere Schule <500m

Nahversorgung
Supermarkt <250m
Bäckerei <500m
Einkaufszentrum <1.500m

Sonstige
Geldautomat <500m
Bank <500m
Post <500m
Polizei <500m

Verkehr
Bus <250m
U-Bahn <500m
Straßenbahn <250m
Bahnhof <750m
Autobahnanschluss <2.750m

Angaben Entfernung Luftlinie / Quelle: OpenStreetMap

Eckdaten Objektnr. 2348

Art: Sonstige
Land: Österreich
Zustand: Gepflegt
Alter: Altbau
Gesamtmiete: 157,75
Kaltmiete (netto): 84,01 €
Kaltmiete: 131,46 €
Betriebskosten: 47,45 €
MwSt Gesamt: 26,29 €
Lagerfläche: 21,57 m²
Heizwärmebedarf: 265,00 kWh/m²a
fGEE: 3,75
Nebenkostenübersicht Miete Immobilie merken Exposé

Ausstattung

Estrichboden, Personenaufzug


Immobilie anfragen


Ihre persönliche Beratung

ROS REALITÄTEN OG

Martin Ros

ROS REALITÄTEN VERMITTLUNG OG - TESTACCOUNT

T +43 1 526 70 60-10

H +43 664 200 2027

F +43 1 526 70 60 33