#SQ - ALTBAU: SCHÖNE, HELLE 2-ZIMMER-WOHNUNG

Wohnung , 1160 Wien


Öffentliche Verkehrsanbindung: Strassenbahn 2, 9, 46 sowie Bus 48A. Rasch gelangen Sie durch die sehr gute öffentliche Anbindung in die Innenstadt. Die Infrastruktur bietet Ihnen alles für den täglichen Bedarf. So erreichen Sie fußläufig in wenigen Minuten diverse Supermärkte, Restaurants, Cafés, Schulen, Kindergärten, Banken, Apotheken, uvm.

Beschreibung der Immobilie

#SQ - ALTBAU: SCHÖNE, HELLE 2-ZIMMER-WOHNUNG

Zum Verkauf gelangt eine sehr schöne und helle 2-Zimmer-Wohnung im 1. Stock eines Altbaus!



Eckdaten im Überblick:
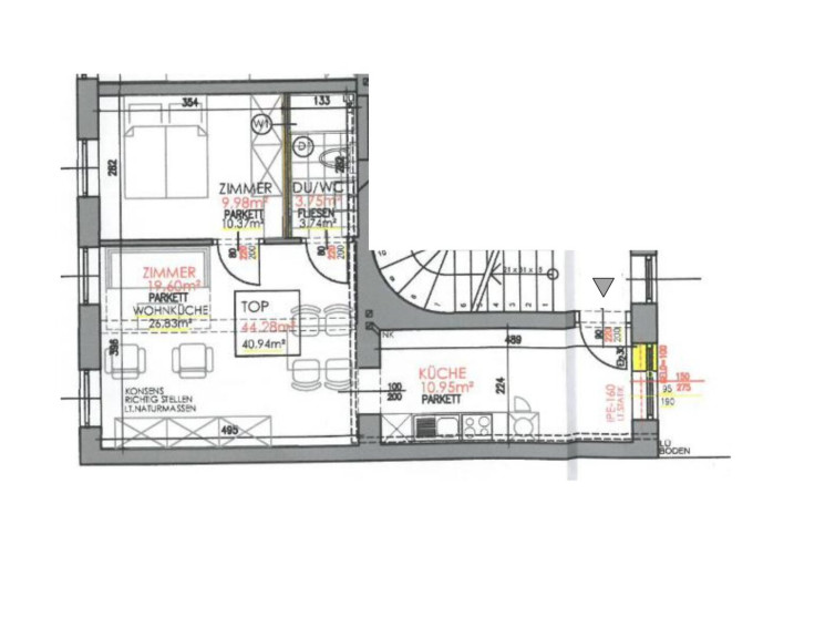
Wohnfläche: ca. 44,28m² 

Zimmer: 2

Küche: Anschlüsse vorhanden

WC: 1

Bad: 1



Raumaufteilung:
Vorraum

Küche

Wohnzimmer

Bad mit Dusche und WC

Schlafzimmer



Ausstattung:
Parkettboden

Fussbodenheizung



Kosten:
Kaufpreis: EUR 249.000,--

Provision: 3% vom KP zzgl. gesetzl. MwSt.



Nähere Informationen zur Gebührenbefreiung finden Sie unter: https://www.bmj.gv.at/themen/Fokusthemen/Befreiung-von-der-Grundbuch-Eintragungsgebühr-bei-Erwerb-von-Wohnraum.html


Hinweis gemäß Energieausweisvorlagegesetz: Ein Energieausweis wurde vom Eigentümer bzw. Verkäufer, nach unserer Aufklärung über die generell geltende Vorlagepflicht, sowie Aufforderung zu seiner Erstellung noch nicht vorgelegt. Daher gilt zumindest eine dem Alter und der Art des Gebäudes entsprechende Gesamtenergieeffizienz als vereinbart. Wir übernehmen keinerlei Gewähr oder Haftung für die tatsächliche Energieeffizienz der angebotenen Immobilie.


Wir weisen darauf hin, dass zwischen dem Vermittler und dem zu vermittelnden Dritten ein familiäres oder wirtschaftliches Naheverhältnis besteht.


Der Vermittler ist als Doppelmakler tätig.

Infrastruktur / Entfernungen

Gesundheit
Arzt <500m
Apotheke <500m
Klinik <500m
Krankenhaus <1.500m

Kinder & Schulen
Schule <500m
Kindergarten <500m
Universität <1.000m
Höhere Schule <1.000m

Nahversorgung
Supermarkt <500m
Bäckerei <500m
Einkaufszentrum <1.000m

Sonstige
Geldautomat <500m
Bank <500m
Post <500m
Polizei <500m

Verkehr
Bus <500m
U-Bahn <1.000m
Straßenbahn <500m
Bahnhof <1.000m
Autobahnanschluss <4.500m

Angaben Entfernung Luftlinie / Quelle: OpenStreetMap

Eckdaten Objektnr. 21108

Art: Wohnung
Land: Österreich
Alter: Altbau
Kaufpreis: 249.000,00
Wohnfläche: 44,28 m²
Nutzfläche: 44,28 m²
Zimmer: 2
Bäder: 1
WC: 1
Nebenkostenübersicht Kauf Immobilie merken Exposé

Ausstattung

Parkett, Fliesen, Gas, Fußbodenheizung, Dusche, Kabel/Satelliten-TV


Immobilie anfragen


Ihre persönliche Beratung

STADTQUARTIER Home GmbH

Mona Taghavi

STADTQUARTIER Real Estate Group

T +43650 2311113

H +43650 2311113