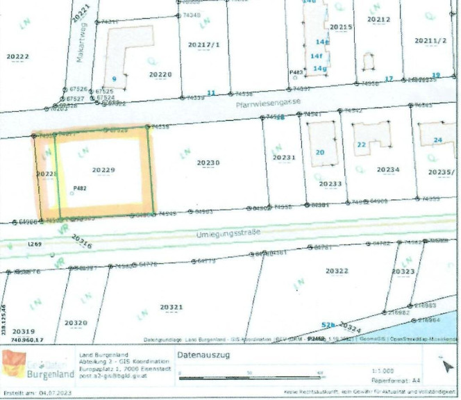
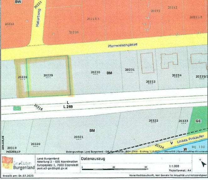
1.788 m² BAUGRUND FÜR PRIVAT ODER BAUTRÄGER IN OBERWART!

Grundstück , 7400 Oberwart , Pfarrwiesengasse


Beschreibung der Immobilie

1.788 m² BAUGRUND FÜR PRIVAT ODER BAUTRÄGER IN OBERWART!

Dieses interessante Baugrundstück mit 1.788 m² Fläche liegt in einer ruhigen Seitengasse inmitten der Stadtgemeinde Oberwart.



Es eignet sich für die Errichtung eines Einfamilienhauses, zum Parzellieren auf 2-3 Bauplätze, oder als Bauträgerprojekt. 



Das Grundstück ist leer und BEREITS AUFGESCHLOSSEN!

 



Widmung: BM Bauland - gemischtes Baugebiet E+1 (einstöckiges Gebäude)

Verbauung: 50 % --> 894 m² verbaubar!
 



Durch die gute und ruhige Lage, sowie die großzügige Bebaubarkeit und Seltenheit solcher Grundstücke bietet sich diese Liegenschaft ideal für Familien mit Hausbauplänen bzw. für Bauträger zur Projekt-Entwicklung!



Bei Interesse freuen wir uns auf Ihre Anfrage!


Der Vermittler ist als Doppelmakler tätig.

Eckdaten Objektnr. 4832/1517

Art: Grundstück
Land: Österreich
Kaufpreis: 180.000,00
Grundstücksfl.: 1.788,00 m²
Nebenkostenübersicht Kauf Immobilie merken Exposé

Immobilie anfragen


Ihre persönliche Beratung

S+R KERN Immobilien GmbH

Robert W. Pabisch

Kern Immobilien

H +43 699 16 007 007