Einzigartiges Townhouse in 1130 Wien – Ihr neues Zuhause mit Blick über Wien
Haus
,
1130
Wien,Hietzing
Achtung Naturliebhaber, unmittelbare Nähe zum Hörndlwald
Beschreibung der Immobilie
Einzigartiges Townhouse in 1130 Wien – Ihr neues Zuhause mit Blick über Wien
Am grünen Rand von Hietzing, nur wenige Schritte vom Lainzer Tiergarten entfernt, wurden diese Townhouses für Menschen, die Ruhe, Natur und stilvolles Wohnen gleichermaßen schätzen, gerade fertiggestellt. Die leicht erhöhte Lage eröffnet einen eindrucksvollen Blick über die Dächer Wiens – ein Panorama, das den Alltag jeden Tag ein wenig besonderer macht.
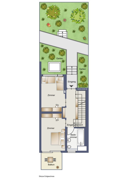
Die Häuser sind über mehrere Ebenen organisiert und verbinden großzügige Wohnbereiche mit privaten Rückzugsorten. Der Lebensmittelpunkt bildet die offene Wohnküche mit direktem Zugang zu Terrasse und Garten – ein Ort für lange Abende mit Freunden, Familienzeit oder entspannte Stunden im Freien. Darüber hinaus bieten mehrere Schlafzimmer, Balkone sowie eine atemberaubende Dachterrasse mit weitem Blick viel Raum zum Leben.
Besonderer Wert wurde auf Qualität und Atmosphäre gelegt: maßgefertigte Tischlerküchen, stilvolle Einbaumöbel, Naturholzparkett und elegant ausgestattete Bäder schaffen ein Wohngefühl, das modern und gleichzeitig warm wirkt. Ein offener Kamin sorgt zusätzlich für eine besondere Stimmung in den Wohnräumen.
Auch technisch sind die Häuser auf dem neuesten Stand: Smart-Home-Steuerung, nachhaltige Energieversorgung über Wärmepumpe mit Erdwärmesonde, Fußbodenheizung, Deckenkühlung, kontrollierte Wohnraumlüftung sowie Photovoltaik verbinden Komfort mit zukunftsorientierter Energieeffizienz.
Abgerundet wird das Konzept durch PKW-Stellplätze mit Vorbereitung für E-Mobilität, Fahrradabstellbereiche, eine Videosprechanlage sowie ein automatisch gesteuertes Zufahrtstor.
Hier geht es zum 360 Grad Rundgang: https://app.immoviewer.com/portal/tour/3130061?accessKey=68c2
Viele weitere Rundgänge sowie alle neuen s REAL Immobilienangebote finden Sie auf www.sreal.at.
Gerne stehen wir für eine Besichtigung bzw. für Anfragen zu weiteren Details zur Verfügung!
Infrastruktur / Entfernungen
Gesundheit
Arzt <1.000m
Apotheke <1.000m
Klinik <1.000m
Krankenhaus <1.000m
Kinder & Schulen
Schule <1.500m
Kindergarten <1.500m
Universität <1.500m
Höhere Schule <5.500m
Nahversorgung
Supermarkt <1.000m
Bäckerei <1.500m
Einkaufszentrum <4.500m
Sonstige
Geldautomat <1.500m
Bank <1.500m
Post <2.000m
Polizei <2.000m
Verkehr
Bus <500m
U-Bahn <2.500m
Straßenbahn <1.000m
Bahnhof <2.000m
Autobahnanschluss <5.000m
Angaben Entfernung Luftlinie / Quelle: OpenStreetMap
Eckdaten Objektnr. 960/73156
| Art: | Haus |
| Land: | Österreich |
| Baujahr: | 2025 |
| Zustand: | Erstbezug |
| Möbliert: | Voll |
| Alter: | Neubau |
| Kaufpreis: | 1.400.000,00 € |
| Wohnfläche: | 131,00 m² |
| Zimmer: | 4 |
| Bäder: | 2 |
| WC: | 3 |
| Terrassen: | 3 |
| Garten: | 211,76 m² |
| Heizwärmebedarf: | C 44,30 kWh/m²a |
| fGEE: | A+ 0,69 |
Ausstattung
Fliesen, Parkett, Etagenheizung, Fußbodenheizung, Kamin, Zentralheizung, Bad mit Fenster, Parkplatz
Ihre persönliche Beratung
Dieser Makler ist ein offizielles Mitglied des IR – ir.at Mehr Erfahren

