Große Mietwohnung im Zentrum von Wolfsberg

Wohnung , 9400 Wolfsberg , Markusplatz 1


Altstadt, Balkon/Terrasse hofseitig, großer Balkon/Terrasse, sonnig, Zentrum

Beschreibung der Immobilie

Große Mietwohnung im Zentrum von Wolfsberg

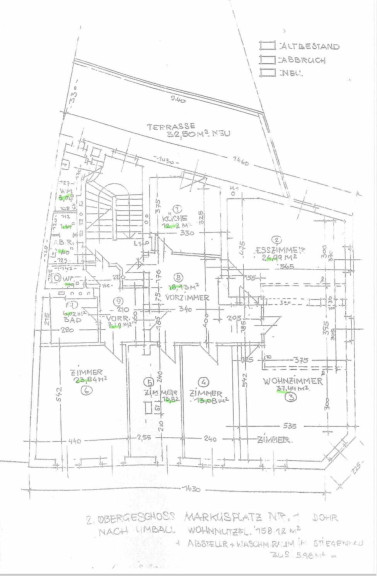
Die Wohnung befindet sich im 2. OG des Hauses Markusplatz 1, 9400 Wolfsberg. Sie hat ein Ausmaß von ca. 160 m². Man erreicht sie über den Eingang am Markusplatz und über das darin befindliche Stiegenhaus.  Die Terrasse ist westseitig ausgerichtet und bietet einen traumhaften Ausblick auf die Markus- respektive Stadtpfarrkirche. Die Wohnung ist ausgestattet mit einer nagelneuen Küche mit Kühlschrank, Ceranfeld, Backrohr und Geschirrspüler, einem gut gepflegten Badezimmer, einem großen Vorraum, einem großzügigen Wohnzimmer, einem Esszimmer und drei weiteren Schlafzimmern. Darüber hinaus beinhaltet die Wohnung noch einen Abstellraum und eine großzügige Terrasse.
Die Wohnung ist mit einem Fernwärmeanschluss ausgestattet, außerdem besteht die Möglichkeit mit dem sehr schönen Kachelofen zu heizen.
Die Lage mitten in der Altstadt von Wolfsberg macht diese Wohnung zu einem einzigartigen Wohnraum!

Hinweis gemäß Energieausweisvorlagegesetz: Ein Energieausweis wurde vom Eigentümer bzw. Verkäufer, nach unserer Aufklärung über die ab 1.12.2012 geltende generelle Vorlagepflicht, sowie Aufforderung zu seiner Erstellung noch nicht vorgelegt. Daher gilt zumindest eine dem Alter und der Art des Gebäudes entsprechende Gesamtenergieeffizienz als vereinbart. Wir übernehmen keinerlei Gewähr oder Haftung für die tatsächliche Energieeffizienz der angebotenen Immobilie.

Für genauere Informationen stehen wir Ihnen gerne zur Verfügung.
Bitte haben Sie Verständnis, dass wir aufgrund der Nachweispflicht gegenüber dem Eigentümer nur Anfragen mit vollständiger Anschrift und Telefonnummer beantworten können!









Eckdaten Objektnr. 910/00408

Art: Wohnung
Land: Österreich
Alter: Altbau
Gesamtmiete: 1.598,00
Kaltmiete (netto): 900,00 €
Betriebskosten: 280,00 €
Heizkosten: 250,00 €
MwSt Gesamt: 168,00 €
Wohnfläche: 160,00 m²
Zimmer: 5
Bäder: 1
WC: 1
Terrassen: 1
Nebenkostenübersicht Miete Immobilie merken Exposé

Ausstattung

Parkett, Fernwärme, Zentralheizung, Kabel/Satelliten-TV


Immobilie anfragen


Ihre persönliche Beratung

Karl Kostmann

T 0664/5423830

H 0664/5423830

F 04352/37295

Dieser Makler ist ein offizielles Mitglied des IR – ir.at Mehr Erfahren


Makler für Immobilien - KIB GmbH

Wir sind ein Immobilienunternehmen in Wolfsberg und wir bieten Ihnen Immobilien aller Art an - mit Schwerpunkt auf Wohnungen, Häuser und Grundstücken.