Büro mit Altbaucharme direkt an der Landstraße zu vermieten!

Büro / Praxis , 4020 Linz


Beschreibung der Immobilie

Büro mit Altbaucharme direkt an der Landstraße zu vermieten!

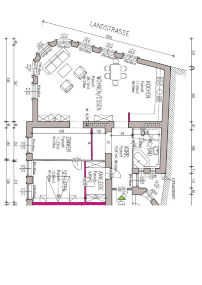
Mit einer Fläche von 96,52 m² bietet die Einheit großzügigen Raum für vielfältige Nutzungsmöglichkeiten und lässt sich flexibel an unterschiedliche Anforderungen anpassen.



Drei lichtdurchflutete Zimmer mit hochwertigem Parkett schaffen eine angenehme, repräsentative Arbeitsatmosphäre. Große Fensterfronten sorgen für optimale Belichtung und eröffnen einen beeindruckenden Blick über die Stadt.



Sehr gute Verkehrsanbindung durch nahegelegene Straßenbahn- und Buslinien sowie die Nähe zum Linzer Bahnhof. Nahversorgung, Gastronomie und Einkaufszentrum befinden sich in unmittelbarer Umgebung.



Für Detailfragen bzw. eine unverbindliche Besichtigung stehen wir gerne zur Verfügung!



Petra Strobl

+43 664 2473358

Infrastruktur / Entfernungen

Gesundheit
Arzt <500m
Apotheke <500m
Klinik <500m
Krankenhaus <500m

Kinder & Schulen
Kindergarten <500m
Schule <500m
Universität <1.000m
Höhere Schule <1.000m

Nahversorgung
Supermarkt <500m
Bäckerei <500m
Einkaufszentrum <1.000m

Sonstige
Bank <500m
Geldautomat <500m
Post <500m
Polizei <500m

Verkehr
Bus <500m
Straßenbahn <500m
Bahnhof <1.000m
Autobahnanschluss <2.000m
Flughafen <3.500m

Angaben Entfernung Luftlinie / Quelle: OpenStreetMap

Eckdaten Objektnr. 5908/1577

Art: Büro / Praxis
Land: Österreich
Kaltmiete (netto): 1.158,24 €
Kaltmiete: 1.367,55 €
Betriebskosten: 209,31 €
Heizkosten: 99,62 €
MwSt Gesamt: 293,43 €
Bürofläche: 96,52 m²
Zimmer: 3
Bäder: 1
WC: 1
Nebenkostenübersicht Miete Immobilie merken Exposé

Ausstattung

Parkett, Personenaufzug


Immobilie anfragen


Ihre persönliche Beratung

ABRA IC GmbH

Petra Strobl

ABRA IC GmbH

T +43 664 24 733 58