Geräumige Wohnung in Linz mit Tiefgaragenparkplatz zu kaufen!

Wohnung - Etage, 4020 Linz


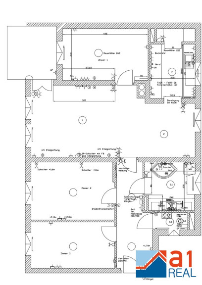
Beschreibung der Immobilie

Geräumige Wohnung in Linz mit Tiefgaragenparkplatz zu kaufen!

Wenn Sie diese 4- Zimmerwohnung betreten, eröffnet sich ein perfekter Rahmen für modernes Wohnen.



Im Wohnzimmer sowie in den drei Zimmern befinden sich Parkettböden.

Das Badezimmer mit Duschkabine, sowie das WC mit Handwaschbecken, sind mit schönen Fliesenböden ausgestattet.

Vom Wohnzimmer gelangen Sie direkt auf die geräumige Loggia, die Fenster sind mit Rollläden ausgestattet.



Eine Klimaanlage gehört ebenso zur Ausstattung sowie eine moderne Einbauküche mit anschließendem Abstellraum.

Ein Tiefgaragenplatz ist Bestandteil der Wohnung.



Die Wohnung teilt sich auf in:

- Vorraum

- Zimmer

- Zimmer

- Schlafzimmer

- Wohnzimmer

- Küche

- Abstellraum

- Bad

- WC

- Loggia

- Kellerabteil

- Tiefgaragenplatz


Wir weisen darauf hin, dass zwischen dem Vermittler und dem zu vermittelnden Dritten ein familiäres oder wirtschaftliches Naheverhältnis besteht.


Der Vermittler ist als Doppelmakler tätig.

Infrastruktur / Entfernungen

Gesundheit
Arzt <500m
Apotheke <500m
Klinik <2.500m
Krankenhaus <2.500m

Kinder & Schulen
Kindergarten <500m
Schule <500m
Universität <2.000m
Höhere Schule <5.000m

Nahversorgung
Supermarkt <1.000m
Bäckerei <1.000m
Einkaufszentrum <1.000m

Sonstige
Bank <1.000m
Geldautomat <1.000m
Post <1.000m
Polizei <1.000m

Verkehr
Bus <500m
Straßenbahn <2.000m
Bahnhof <1.000m
Autobahnanschluss <1.000m
Flughafen <5.500m

Angaben Entfernung Luftlinie / Quelle: OpenStreetMap

Eckdaten Objektnr. 756

Art: Wohnung - Etage
Land: Österreich
Baujahr: 2007
Kaufpreis: 359.000,00
Betriebskosten: 358,09 €
Heizkosten: 65,00 €
MwSt Gesamt: 40,82 €
Wohnfläche: 89,04 m²
Nutzfläche: 95,53 m²
Zimmer: 4
Bäder: 1
WC: 1
Balkone: 1
Keller: 12,43 m²
Heizwärmebedarf:  B  38,00 kWh/m²a
fGEE:  A  0,80
Nebenkostenübersicht Kauf Immobilie merken Exposé

Ausstattung

Fliesen, Parkett, Zentralheizung, Einbauküche, Personenaufzug, Westbalkon, Bad mit Fenster, Dusche, Kabel/Satelliten-TV, Tiefgarage


Immobilie anfragen


Ihre persönliche Beratung

A1REAL GmbH.

Robert Rudelstorfer

A1REAL GmbH.

T +43 732 272 500 10

H 0660 6000 500

F 0732 272 500 20