großzügiges Wohnhaus in ruhiger Lage

Haus , 3133 Wagram ob der Traisen


Beschreibung der Immobilie

großzügiges Wohnhaus in ruhiger Lage

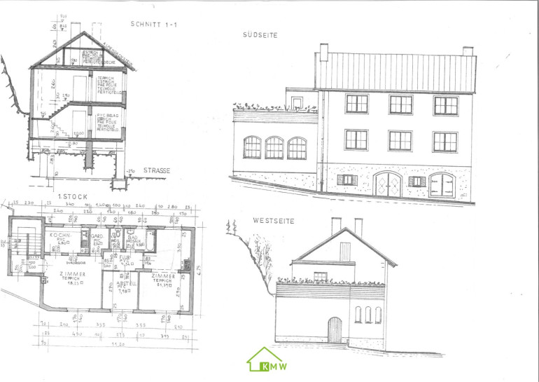
Zum Verkauf gelangt ein geräumiges - zwischen 1977 und 1990 erbautes und ausgebautes - Ein/Mehrfamilienhaus in angenehm ruhiger Lage, umgeben von einigen Weinkellern. Gegenüberliegendes Grundstück - mit Garage und Werkstatt - gehört zum Objekt und befindet sich in Hanglage.



Ein weiteres Grundstück (ehem. Weingarten) befindet sich hinter dem Haus in erhöhter Lage - ca. 1.000 m² groß. Das würde sich auch zum Solarausbau für eigene Stromerzeugung bestens eignen. Dieses Grundstück ist auch im angebotenen Kaufpreis enthalten.   



Dieses Haus besteht aus Erdgeschoß , Obergeschoß, gewölbten ehem. Weinkeller, Terrasse. Gegenüber befindet sich eine dazugehörige Garage mit Werkstatt (ca. 30m²)



Es besteht die Möglichkeit in jeder Etage eine eigene Wohneinheit zu nutzen.



EG: Vorraum mit Essecke, Hausbar, WC, Küche, 2 Zimmer, Bad mit WC.



OG: Vorraum, 3 Zimmer, Küche, Bad (Dusche), WC, Abstellraum, Pergola, Terrasse



Fenster: 2fach Verglasung



Heizung: Zentralheizung mit Gas 



Anschlüsse: Kanal, Wasser, Strom, Gas, Telefon





Ich freue mich auf Ihre Anfrage!








Der Vermittler ist als Doppelmakler tätig.

Infrastruktur / Entfernungen

Gesundheit
Arzt <2.000m
Apotheke <3.000m
Klinik <3.000m
Krankenhaus <9.000m

Kinder & Schulen
Schule <2.000m
Kindergarten <2.000m
Höhere Schule <8.500m
Universität <10.000m

Nahversorgung
Supermarkt <3.000m
Bäckerei <3.500m
Einkaufszentrum <9.000m

Sonstige
Bank <2.000m
Geldautomat <2.000m
Post <3.000m
Polizei <3.000m

Verkehr
Bus <500m
Autobahnanschluss <1.000m
Bahnhof <3.500m

Angaben Entfernung Luftlinie / Quelle: OpenStreetMap

Eckdaten Objektnr. 1389

Art: Haus
Land: Österreich
Baujahr: 1986
Zustand: Gepflegt
Möbliert: Voll
Kaufpreis: 277.000,00
Wohnfläche: 170,00 m²
Grundstücksfl.: 1.543,00 m²
Zimmer: 5,50
Bäder: 2
WC: 3
Terrassen: 1
Heizwärmebedarf:  E  166,00 kWh/m²a
fGEE:  E  2,68
Nebenkostenübersicht Kauf Immobilie merken Exposé

Immobilie anfragen


Ihre persönliche Beratung

KMW Immobilien GmbH

Akad. Immobilienmanager Jürgen Heinzl

KMW Immobilien GmbH

T +43273272120

H +43 676 55 400 88

F 02732 72120