Schöner Wohnen - Exklusives Penthouse in Leogang
Wohnung
- Penthouse,
5771
Leogang
Leogang ist eine Gemeinde im Bundesland Salzburg im Bezirk Zell am See in Österreich mit 3580 Einwohnern (Stand 1. Jänner 2024). Der Ortsname bezieht sich auf den Hauptort. Die Gemeinde nimmt das ganze Leoganger Tal ein. Leogang liegt im Pinzgau zwischen den Leoganger Steinbergen, deren höchster Gipfel das Birnhorn (2634 m ü. A.) im Norden ist, und dem Asitz im Süden. Dort befindet sich Leogang nordwestlich der Schultersbachhöhe (1520 m) an der Leoganger Ache. Leogang grenzt an Tirol, über den in 1000 m Höhe gelegenen Grießenpass führt die Straße nach Hochfilzen. (Quelle: wikipedia.org/wiki)
Beschreibung der Immobilie
Schöner Wohnen - Exklusives Penthouse in Leogang
Urlaubsfeeling im eigenen Zuhause
Im Leoganger Ortsteil Ecking befindet sich ein im Jahr 2022 neu errichtetes Wohnhaus mit insgesamt 8 Wohneinheiten und einer Tiefgarage, ausgerichtet für 9 PKW-Stellplätze. Das Grundstück mit ca. 815 m² liegt verkehrsberuhigt in einer Siedlung mit mehrheitlich Einfamilienhäusern. Die Ausrichtung des freistehenden Gebäudes erfolgt hauptsächlich nach Süden und nach Westen.
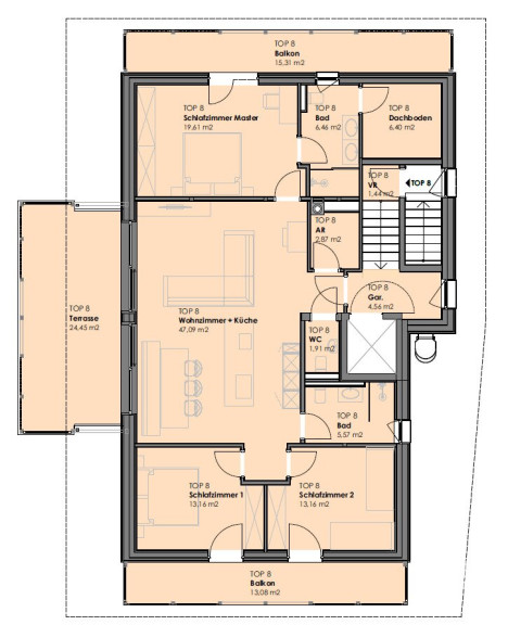
Diese exklusive Penthouse-Wohnung mit ca. 122 m² weist zzgl. einen eigenen abgetrennten Stiegenhausaufgang und einen exklusiven Zugang mit einer Chipkarte durch den hauseigenen Lift auf. Sie ist also neben dem Treppenhaus auch über den hauseigenen Lift direkt aufgeschlossen.
Dies ist die einzige Wohnung im letzten Stockwerk. Sie verzaubert und begeistert Sie mit einer wunderschönen Dachterrasse und zwei Balkonen. Sie hat große Fensterelemente mit einem perfekten Blick auf die umliegende Bergwelt. Dieses Luxus-Penthouse besticht durch die sehr hellen Räume und die exzellente Raumaufteilung und Ausstattung. Hochwertigste Möbel und Textilien schaffen ein gediegenes und gemütliches Ambiente.
Die Wohnung verfügt über 3 Schlafzimmer, davon ein Masterbedroom mit direkt angeschlossenem Badezimmer, einen sehr großzügigen Wohn-Eßbereich mit Kücheninsel und direktem Ausgang auf die große Terrasse. Die Einheit verfügt über ein weiteres Badezimmer (inkl. WC) und ein separtes WC und einen großen Abstellraum. Sämtliche Schlafzimmer verfügen über einen Ausgang auf einen Balkon.
Weiters beinhaltet die Wohnung ein Kellerabteil und zwei Tiefgaragenabstellplätze.
Wenn Sie nähere Informationen wünschen, freuen wir uns über Ihre Anfrage. Wir werden Ihnen sodann gerne ein detailliertes Immobilienangebot zukommen lassen.
Im Falle einer allfälligen Finanzierung bieten wir Ihnen gerne ein unverbindliches, auf Sie maßgeschneidertes Finanzmodell an.
Der Vermittler ist als Doppelmakler tätig.
Infrastruktur / Entfernungen
Gesundheit
Arzt <3.500m
Apotheke <3.000m
Klinik <4.500m
Kinder & Schulen
Schule <3.000m
Kindergarten <3.500m
Nahversorgung
Supermarkt <3.000m
Bäckerei <2.500m
Einkaufszentrum <4.000m
Sonstige
Bank <3.000m
Geldautomat <3.000m
Post <4.500m
Polizei <4.500m
Verkehr
Bus <500m
Bahnhof <2.500m
Angaben Entfernung Luftlinie / Quelle: OpenStreetMap
Eckdaten Objektnr. 507/2750
| Art: | Wohnung - Penthouse |
| Land: | Österreich |
| Kaufpreis: | 1.300.000,00 € |
| Wohnfläche: | 122,00 m² |
Ihre persönliche Beratung
Dieser Makler ist ein offizielles Mitglied des IR – ir.at Mehr Erfahren

