2-Zimmer Wohnung nahe Augarten in 1020 Wien zu mieten
Wohnung
- Etage,
1020
Wien
,
Taborstraße 104
Die Lage ist ausgezeichnet das Gebäude liegt direkt gegenüber dem Naherholungsgebiet Donauinsel. Geschäfte des täglichen Bedarfs, die Millennium City und öffentliche Verkehrsmittel (U6, S-Bahn, Straßenbahn, zahlreiche Buslinien) befinden sich in unmittelbarer Umgebung. Ein Parkplatz kann bei Bedarf in der hauseigenen Tiefgarage angemietet werden.
Beschreibung der Immobilie
2-Zimmer Wohnung nahe Augarten in 1020 Wien zu mieten
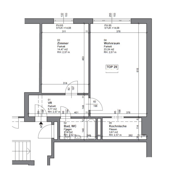
In einem gepflegten Neubau direkt an der Taborstraße gelegen, befindet sich im 4. Obergeschoß diese 2 Zimmer Wohnung zur Vermietung.Die Wohnung bietet folgende Aufteilung:
- Vorraum
- Wohnzimmer
- Schlafzimmer
- Kochnische
- Badezimmer mit Dusche und WC (ohne Waschbecken)
Die Wohnung wird auf 5 Jahre befristet vermietet. Kündigungsverzicht 1 Jahr.
Eckdaten Objektnr. 10950660
| Art: | Wohnung - Etage |
| Land: | Österreich |
| Baujahr: | 1965 |
| Gesamtmiete: | 947,15 € |
| Kaltmiete (netto): | 677,44 € |
| Betriebskosten: | 183,61 € |
| Wohnfläche: | 50,00 m² |
| Zimmer: | 2 |
| Bäder: | 1 |
Ausstattung
Fliesen, Parkett, Gas, Zentralheizung, Einbauküche, Wohnküche / offene Küche, Personenaufzug, Dusche
Ihre persönliche Beratung
Dieser Makler ist ein offizielles Mitglied des IR – ir.at Mehr Erfahren
