Investition im Herzen von Klagenfurt: Zinshaus mit 600m² Fläche und Stadtblick für 2.950.000,00 €

Zinshaus Renditeobjekt , 9020 Klagenfurt am Wörthersee , Karfreitstraße


Beschreibung der Immobilie

Investition im Herzen von Klagenfurt: Zinshaus mit 600m² Fläche und Stadtblick für 2.950.000,00 €

Zur Verkauf gelangt ein stilvoller Altbau  in der Innenstadt von Klagenfurt!



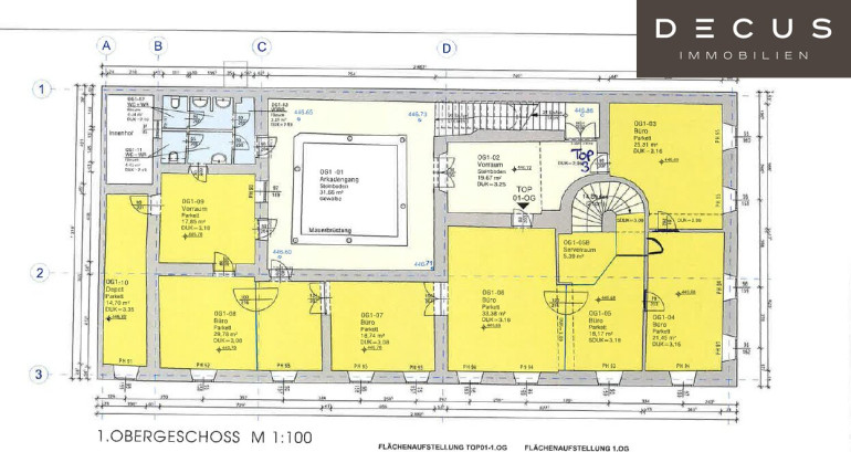
Das Gebäude verfügt über insgesamt 6 Bestandseinheiten, 4 davon sind befristet vermietet. Einreichplanung für den Dachgeschoßausbau und den Einbau eines Aufzuges liegt vor. Eine Baugenehmigung ist vorhanden.



Grundfläche: 380 m²



Nutzfläche: aktuell ca. 600 m² mit der Möglichkeit für einen Dachgeschossausbau und damit Erweiterung der Flächen um rund 300 m².



Diese Immobilie mit den schönen Arkadengängen befindet sich in zentraler und gut frequentierter Lage bei der Karfreitstraße in Klagenfurt am Wörthersee. Die Gegend ist geprägt von einer Mischung aus Wohn- und Geschäftshäusern sowie öffentlichen Einrichtungen.



In unmittelbarer Nähe befinden sich zahlreiche Annehmlichkeiten wie Ärzte, Apotheken, Schulen, Kindergärten, Universitäten und höhere Schulen. 



DECUS Immobilien GmbH – Wir beleben Räume

Für weitere Informationen und Besichtigungen steht Ihnen gerne Frau  Katharina Hammerl unter der Mobilnummer +43 660 688 33 43und per E-Mail unter hammerl@decus.at persönlich zur Verfügung.

www.decus.at | office@decus.at 

Wichtige Informationen

Bitte beachten Sie, dass per 13.06.2014 eine neue Richtlinie für Fernabsatz- und Auswärtsgeschäfte in Kraft getreten ist.

Ab 1.4.2024 entfallen die Grundbuchs- und Pfandrechtseintragungsgebühren vorübergehend für Eigenheime bis zu einer Bemessungsgrundlage von EUR 500.000,-. Voraussetzung ist das dringende Wohnbedürfnis, ausgenommen davon sind vererbte oder geschenkte Immobilien. Die Befreiung ist jedoch für den Einzelfall zu prüfen, DECUS Immobilien übernimmt hierzu keine Haftung.

Ab 01.07.2023 gilt das Erstauftraggeber-Prinzip bei Wohnungsmietverträgen, ausgenommen davon sind Dienst-/Natural-/Werkswohnungen. Wir dürfen gem. § 17 Maklergesetz darauf hinweisen, dass wir auf die Doppelmaklertätigkeit gem. § 5 Maklergesetz bei Wohnungsmietverträgen verzichten und nur noch einseitig tätig sind (bei den restlichen Vermittlungsarten nicht) und ein wirtschaftliches Naheverhältnis zu unseren Auftraggebern besteht. 

Im Falle eines Abschlusses mit Ihnen oder einem von Ihnen namhaft gemachten Dritten bzw. bei beidseitiger Willensübereinstimmung beträgt unser Honorar (lt. Honorarverordnung für Immobilienmakler) 2 Bruttomonatsmieten (BMM) bei Dienst-/Natural-/Werkwohnungen sowie Suchaufträgen, 3 BMM bei Gewerbe-, PKW-, Keller- und Lagermietverträgen sowie bei Kaufobjekten 3 % des Kaufpreises, zuzüglich der gesetzlichen Umsatzsteuer.

Dieses Objekt wird Ihnen unverbindlich und freibleibend angeboten. Oben angeführte Angaben basieren auf Informationen und Unterlagen des Eigentümers und sind unsererseits ohne Gewähr.

Nähere Informationen sowie unsere AGBs und die Nebenkostenübersichtsblatt finden Sie auf unserer Homepage www.decus.at unter "Service" - "Rechtliches zum FAGG" sowie im Anhang der zugesendeten Objekt-Exposés!

Infrastruktur / Entfernungen

Gesundheit
Arzt <250m
Apotheke <250m
Krankenhaus <750m
Klinik <750m

Kinder & Schulen
Schule <250m
Kindergarten <250m
Universität <500m
Höhere Schule <500m

Nahversorgung
Supermarkt <250m
Bäckerei <250m
Einkaufszentrum <500m

Sonstige
Bank <250m
Geldautomat <250m
Post <250m
Polizei <250m

Verkehr
Bus <250m
Autobahnanschluss <3.250m
Bahnhof <1.000m
Flughafen <3.500m

Angaben Entfernung Luftlinie / Quelle: OpenStreetMap

Eckdaten Objektnr. 1144952

Art: Zinshaus Renditeobjekt
Land: Österreich
Alter: Altbau
Kaufpreis: 2.995.000,00
Nutzfläche: 600,00 m²
Grundstücksfl.: 380,00 m²
Heizwärmebedarf:  D  108,00 kWh/m²a
fGEE:  D  1,74
Nebenkostenübersicht Kauf Immobilie merken Exposé

Ausstattung

Fernwärme


Immobilie anfragen


Ihre persönliche Beratung

DECUS Immobilien GmbH

Katharina Hammerl

DECUS Immobilien GmbH

T +43 660 688 33 43

H +43 660 688 33 43

F +43 1 35 600 10