Let's get down to your own business - Geschäftslokal mit vielseitigen Nutzungsmöglichkeiten und großen Schaufenstern

Einzelhandel , 1210 Wien , Ottilie-Bondy-Promenade


TOP LAGE! In der Umgebung finden Sie alle wichtigen Nahversorgungseinrichtungen sowie Einkaufsmöglichkeiten und Dienstleistungen. In 250m Entfernung erreichen Sie den Bahnhof "Jedlersdorf" und in wenigen Minuten erreichen Sie die Donauufer-Autobahn.

Beschreibung der Immobilie

Let's get down to your own business - Geschäftslokal mit vielseitigen Nutzungsmöglichkeiten und großen Schaufenstern

Vermietet wird ein großes und modernes Geschäftslokal mit vielseitigen Nutzungsmöglichkeiten und großen Schaufensterflächen im Neubauprojekt der Ottilie-Bondy-Promenade, 21. Bezirk, Floridsdorf.



Highlights



  • barrierefrei
  • große Schaufenster
  • offene Gestaltung möglich
  • flexible Raumaufteilung


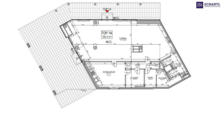
Raumaufteilung



  • Lokal 185,14m²




TOP LAGE! 
In der Umgebung finden Sie alle wichtigen Nahversorgungseinrichtungen sowie Einkaufsmöglichkeiten und Dienstleistungen. In 250m Entfernung erreichen Sie den Bahnhof "Jedlersdorf" und in wenigen Minuten erreichen Sie die Donauufer-Autobahn.





Erlaubt:



  • Restaurants aller Art 
  • Fast-Food
  • Herkömmliche Bürotätigkeiten
  • Apotheken
  • Drogeriemärkte
  • Handyshops
  • Modegeschäfte
  • Gastronomie (Bar, Shishabar etc.)
  • Eissalon
  • Fitnessstudio
  • Nägelstudio
  • Solarium
  • etc..




Nicht Erlaubt:



  • Lebensmittelhandel
  • Bäckerei - Konditorei




Bei konkretem Interesse senden wir Ihnen sehr gerne weiterführende Dokumente zu. Unser Service für Sie: Wenn Sie sich für diese Immobilie entschieden haben, begleiten wir Sie gerne vom Kaufanbot weg inkl. Klärung von Sonderwünschen und der Vertragsunterzeichnung über die Übergabe bis hin zu diversen Ummeldungen wie Strom und Heizung. 



Gerne unterstützen wir Sie auch bei der Finanzierung Ihres Traumobjekts und finden mit unseren langjährigen Partnern die besten Konditionen für Sie.





Vereinbaren Sie jetzt einen Beratungstermin!



Sie wollen Ihre Immobilie verkaufen oder vermieten? Dann sind Sie bei uns goldrichtig! Gerne beraten wir Sie kostenlos bei der Bewertung Ihrer Immobilie und präsentieren Ihnen die dafür entscheidenden Informationen und Unterlagen unverbindlich.





Freundliche Grüße



Martina Bezak

Infrastruktur / Entfernungen

Gesundheit
Arzt <500m
Apotheke <500m
Klinik <1.250m
Krankenhaus <1.250m

Kinder & Schulen
Schule <750m
Kindergarten <250m
Universität <2.500m
Höhere Schule <1.750m

Nahversorgung
Supermarkt <250m
Bäckerei <750m
Einkaufszentrum <750m

Sonstige
Geldautomat <750m
Bank <750m
Post <750m
Polizei <750m

Verkehr
Bus <250m
U-Bahn <2.000m
Straßenbahn <750m
Bahnhof <250m
Autobahnanschluss <500m

Angaben Entfernung Luftlinie / Quelle: OpenStreetMap

Eckdaten Objektnr. 267699

Art: Einzelhandel
Land: Österreich
Baujahr: 2020
Zustand: Erstbezug
Alter: Neubau
Kaltmiete (netto): 2.063,22 €
Kaltmiete: 2.499,00 €
Betriebskosten: 435,78 €
MwSt Gesamt: 499,80 €
Nutzfläche: 185,14 m²
Gesamtfläche: 185,14 m²
Heizwärmebedarf:  C  28,10 kWh/m²a
fGEE:  A  0,71
Nebenkostenübersicht Miete Immobilie merken Exposé

Ausstattung

Estrichboden, Fernwärme, Fußbodenheizung


Immobilie anfragen


Ihre persönliche Beratung

Schantl ITH Immobilientreuhand GmbH

Martina Bezak

Schantl ITH Immobilientreuhand GmbH

T +43 664 30 7000 9

H +43 664 39 865 65