Einzigartige Wohnatmosphäre im grünen WILDGARTEN
Wohnung
,
1120
Wien
,
Leonore-Brecher-Weg
Beschreibung der Immobilie
Einzigartige Wohnatmosphäre im grünen WILDGARTEN
WOHNQUARTIER WILDGARTEN - Wohnen auf der Sonnenseite Wiens direkt am Rosenhügel
Dieses großartige Wohnprojekt im 1120 Wiener Gemeindebezirk zeichnet sich sowohl durch die ruhige und naturverbundene Lage in der Umgebung des Lainzer Tiergartens und Schloss Schönbrunn als auch durch die Nähe zur Innenstadt aus. Auf einem Areal von etwa 11 Hektar werden urbanes, modernes und familienfreundliches Wohnen in Einklang gebracht. Direkt in der Wohnhausanlage befinden sich ein Kindergarten, Einkaufsmöglichkeiten (Billa) sowie ein Restaurant.
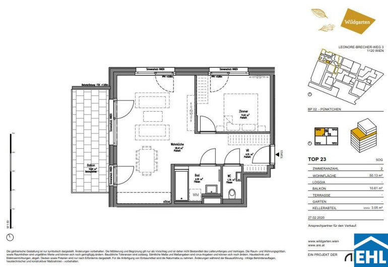
Die Wohnung selbst befindet sich im 5. Obergeschoss und verfügt über ein helles Wohnzimmer mit Küche, einem Schlafzimmer, ein Badezimmer mit Badewanne und Waschmaschinenanschluss, eine separate Toilette sowie einen Vorraum. Das Highlight ist der ca. 10m² große Balkon!
Bei den Fotos handelt es sich um Musterfotos!
Ausstattung:
- begrünte Nachbarschaft
- Parkettboden in allen Wohnräumen
- modern ausgestattet Sanitärräume
- vollausgestattete Einbauküchen (Marke Nobilia)
- zuzüglich individuelle Ausstattungsmerkmale je Haustyp
- Fernwärme – Zentralheizung
- Kabel TV / Telekom
- Ein Autoabstellplatz kann optional für 90,- brutto im Monat angemietet werden
- Kellerabteil pro Wohneinheit
Das Objekt ist nicht barrierefrei
Lage:
Zehn Minuten mit dem Rad zu Schloss Schönbrunn,
ca. 30 Minuten in die Wiener Innenstadt
ca. 20 Minuten zum Wiener Hauptbahnhof
Supermarkt (Billa), Pizzeria, Kindergarten im Wohnprojekt
Anbindung:
S-Bahn Hetzendorf
S-Bahn Atzgersdorf
Bus 63A oder 58A
Befristung: 5 Jahre , 1 Jahr Kündigungsverzicht, 3 Monate Kündigungsfrist
Nebenkosten: 3 BMM Kaution, Vertragserrichtungsgebühr
Wir weisen darauf hin, dass zwischen dem Vermittler und dem zu vermittelnden Dritten ein familiäres oder wirtschaftliches Naheverhältnis besteht.
Der Immobilienmakler erklärt, dass er – entgegen dem in der Immobilienwirtschaft üblichen Geschäftsgebrauch des Doppelmaklers – einseitig nur für den Vermieter tätig ist.
Infrastruktur / Entfernungen
Gesundheit
Arzt <1.250m
Apotheke <1.000m
Klinik <1.500m
Krankenhaus <1.000m
Kinder & Schulen
Schule <750m
Kindergarten <250m
Universität <3.750m
Höhere Schule <3.750m
Nahversorgung
Supermarkt <250m
Bäckerei <750m
Einkaufszentrum <1.750m
Sonstige
Geldautomat <1.500m
Bank <1.500m
Post <1.500m
Polizei <1.750m
Verkehr
Bus <250m
U-Bahn <2.000m
Straßenbahn <1.500m
Bahnhof <1.500m
Autobahnanschluss <2.000m
Angaben Entfernung Luftlinie / Quelle: OpenStreetMap
Eckdaten Objektnr. 41102
| Art: | Wohnung |
| Land: | Österreich |
| Baujahr: | 2020 |
| Zustand: | Gepflegt |
| Alter: | Neubau |
| Gesamtmiete: | 990,00 € |
| Kaltmiete (netto): | 779,19 € |
| Kaltmiete: | 900,00 € |
| Betriebskosten: | 120,81 € |
| MwSt Gesamt: | 90,00 € |
| Wohnfläche: | 50,13 m² |
| Zimmer: | 2 |
| Bäder: | 1 |
| WC: | 1 |
| Balkone: | 1 |
| Keller: | 3,05 m² |
| Heizwärmebedarf: | B 28,04 kWh/m²a |
| fGEE: | A 0,70 |
Ausstattung
Fliesen, Parkett, Fußbodenheizung, Einbauküche, Wohnküche / offene Küche, Personenaufzug, Westbalkon, Badewanne
Ihre persönliche Beratung
Dieser Makler ist ein offizielles Mitglied des IR – ir.at Mehr Erfahren
