Lichtdurchflutete 4-Zimmer-Dachgeschoßwohnung in herrlicher Grünlage von Bisamberg

Wohnung - Dachgeschoß, 2103 Langenzersdorf


Bisamberg ist eine idyllische Marktgemeinde mit ca. 4.800 Einwohnern und ca. 5km nordöstlich von Wien im wunderschönen Weinviertel situiert. Der vom Weinbau geprägte Ort lädt mit seinen zahlreichen Heurigen und Weinbaubetrieben zum kulinarischen Verweilen ein. Aufgrund der Nähe zu Wien, einer hervorragenden Infrastruktur sowie zahlreicher Freizeitgestaltungsmöglichkeiten ist Bisamberg ein sehr beliebter Ort am Rande Wiens. Geschäfte des täglichen Bedarfs finden Sie im Ortskern, welcher sich in unmittelbarer Nähe befindet. Durch den guten Anschluss an die Donauuferautobahn (A22) erreichen Sie die Innenstadt von Wien mit dem PKW in ca. 20-25 Minuten. Auch mit den öffentlichen Verkehrsmitteln gelangen Sie schnell in die Stadt: Mit der S-Bahn erreichen Sie Wien/Floridsdorf in ca. 10 Minuten, mit dem Bus in ca. 20 Minuten.

Beschreibung der Immobilie

Lichtdurchflutete 4-Zimmer-Dachgeschoßwohnung in herrlicher Grünlage von Bisamberg

Zum Verkauf gelangt eine traumhafte und herrlich lichtdurchflutete 4-Zimmer-Dachgeschoßwohnung in einem im Jahr 2020 errichteten Neubau in zentraler und dennoch herrlicher Grünlage von Bisamberg.



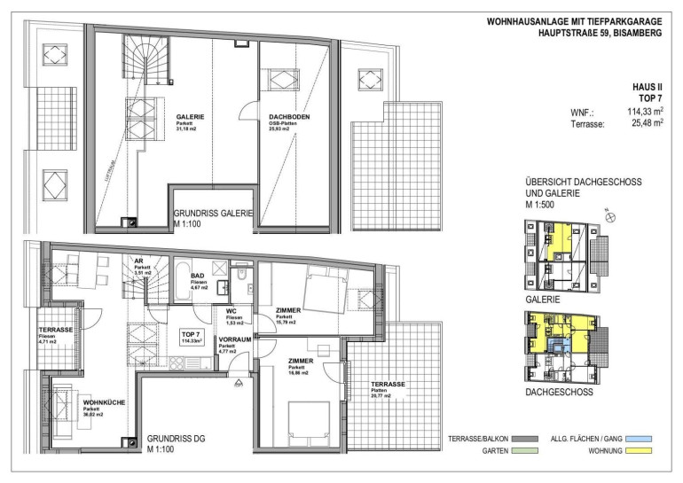
Die teilmöblierte Wohnung weist eine Wohnfläche von ca. 114 m² - aufgeteilt auf 2 Geschoße - sowie zwei Terrassen mit insgesamt ca. 25m² auf. Der Grundriss im 1. Dachgeschoß unterteilt sich in einen Vorraum, ein Badezimmer mit bodenebener Dusche, Waschtisch und Waschmaschinenanschluss, ein separates WC, zwei Schlafzimmer (davon eines mit Zugang zur ost-seitigen Terrasse) sowie eine großzügige Wohnküche mit Zugang zur west-seitigen Terrasse. Die traumhafte Tischlerküche mit hochwertigen Geräten der Marke Miele lädt zum Kochen ein. Insbesondere der Induktionsherd mit in der Kochplatte integriertem Dunstabzug bildet ein Highlight dieser tollen Küche. Der Neupreis der Küche beträgt ca. 24.000€. Auch bietet die Küche ausreichend Stauraum, da die Küchenzeile um die Ecke (Richtung Wohnzimmer) erweitert wurde. Weiteren Stauraum finden Sie im Abstellraum unter der hochwertigen Eichenholz-Treppe, welche von der Wohnküche auf die Galerie im 2. Dachgeschoß führt. Die Galerie bildet ein weiteres Highlight der Wohnung und wird durch großzügige Dachflächenfenster mit Licht durchflutet. Die Galerie führt in einen abgetrennten Dachbodenbereich mit ca. 26 m2, welcher zwar nicht zur Wohnfläche zählt, aber dennoch gleichwertig genutzt werden kann. 



Beheizt wird dieses Objekt mittels einer Gaszentralheizung in Kombination mit einer Fußbodenheizung. An heißen Sommertagen sorgt eine eingebaute Klimaanlage für ein angenehmes Raumklima. Ein großzügiges Einlagerungsabteil im Keller sowie ein im Preis inkludierter Stellplatz in der Tiefgarage runden dieses Angebot ab und macht es zu Ihrem perfekten, neuen Zuhause.





Haus 2/Top 7 Dachgeschoßwohnung



  • Wohnnutzfläche: 114,33 m²
  • Dachboden: 25,93 m²
  • Terrasse: 25,48 m²
  • Stockwerkslage: DG




Der Grundriss gliedert sich wie folgt:



1.Ebene:



  • Vorraum
  • WC
  • Bad mit bodenebener Dusche, Waschtisch und Waschmaschinenanschluss
  • Zimmer 1 mit Zugang zur ost-seitigen Terrasse
  • Zimmer 2
  • Wohnküche mit Zugang zur west-seitigen Terrasse
  • Abstellraum unter der Stiege




2.Ebene (Galerie):



  • Galerie
  • Dachboden (belichtet mittels Dachflächenfenster)






"ÜBERZEUGEN SIE SICH SELBST! ANSEHEN LOHNT SICH!"



Für weitere Details stehe ich Ihnen gerne jederzeit unter 01 997 79 20 zur Verfügung.

Infrastruktur / Entfernungen

Gesundheit
Arzt <500m
Apotheke <500m
Klinik <5.500m
Krankenhaus <3.000m

Kinder & Schulen
Schule <500m
Kindergarten <500m
Universität <2.000m
Höhere Schule <5.500m

Nahversorgung
Supermarkt <500m
Bäckerei <500m
Einkaufszentrum <2.000m

Sonstige
Geldautomat <1.000m
Bank <1.000m
Post <1.000m
Polizei <500m

Verkehr
Bus <500m
Straßenbahn <2.500m
U-Bahn <6.500m
Bahnhof <1.000m
Autobahnanschluss <3.000m

Angaben Entfernung Luftlinie / Quelle: OpenStreetMap

Eckdaten Objektnr. 199396186

Art: Wohnung - Dachgeschoß
Land: Österreich
Baujahr: 2020
Möbliert: Teil
Alter: Neubau
Kaufpreis: 535.000,00
Kaufpreis / m²: 3.814,34 €
Betriebskosten: 364,22 €
MwSt Gesamt: 36,42 €
Wohnfläche: 114,33 m²
Nutzfläche: 140,26 m²
Zimmer: 4
Bäder: 1
WC: 1
Terrassen: 2
Stellplätze: 1
Heizwärmebedarf:  B  34,60 kWh/m²a
fGEE:  A  0,83
Nebenkostenübersicht Kauf Immobilie merken Exposé

Ausstattung

Fliesen, Parkett, Gas, Fußbodenheizung, Zentralheizung, Ostbalkon, Badewanne, Kabel/Satelliten-TV


Immobilie anfragen


Ihre persönliche Beratung

Lorenz Real Construct Immobilien GmbH

Ing. Dominic Lorenz

Lorenz Real Construct Immobilien GmbH

T +43 1 9977290

H +43 660 37 99 66 1