Licht. Luft. Lebensqualität – exklusive Gartenwohnung im 21. Bezirk - Erstbezug!

Wohnung , 1210 Wien , Platzergasse


Hier vereint auf charmante Weise ruhiges Wohnen mit urbaner Lebensqualität. Inmitten einer gewachsenen, angenehmen Wohngegend im 21. Bezirk genießen Sie hier eine entspannte Atmosphäre, während Einkaufsmöglichkeiten, Schulen und öffentliche Verkehrsmittel bequem erreichbar sind. Die Nähe zu Grünflächen und Naherholungsgebieten schafft einen perfekten Ausgleich zum Alltag und lädt zu erholsamen Momenten im Freien ein. Eine Lage, die Ruhe, Lebensqualität und gute Anbindung harmonisch miteinander verbindet. Öffentliche Verkehrsanbindung: Straßenbahnlinien 30, 31// Buslinien 30A, 32A

Beschreibung der Immobilie

Licht. Luft. Lebensqualität – exklusive Gartenwohnung im 21. Bezirk - Erstbezug!

Hier freuen Sie sich jeden Tag auf´s Heimkommen...



Diese außergewöhnliche Gartenwohnung im 21. Bezirk vereint modernen Wohnkomfort mit großzügigem Freiraum und schafft ein Zuhause, das Ruhe, Licht und Lebensqualität perfekt verbindet.



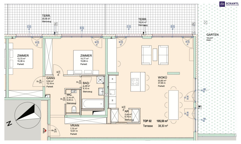
Auf rund 105,5 m² Wohnfläche erwartet Sie ein durchdachter Grundriss mit drei Zimmern. Herzstück der Wohnung ist die beeindruckend großzügige Wohn-Essküche mit über 50 m² – ein lichtdurchfluteter Lebensmittelpunkt mit direktem Zugang ins Grüne. Zwei ruhige Schlafzimmer mit ca. 14 und 15 m² bieten ideale Rückzugsorte für die ganze Familie.



Das Badezimmer überzeugt mit Badewanne und hochwertiger Ausstattung, ergänzt durch ein separates WC mit Handwaschbecken sowie einen praktischen Abstellraum.



Ein absolutes Highlight ist der Außenbereich: Rund 155 m² Eigengarten sowie zusätzlich ca. 40 m² Terrasse schaffen eine außergewöhnliche Freifläche mit viel Platz zum Entspannen, Spielen oder Genießen – perfekt für Familien oder alle, die das Leben im Grünen schätzen.



Die südöstliche Ausrichtung sorgt für angenehme Lichtverhältnisse vom Morgen bis in den Nachmittag.



Als Erstbezug präsentiert sich die Wohnung in hochwertiger Ausführung mit stilvollem Fischgrät-Echtholzparkett, 3-Scheiben Isolierverglasung, elektrische Rollläden, Fußbodenheizung sowie effizienter Luftwärmepumpe – ein zukunftsorientiertes Wohnkonzept mit besonderem Wohngefühl.



Eine perfekte, ruhige Familienwohnung mit viel Platz, Licht und Lebensqualität.



Wohnfläche: ca. 105,50 m² + Terrasse: ca. 38,30 m² + Garten: ca. 155 m² + Kellerabteil 



Kaufpreis: € 585.000,-



KP Garage (optional): € 21.500,-



Provision: 3% zzgl. 20% Ust.





Vereinbaren Sie heute noch einen Termin - wir beraten Sie gerne und zeigen Ihnen alle verfügbaren Einheiten!



www.schantl-ith.at



Bei konkretem Interesse senden wir Ihnen sehr gerne weiterführende Dokumente zu, wie:



o Grundbuchauszug



o Wohnungseigentumsvertrag



o Nutzwertgutachten



o Eigentümerversammlungsprotokoll (Falls vorhanden) etc...





Unser Service für Sie: Wenn Sie sich für diese Immobilie entschieden haben, begleiten wir Sie gerne vom Kaufanbot weg inkl. Klärung von Sonderwünschen und der Vertragsunterzeichnung über die Wohnungsübergabe bis hin zu diversen Ummeldungen wie Strom und Gas. Entsprechende Formulare oder auch Meldezettel stellen wir Ihnen sehr gerne zur Verfügung.



Gerne unterstützen wir Sie auch bei der Finanzierung Ihres Traumobjekts und finden mit unseren langjährigen Partnern die besten Konditionen für Sie.



www.schantl-ith.at


Wir weisen darauf hin, dass zwischen dem Vermittler und dem zu vermittelnden Dritten ein familiäres oder wirtschaftliches Naheverhältnis besteht.


Der Vermittler ist als Doppelmakler tätig.

Infrastruktur / Entfernungen

Gesundheit
Arzt <250m
Apotheke <750m
Klinik <2.500m
Krankenhaus <1.000m

Kinder & Schulen
Schule <500m
Kindergarten <250m
Universität <1.250m
Höhere Schule <3.500m

Nahversorgung
Supermarkt <750m
Bäckerei <750m
Einkaufszentrum <1.750m

Sonstige
Bank <1.000m
Geldautomat <1.000m
Post <1.500m
Polizei <1.000m

Verkehr
Bus <250m
U-Bahn <3.250m
Straßenbahn <250m
Bahnhof <2.000m
Autobahnanschluss <2.250m

Angaben Entfernung Luftlinie / Quelle: OpenStreetMap

Eckdaten Objektnr. 297923

Art: Wohnung
Land: Österreich
Baujahr: 2024
Zustand: Erstbezug
Alter: Neubau
Kaufpreis: 585.000,00
Kaufpreis / m²: 4.371,87 €
Betriebskosten: 292,45 €
MwSt Gesamt: 29,25 €
Wohnfläche: 105,50 m²
Nutzfläche: 133,81 m²
Zimmer: 3
Bäder: 1
WC: 1
Terrassen: 1
Garten: 155,42 m²
Heizwärmebedarf:  B  35,30 kWh/m²a
fGEE:  A  0,77
Nebenkostenübersicht Kauf Immobilie merken Exposé

Ausstattung

Fliesen, Parkett, Estrichboden, Fußbodenheizung, Zentralheizung, Wohnküche / offene Küche, Personenaufzug, Ostbalkon, Badewanne, Kabel/Satelliten-TV, Garage


Immobilie anfragen


Ihre persönliche Beratung

Schantl ITH Immobilientreuhand GmbH

Mark Prettenthaler

Schantl ITH Immobilientreuhand GmbH

T +43 6643070009

H +43 650 56 75 611