Attraktives Wohnbauprojekt in Völkermarkt – Ideale Gelegenheit für Bauträger und Investoren TOP LAGE ! ! !

Haus - Doppelhaushälfte, 9100 Völkermarkt


Die Neubauhäuser sollen in der ruhigen St. Ruprechter Straße in Völkermarkt entstehen, in leichter Hanglage mit viel Grün und Privatsphäre. Trotz der idyllischen Lage sind alle wichtigen Einrichtungen bequem erreichbar: Einkaufsmöglichkeiten, Schulen und Kindergarten liegen nur wenige Minuten entfernt, das Stadtzentrum von Völkermarkt ist in kurzer Zeit erreichbar. Die Umgebung bietet ideale Bedingungen für Familien und alle, die naturnah und dennoch zentral wohnen möchten.

Beschreibung der Immobilie

Attraktives Wohnbauprojekt in Völkermarkt – Ideale Gelegenheit für Bauträger und Investoren TOP LAGE ! ! !

Attraktives Wohnbauprojekt in Völkermarkt – Ideale Gelegenheit für Bauträger und Investoren



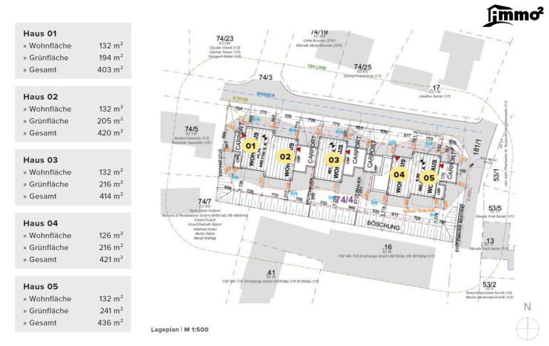
In ausgezeichneter Lage in der St. Ruprechter Straße entsteht ein hochwertiges Neubauprojekt mit insgesamt fünf Wohneinheiten, bestehend aus vier Doppelhaushälften sowie einem zentral gelegenen Einzelhaus. Das durchdachte Konzept vereint moderne Architektur, effiziente Flächennutzung und hohe Nachfrage im familienfreundlichen Wohnsegment.



Dieses Projekt bietet Bauträgern eine hervorragende Möglichkeit, in eine bereits geplante und marktgerechte Wohnanlage zu investieren, die sowohl für Eigennutzer als auch für den Weiterverkauf oder die Vermietung optimal positioniert ist.



Projektübersicht



  • Standort: Völkermarkt, Kärnten – ruhige Hanglage mit guter Infrastruktur
  • Einheiten: 4 Doppelhaushälften + 1 Einzelhaus
  • Wohnflächen: ca. 126–132 m² pro Einheit
  • Grundstücksgrößen: ca. 194–241 m² pro Einheit
  • Konzept: Moderne, familienfreundliche Häuser mit optimaler Raumaufteilung auf zwei Ebenen

  • Wirtschaftliches Potenzial


  • Attraktive Einstiegspreise:
    • Doppelhaushälften ab € 489.000
    • Einzelhaus € 510.000

  • Hohe Nachfrage nach modernen Einfamilien- und Doppelhäusern im Raum Kärnten
  • Optimale Vermarktbarkeit durch durchdachte Grundrisse und zeitgemäße Ausstattung
  • Geeignet für Einzelverkauf oder Bestandshaltung (Buy-to-sell oder Buy-to-hold Strategie)

  • Bau- und Ausstattungsstandard


  • Massivbauweise – langlebig und wertstabil
  • Luftwärmepumpe & Fußbodenheizung (energieeffizient und zukunftssicher)
  • 3-fach-Isolierverglasung
  • Schlüsselfertige Ausführung
  • Private Gärten und Terrassen bei jeder Einheit
  • Carport pro Wohneinheit

  • Standortvorteile


  • Ruhige, naturnahe Wohnlage mit hoher Lebensqualität
  • Gute Anbindung an Infrastruktur, Schulen und Nahversorgung
  • Attraktives Umfeld für Familien – starke Zielgruppe im Verkauf

  • Zusatzvorteil für Investoren



    Zeitlich begrenzter Gebührenbonus bei Erwerb bis 30.06.:


  • 1,1 % Grundbucheintragungsgebühr
  • 1,2 % Pfandrechteintragungsgebühr

    ➡️ Signifikante Reduktion der Erwerbsnebenkosten und verbesserte Projektkalkulation


  • Fazit:
    Ein durchdachtes Neubauprojekt in gefragter Lage mit klar definiertem Zielmarkt, effizienter Struktur und attraktivem Renditepotenzial – ideal für Bauträger, die ein sofort verwertbares Wohnbauprojekt suchen.



Der Vermittler ist als Doppelmakler tätig.

Infrastruktur / Entfernungen

Gesundheit
Apotheke <1.000m
Arzt <1.000m

Kinder & Schulen
Schule <1.000m
Kindergarten <5.500m

Nahversorgung
Supermarkt <500m
Bäckerei <6.500m

Sonstige
Bank <1.000m
Geldautomat <1.000m
Post <1.000m
Polizei <500m

Verkehr
Bus <500m
Autobahnanschluss <2.000m
Bahnhof <4.500m

Angaben Entfernung Luftlinie / Quelle: OpenStreetMap

Eckdaten Objektnr. 1184

Art: Haus - Doppelhaushälfte
Land: Österreich
Baujahr: 2026
Zustand: Erstbezug
Alter: Neubau
Kaufpreis: 480.000,00
Wohnfläche: 131,93 m²
Stellplätze: 2
Heizwärmebedarf:  B  44,00 kWh/m²a
fGEE:  A+  0,67
Nebenkostenübersicht Kauf Immobilie merken Exposé

Ausstattung

Parkett, Fliesen, Fußbodenheizung, Bad mit Fenster, Badewanne, Dusche, Carport, Parkplatz


Immobilie anfragen


Ihre persönliche Beratung

Immo-Hoch2

Marc M. Mayer

Immo-Hoch2

T +43 650 999 77 33