U3 ROCHUSMARKT - UNBEFRISTET - CHARMANTE ALTBAUWOHNUNG IN RUHELAGE

Wohnung , 1030 Wien


U3 / ROCHUSMARKT

Beschreibung der Immobilie

U3 ROCHUSMARKT - UNBEFRISTET - CHARMANTE ALTBAUWOHNUNG IN RUHELAGE

Zur unbefristeten Vermietung gelangt eine wunderschöne, ruhige und helle 3-Zimmer-Altbauwohnung – in unmittelbarer Nähe zum Rochusmarkt und zur U-Bahnlinie U3. Auch der grüne Prater und der Stadtpark liegen in fußläufiger Entfernung,  welche sich bestens für erholsame Spaziergänge und sportliche Freizeitaktivitäten eignen. 



Diese charmante Wohnung wurde soeben teilweise renoviert und mit einer neuen Einbauküche ausgestattet. Sie ist perfekt für Singles und Paare, da eines der Zimmer ein Durchgangszimmer ist, welches sich aber perfekt für Gäste, Home Office oder als Schrankraum eignet.





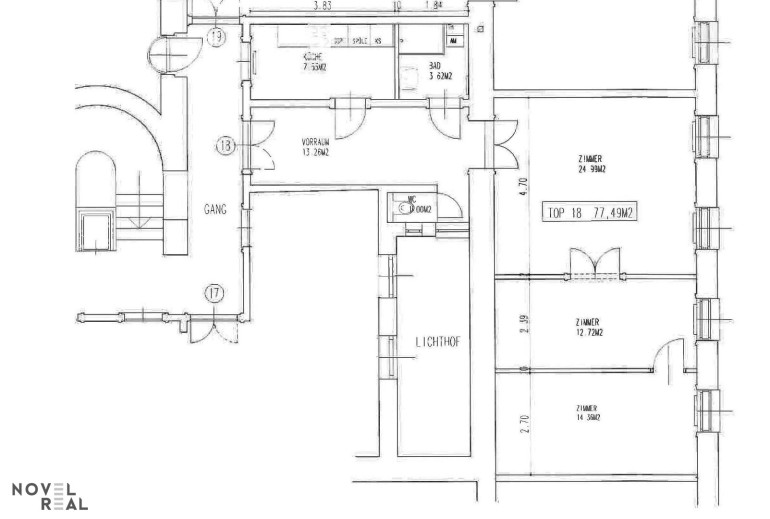
77 m² Wohnfläche:



• 25 m² Wohn-/Esszimmer



• 14 m² Schlafzimmer



• 13 m² Zimmer (perfekt für Gäste, Home Office u/o Schrankraum)



• neue, komplett ausgestattete Küche mit Geschirrspüler und Kühl-Gefrierkombination



• großzügiges Vorzimmer, das viel Stauraum ermöglicht



• neu renoviertes Bad mit Dusche samt Glasduschwand und Waschmaschine



• separate Toilette mit Handwaschbecken und Fenster



(alle Flächenangaben gerundet  - Angaben ohne Gewähr)





Der neue Hotspot von Wien - zentrale Lage mit perfekter Infrastruktur in Prater- und Stadtpark-Nähe:



• Öffentliche Verkehrsmittel:



Die Wohnung liegt in unmittelbarer Nähe der U-Bahnlinie U3 (Rochusgasse), der Buslinien 4A und 74A und der Straßenbahnlinie 1.



Sie erreichen aber auch innerhalb von nur 10 Gehminuten die Innenstadt, den Bahnhof Wien-Mitte, den Stadtpark und den grünen Prater.



Beste Anbindung auch an den Flughafen.



• Einkaufsmöglichkeiten/Ausgehen:



In der nächsten Umgebung befinden nicht nur die Einkaufsmeile Landstraßer Hauptstraße und der Rochusmarkt samt neuem Einkaufszentrum,



sondern auch ein vielfältiges Angebot an sehr guten Gastronomielokalen. 





Bitte stellen Sie Ihre Anfrage per Mail mit vollständigem Namen, Mailadresse und Telefonnummer. Sie erhalten im Anschluss umgehend die detaillierten Unterlagen samt genauer Adresse per Mail.



Aufgrund der großen Nachfrage können wir leider keine Termine per Mail koordinieren und bitten Sie um telefonische Kontaktaufnahme zur Vereinbarung eines Besichtigungstermines.





*Alle Angaben basieren alleinig auf Informationen, die uns von unserem Auftraggeber übermittelt wurden. Trotz aller Sorgfalt können wir für die Richtigkeit, Vollständigkeit und Aktualität dieser Angaben keine Gewähr übernehmen. Jegliche Weitergabe der übermittelten Daten an Dritte ist nicht gestattet. Der Maklervertrag kommt durch schriftliche Vereinbarung oder Inanspruchnahme unserer Maklertätigkeit zustande. Der Makler kann als Doppelmakler tätig werden. Sollte das von uns nachgewiesene Objekt bereits bekannt sein, teilen sie uns dies bitte unverzüglich mit.



Die Maklergebühr ist ausschließlich bei Zustandekommen eines gültigen Rechtsgeschäfts fällig und vom Käufer an Novel Real Immobilien GmbH zu zahlen. Es wird ausdrücklich auf die Nebenkostenübersicht hingewiesen. Bei den Visualisierungen und Abbildungen der Immobilie (insbesondere von Inneneinrichtungen) kann es sich um Symbolfotos bzw. fototechnisch optimierte Fotos handeln. Die in diesem Exposé veröffentlichten Inhalte und Fotos unterliegen dem österreichischen Urheberrecht. Jede Vervielfältigung, Bearbeitung, Verbreitung und jede Art der Verwendung bedürfen der vorherigen schriftlichen Zustimmung der Novel Real Immobilien GmbH.



Hiermit weisen wir auf das Bestehen eines familiären und/oder wirtschaftlichen Naheverhältnisses zum Verkäufer hin.


Wir weisen darauf hin, dass zwischen dem Vermittler und dem zu vermittelnden Dritten ein familiäres oder wirtschaftliches Naheverhältnis besteht.


Der Immobilienmakler erklärt, dass er – entgegen dem in der Immobilienwirtschaft üblichen Geschäftsgebrauch des Doppelmaklers – einseitig nur für den Vermieter tätig ist.

Infrastruktur / Entfernungen

Gesundheit
Arzt <500m
Apotheke <500m
Klinik <500m
Krankenhaus <500m

Kinder & Schulen
Schule <500m
Kindergarten <500m
Universität <500m
Höhere Schule <1.000m

Nahversorgung
Supermarkt <500m
Bäckerei <500m
Einkaufszentrum <500m

Sonstige
Geldautomat <500m
Bank <500m
Post <500m
Polizei <500m

Verkehr
Bus <500m
U-Bahn <500m
Straßenbahn <500m
Bahnhof <500m
Autobahnanschluss <2.000m

Angaben Entfernung Luftlinie / Quelle: OpenStreetMap

Eckdaten Objektnr. 6408

Art: Wohnung
Land: Österreich
Baujahr: 1890
Alter: Altbau
Gesamtmiete: 1.400,00
Kaltmiete (netto): 1.121,62 €
Kaltmiete: 1.272,73 €
Betriebskosten: 151,11 €
MwSt Gesamt: 127,27 €
Wohnfläche: 77,49 m²
Zimmer: 3
Bäder: 1
WC: 1
Keller: 3,00 m²
Heizwärmebedarf:  C  97,64 kWh/m²a
Nebenkostenübersicht Miete Immobilie merken Exposé

Ausstattung

Fliesen, Parkett, Gas, Etagenheizung, Einbauküche, Personenaufzug, Dusche, Kabel/Satelliten-TV


Immobilie anfragen


Ihre persönliche Beratung

Ulrike Krempl

Novel Real Immobilien GmbH

T +43 1 361401422

H +43 664 4264022