Jetzt anmieten - Geschäftslokal auf der Ungargasse!

Einzelhandel , 1030 Wien


Beschreibung der Immobilie

Jetzt anmieten - Geschäftslokal auf der Ungargasse!

Zur Vermietung gelangt dieses rund 142 m² große Geschäftslokal in ansprechender Lage auf der Ungargasse.

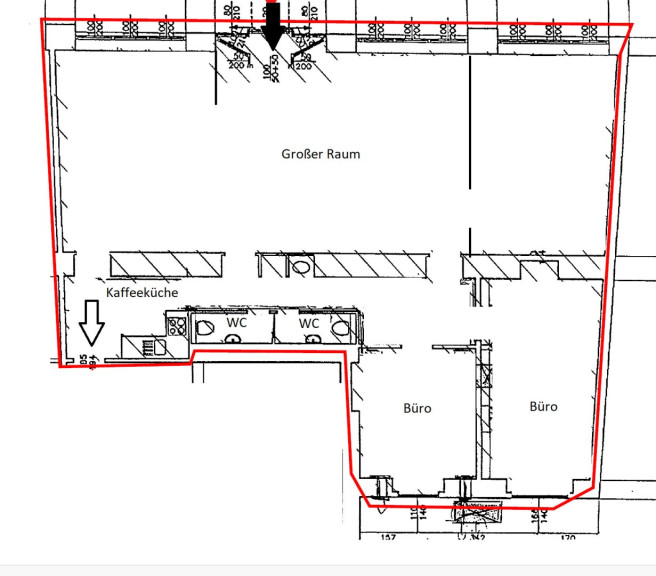
Das Objekt verfügt über einen großzügigen vorderen Bereich mit einer klimatisierten Fläche von etwa 80 m², der durch eine Glaswand bzw. ein weiteres Glasschiebemodul flexibel gestaltet werden kann. Dadurch besteht die Möglichkeit, den Raum bei Bedarf in bis zu drei separate Einheiten zu unterteilen, was eine vielseitige Nutzung ermöglicht.

Im hinteren Bereich befinden sich zwei weitere getrennte Räume sowie 2 separate Toiletten und eine kleine Teeküche. Zusätzlich bietet ein Hinterausgang direkten Zugang zum Innenhof.



Dank der durchdachten Raumaufteilung eignet sich das Objekt ideal für unterschiedliche Nutzungsarten, sei es als Einzelhandelsfläche, Büro oder Praxis, und bietet somit ein hohes Maß an Flexibilität.



Aufteilung:
- Eingangsbereich

- Großer Raum (teilbar in 3 Räumer)

- 2 hofseitige ausgerichtete Räume

- 2 getrennte Toiletten

- Kaffeeküche


Der Vermittler ist als Doppelmakler tätig.

Infrastruktur / Entfernungen

Gesundheit
Arzt <500m
Apotheke <500m
Klinik <500m
Krankenhaus <500m

Kinder & Schulen
Schule <500m
Kindergarten <500m
Universität <500m
Höhere Schule <1.000m

Nahversorgung
Supermarkt <500m
Bäckerei <500m
Einkaufszentrum <500m

Sonstige
Geldautomat <500m
Bank <500m
Post <500m
Polizei <1.000m

Verkehr
Bus <500m
U-Bahn <500m
Straßenbahn <500m
Bahnhof <500m
Autobahnanschluss <2.500m

Angaben Entfernung Luftlinie / Quelle: OpenStreetMap

Eckdaten Objektnr. 6653/896

Art: Einzelhandel
Land: Österreich
Baujahr: 1954
Alter: Neubau
Kaltmiete (netto): 1.416,13 €
Kaltmiete: 1.968,88 €
Betriebskosten: 552,75 €
MwSt Gesamt: 130,55 €
Nutzfläche: 141,63 m²
Gesamtfläche: 141,63 m²
Zimmer: 5
WC: 2
Heizwärmebedarf:  D  118,00 kWh/m²a
fGEE:  D  2,20
Nebenkostenübersicht Miete Immobilie merken Exposé

Ausstattung

Parkett, Gas, Etagenheizung


Immobilie anfragen


Ihre persönliche Beratung

Laurenz Schnitzer

Confido Immobilien GmbH

T +43 664 518 45 11

H +43 664 518 45 11