Helle Dachgeschosswohnung im 17.Bezirk

Wohnung , 1170 Wien


Nähe Rosensteingasse

Beschreibung der Immobilie

Helle Dachgeschosswohnung im 17.Bezirk

Helle Eigentumswohnung im Dachgeschoss 



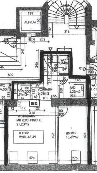
  • 48,49 m² Wohnungsfläche
  • 2 Zimmer plus NR
  • Vorraum plus Abstellraum
  • Bad mit Fenster !
  • getrenntes WC
  • freundlich & hell
  • neuwertige Küche
  • Außen- Jalousien 
  • Kellerabteil
  • Lift

Hinweis gemäß Energieausweisvorlagegesetz: Ein Energieausweis wurde vom Eigentümer bzw. Verkäufer, nach unserer Aufklärung über die generell geltende Vorlagepflicht, sowie Aufforderung zu seiner Erstellung noch nicht vorgelegt. Daher gilt zumindest eine dem Alter und der Art des Gebäudes entsprechende Gesamtenergieeffizienz als vereinbart. Wir übernehmen keinerlei Gewähr oder Haftung für die tatsächliche Energieeffizienz der angebotenen Immobilie.


Wir weisen darauf hin, dass zwischen dem Vermittler und dem zu vermittelnden Dritten ein familiäres oder wirtschaftliches Naheverhältnis besteht.


Der Vermittler ist als Doppelmakler tätig.

Infrastruktur / Entfernungen

Gesundheit
Arzt <500m
Apotheke <500m
Klinik <500m
Krankenhaus <1.500m

Kinder & Schulen
Schule <500m
Kindergarten <500m
Universität <1.500m
Höhere Schule <1.000m

Nahversorgung
Supermarkt <500m
Bäckerei <500m
Einkaufszentrum <500m

Sonstige
Geldautomat <500m
Bank <500m
Post <500m
Polizei <500m

Verkehr
Bus <500m
U-Bahn <1.000m
Straßenbahn <500m
Bahnhof <1.500m
Autobahnanschluss <3.500m

Angaben Entfernung Luftlinie / Quelle: OpenStreetMap

Eckdaten Objektnr. 197

Art: Wohnung
Land: Österreich
Baujahr: 1902
Alter: Altbau
Kaufpreis: 275.000,00
Betriebskosten: 142,74 €
MwSt Gesamt: 14,47 €
Wohnfläche: 48,49 m²
Nutzfläche: 48,49 m²
Gesamtfläche: 48,49 m²
Zimmer: 2
Bäder: 1
WC: 1
Nebenkostenübersicht Kauf Immobilie merken Exposé

Ausstattung

Gas, Etagenheizung, Zentralheizung, Einbauküche, Personenaufzug, Badewanne, Dusche, Bad mit Fenster


Immobilie anfragen


Ihre persönliche Beratung

GK Immo

Gerald Kopecny

GK Immo

T +43 660 341 08 96

H +43 660 341 08 96