Appartement in den Bergen – ruhig, modern, besonders

Wohnung , 8785 Hohentauern


in Hohentauern, sonnige und ruhige Lage

Beschreibung der Immobilie

Appartement in den Bergen – ruhig, modern, besonders

Dachgeschosswohnung mit zwei Balkonen in Hohentauern



Lichtdurchflutetes Wohnen mit Ausblick



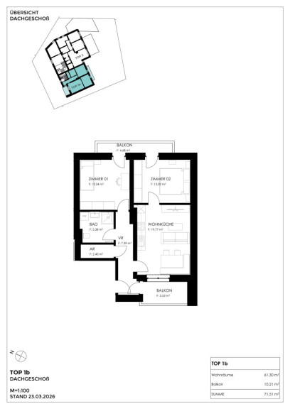
Diese attraktive Eigentumswohnung im Dachgeschoss überzeugt mit ca. 61 m² Wohnfläche und einem durchdachten Grundriss. Zwei Balkone mit ca. 4,68 m² und ca. 5,53 m² bieten zusätzliche Freiräume und laden dazu ein, die umliegende Natur in vollen Zügen zu genießen.



Der Vorraum bildet den zentralen Eingangsbereich und erschließt alle Räume der Wohnung. Neben einem praktischen Abstellraum und einem Badezimmer mit WC verfügt die Einheit über zwei vielseitig nutzbare Zimmer, die beide Zugang zu einem Balkon bieten. Die Wohnküche mit Ausgang auf den zweiten Balkon schafft einen offenen, einladenden Lebensmittelpunkt.



Raumaufteilung im Überblick:
Vorraum | Abstellraum | Bad mit WC | 2 Zimmer mit Balkonzugang (4,68 m²) | Wohnküche mit Balkonzugang (5,53 m²)



Beheizt wird die Wohnung mittels moderner Pelletsheizung in Kombination mit Fußbodenheizung und Radiatoren, was für ein angenehmes und nachhaltiges Wohnklima sorgt.



Diese Wohnung eignet sich sowohl für Eigennutzer als auch für Anleger: Sie ist zweitwohnsitzfähig und bietet die Möglichkeit der touristischen Vermietung – eine attraktive Kombination aus Lebensqualität und Investment.



Sichern Sie sich diese besondere Immobilie und verwirklichen Sie Ihren Wohntraum oder Ihre Investitionsidee in bester Lage.


Der Vermittler ist als Doppelmakler tätig.

Infrastruktur / Entfernungen

Gesundheit
Arzt <2.000m
Apotheke <7.000m

Kinder & Schulen
Schule <6.500m
Kindergarten <7.000m

Nahversorgung
Supermarkt <7.000m
Bäckerei <6.500m

Sonstige
Bank <2.500m
Geldautomat <2.500m
Polizei <7.000m
Post <2.500m

Verkehr
Bus <1.000m
Autobahnanschluss <7.500m
Bahnhof <7.000m
Flughafen <7.500m

Angaben Entfernung Luftlinie / Quelle: OpenStreetMap

Eckdaten Objektnr. 11065

Art: Wohnung
Land: Österreich
Kaufpreis: 239.000,00
Wohnfläche: 61,30 m²
Zimmer: 3
Bäder: 1
WC: 1
Balkone: 2
Stellplätze: 1
Heizwärmebedarf:  C  83,60 kWh/m²a
fGEE:  A  0,83
Nebenkostenübersicht Kauf Immobilie merken Exposé

Ausstattung

Fußbodenheizung, Zentralheizung, Nordbalkon, Südbalkon, Dusche


Immobilie anfragen


Ihre persönliche Beratung

wohn4you Immobilien Bacher & Steininger Immobilienmakler KG

Hans Jürgen Bacher

wohn4you Immobilien Bacher & Steininger Immobilienmakler KG

T +43 3612 25080

H +43 676 49 756 73

F +43 3612 25081