Perfekt geschnittene Familienwohnung mit Balkon - Nähe Erholungsgebiet Wienerberg

Wohnung , 1100 Wien , Am marokkanischen Platz / Laxenburger Straße


Beschreibung der Immobilie

Perfekt geschnittene Familienwohnung mit Balkon - Nähe Erholungsgebiet Wienerberg

Inspiriert von der Kultur und der unvergleichlichen Schönheit Marokkos, ist der Schöne Platz mehr als nur ein Wohnensemble – es ist eine Ode an die Liebe zur Natur, zur Kunst und zur Lebensfreude.



Eingebettet in die künstlerische Gartengestaltung von André Heller bieten die neuen Wohnungen einen großzügigen Blick in die weite Landschaft über die benachbarte Kleingartensiedlung. Das lebendige Farbenspiel der diversen Mosaikböden bei den Glashäusern und die mediterrane Bepflanzung im marokkanischen Garten schaffen eine harmonische Verbindung zwischen Architektur und Natur. Eine Allee aus Bambus bildet entlang der südlichen Grenze einen malerischen grünen Abschluss und eine geschützte Ruhezone für die Bewohner.



Moderne Eleganz, vereint mit marokkanischem Flair:
Die 36 exklusiven Eigentumswohnungen wurden mit äußerster Sorgfalt geplant, um ein Höchstmaß an Komfort und Ästhetik zu bieten - von den großzügigen Balkonen bis zu den geschmackvollen Details in jedem Raum.

An der Fassade rankt sich üppiges Grün über die insgesamt sieben Geschosse bis zum Dach, auf dem als Abschluss ein Kräutergarten nach Hildegard von Bingen auf die Bewohner wartet. Leuchtbänder an der Fassade, gemeinsam mit indirekter Beleuchtung an der Unterseite der Balkone, sorgen für magische Lichtstimmungen. Im Aufzug begeistert eine grüne Mooswand hinter Glas.



Die Wohnungen verfügen über ein effizientes Heiz- und Temperierungssystem mit Betonkernaktivierung und gelegentlicher Fußbodentemperierung. Es passt sich automatisch den Wetterbedingungen an und wird zentral gesteuert. Elektrisch steuerbare

Außenjalousien
bieten zusätzlichen Sonnenschutz und Lichtregulierung.



Ein Ort zum Leben und Arbeiten:
Die vier separaten Büroeinheiten, verbunden mit den Wohnungen und dennoch separat zugänglich, bieten eine einzigartige Möglichkeit, das Leben und die Arbeit zu vereinen. Hier können Sie Kundentermine abhalten, Besprechungen führen oder einfach nur in Ruhe

arbeiten, ohne Ihr Zuhause verlassen zu müssen.



Eine Verbindung zur Natur und zur Stadt:
Der Schöne Platz liegt nicht nur inmitten einer grünen Oase, sondern ist auch perfekt an die Stadt angebunden. Die U-Bahn-Station U1 „Altes Landgut“ ist nur wenige Minuten entfernt, und zahlreiche Parkanlagen und Naherholungsgebiete bieten die Möglichkeit, dem Trubel der Stadt zu entfliehen.

Ein Supermarkt im angrenzenden Gebäude rundet das Angebot ab, indem er Bewohnern und Besuchern eine bequeme Einkaufsmöglichkeit direkt vor der Haustür bietet.



Zusätzlich können sich die neuen Bewohner über eine hauseigene Tiefgarage, Kellerabteile, Kinderwagen- und Fahrradabstellräume freuen.



Die angeführten Fotos sind Beispielbilder einer bereits fertiggestellten Wohnung im Projekt.

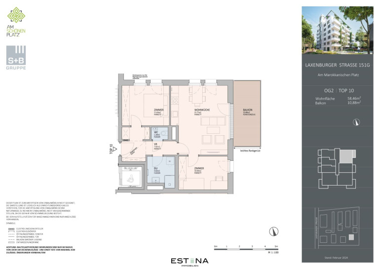
Raumaufteilung:
- Vorraum

- geräumige Wohnküche mit Zugang zum Balkon 

- 2 Schafzimmer, eins davon mit Schrankraum 

- Badezimmer mit Walk-Inn Dusche, Waschbecken und Waschmaschinenanschluss 

- separate Toilette inkl. Handwaschbecken  

- Balkon 



Lage und Infrastruktur: 
Dieses einzigartige Wohnprojekt befindet sich im Süden Wiens im 10. Wiener Gemeindebezirk. Alle Geschäfte und Dienstleistungen rund um das tägliche Leben wie Supermärkte, Bäcker, Apotheke, Drogeriemarkt, Bank und Post liegen in unmittelbarer Nähe. Die Therme Wien und das umliegende Naherholungsgebiet Wienerberg mit zahlreichen Badeseen runden das Infrastrukturangebot ab.



Die Busstation der Linie 15A bringt sie unter 5 Minuten zu U1 Altes Landgut oder in ca. 3 Minuten zu den Bürozentren am Wienerberg. Mit der Straßenbahnlinie 11 und O gelangt man in nur 15 Minuten in die Wiener Innenstadt (Karlsplatz). Darüber hinaus erreicht man mit der Straßenbahnlinie 6 in nur wenigen Minuten auch an die U-Bahnlinien U1, U4 und U6. Auch mit dem Auto ist man durch die Nähe zur S1, A2 und A4 bestens gebunden.



Kosten:
Kaufpreis: € 570.000,- für Endnutzer (€ 518.181,82 exkl. 20% USt. für Anleger)



PROVISIONSFREI!



Ein Stellplatz um € 29.000,- kann zusätzlich gekauft werden. 



Kontakt:
Bei Fragen oder zur Vereinbarung eines Besichtigungstermins wenden Sie sich bitte an Frau Danja Dieringer unter dieringer@estina.at oder mobil unter 0676 344 95 19.

Eckdaten Objektnr. 26898

Art: Wohnung
Land: Österreich
Baujahr: 2024
Zustand: Erstbezug
Alter: Neubau
Kaufpreis: 570.000,00
Wohnfläche: 58,50 m²
Zimmer: 3
Bäder: 1
WC: 1
Balkone: 1
Stellplätze: 1
Heizwärmebedarf:  A  21,21 kWh/m²a
fGEE:  A+  0,69
Nebenkostenübersicht Kauf Immobilie merken Exposé

Ausstattung

Fliesen, Parkett, Alternativ, Wohnküche / offene Küche, Personenaufzug, Ostbalkon, Dusche, Tiefgarage


Immobilie anfragen


Ihre persönliche Beratung

ESTINA Immobilien GmbH

Danja Dieringer

WH2 Immobilienverwertungs GmbH

H +43 676 344 95 19