Süd-Balkon ☀️ | Perfekte 3-Zimmer-Neubauwohnung mit 72 m² – Jetzt besichtigen!

Wohnung , 1230 Wien , Anton-Baumgartner-Straße


Die Wohnung befindet sich in der Anton-Baumgartner-Straße im 23. Wiener Gemeindebezirk und überzeugt durch eine sehr gute Infrastruktur sowie eine hervorragende öffentliche Verkehrsanbindung. Nur wenige Gehminuten entfernt befindet sich die Badner Bahn, die eine schnelle Verbindung sowohl in Richtung Wiener Innenstadt als auch nach Baden ermöglicht. Von hier gelangt man in rund 30 Minuten direkt zur Wiener Staatsoper. Zusätzlich ist die U6 in kurzer Zeit erreichbar und sorgt für eine optimale Anbindung innerhalb Wiens. Mehrere Buslinien ergänzen das öffentliche Verkehrsangebot. Auch der Bahnhof Wien Meidling, einer der wichtigsten Verkehrsknotenpunkte Wiens mit Anschluss an U-Bahn, S-Bahn und Fernverkehr, ist rasch erreichbar. Ein besonderer Pluspunkt der Lage ist die Nähe zum Liesingbach. Der beliebte Rad- und Spazierweg entlang des Baches bietet zahlreiche Möglichkeiten für Freizeit, Sport und Erholung im Grünen – praktisch direkt vor der Haustüre. Darüber hinaus befinden sich Supermärkte, Geschäfte des täglichen Bedarfs, Restaurants, Schulen und Kindergärten in unmittelbarer Umgebung und sorgen für kurze Wege im Alltag. Die Lage verbindet somit urbane Infrastruktur, ausgezeichnete Verkehrsanbindung und naturnahe Erholungsmöglichkeiten – eine Kombination, die besonders in Wien sehr gefragt ist.

Beschreibung der Immobilie

Süd-Balkon ☀️ | Perfekte 3-Zimmer-Neubauwohnung mit 72 m² – Jetzt besichtigen!

Süd-Balkon ☀️ | Perfekte 3-Zimmer-Neubauwohnung mit 72 m² – Jetzt besichtigen!



Sonne am Balkon, ein perfekter Grundriss und hochwertige Ausstattung – diese attraktive Neubauwohnung vereint Wohnkomfort, Helligkeit und durchdachte Planung auf rund 72 m² Wohnfläche.



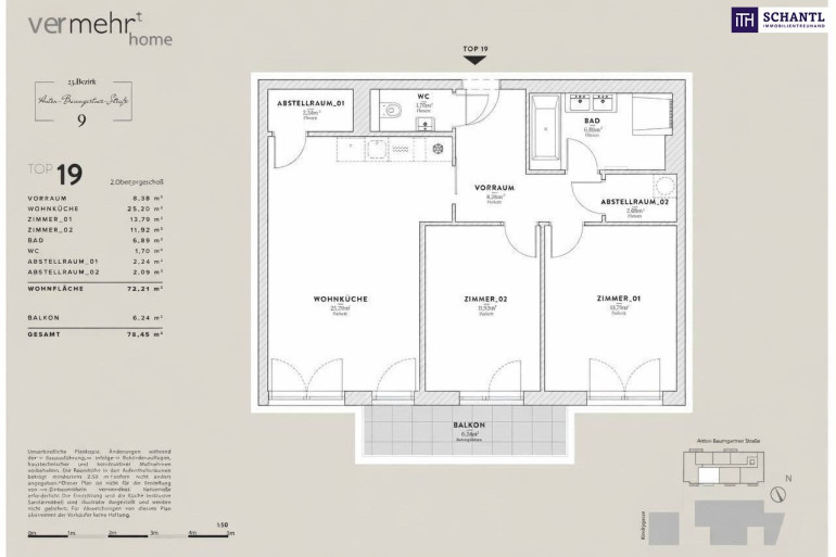
In einem gepflegten Neubau in der Anton-Baumgartner-Straße im 23. Wiener Gemeindebezirk gelangt diese hochwertig ausgestattete 3-Zimmer-Wohnung mit Süd-Balkon zum Verkauf.



Die Wohnung befindet sich im 2. Stock und überzeugt durch eine besonders effiziente Raumaufteilung. Herzstück ist die großzügige Wohnküche, ausgestattet mit einer Designerküche mit eleganten Holzfronten und hochwertiger Stein-Arbeitsplatte, die modernes Design mit Funktionalität verbindet.



Zwei gut geschnittene Schlafzimmer bieten vielseitige Nutzungsmöglichkeiten – ideal als Schlafzimmer, Kinderzimmer oder Homeoffice.



Das Badezimmer wurde ebenfalls hochwertig ausgeführt und verfügt über eine maßgefertigte, großzügige Duschkabine sowie ein Doppelwaschbecken mit edlem Unterschrank aus echtem Holz, was dem Raum eine besonders hochwertige Atmosphäre verleiht.



Ein separates WC, eine Speis sowie ein zusätzlicher Abstellraum sorgen für praktischen Stauraum im Alltag.



Der Süd-Balkon mit ca. 6,24 m² erweitert den Wohnraum nach außen und bietet einen angenehmen Platz zum Entspannen.



Zur Wohnung gehört außerdem ein Kellerabteil, das zusätzlichen Stauraum bietet. Im Haus stehen den Bewohnern zudem Fahrradabstellräume zur Verfügung.




Highlights



  • Neubau
  • Designerküche mit Steinplatte und Holzfronten 
  • Maßgefertigte großzügige Duschkabine
  • Doppelwaschbecken mit hochwertigem Echtholz-Unterschrank
  • Praktische 3-Zimmer-Aufteilung
  • Süd-Balkon ca. 6,24 m²
  • Bad und WC getrennt
  • Speis und zusätzlicher Abstellraum
  • Kellerabteil
  • Fahrradraum im Haus
  • Gute Infrastruktur und Verkehrsanbindung
  • Tiefgarage im Haus vorhanden



? Kaufpreis: € 399.000



Interesse geweckt?
Kontaktieren Sie uns gerne für weitere Informationen oder zur Vereinbarung eines Besichtigungstermins.





Eine attraktive Möglichkeit, in den Wiener Immobilienmarkt einzusteigen – sowohl zur Eigennutzung als auch als nachhaltige Kapitalanlage.



Jetzt besichtigen – bevor es zu spät ist!



Bei konkretem Interesse senden wir Ihnen sehr gerne weiterführende Dokumente zu, wie:



o Grundbuchauszug



o Wohnungseigentumsvertrag



o Nutzwertgutachten



o Eigentümerversammlungsprotokoll (Falls vorhanden) etc...



www.schantl-ith.at


Wir weisen darauf hin, dass zwischen dem Vermittler und dem zu vermittelnden Dritten ein familiäres oder wirtschaftliches Naheverhältnis besteht.

Infrastruktur / Entfernungen

Gesundheit
Arzt <250m
Apotheke <250m
Klinik <1.500m
Krankenhaus <1.500m

Kinder & Schulen
Schule <1.000m
Kindergarten <1.000m
Universität <3.500m
Höhere Schule <3.000m

Nahversorgung
Supermarkt <250m
Bäckerei <1.250m
Einkaufszentrum <1.000m

Sonstige
Geldautomat <1.000m
Bank <1.000m
Post <1.250m
Polizei <250m

Verkehr
Bus <250m
U-Bahn <1.250m
Straßenbahn <1.250m
Bahnhof <250m
Autobahnanschluss <500m

Angaben Entfernung Luftlinie / Quelle: OpenStreetMap

Eckdaten Objektnr. 297781

Art: Wohnung
Land: Österreich
Baujahr: 2021
Alter: Neubau
Kaufpreis: 399.000,00
Kaufpreis / m²: 5.296,69 €
Betriebskosten: 116,59 €
MwSt Gesamt: 13,35 €
Wohnfläche: 72,21 m²
Nutzfläche: 75,33 m²
Zimmer: 3,50
Bäder: 1
WC: 1
Balkone: 1
Keller: 3,27 m²
Heizwärmebedarf:  B  30,31 kWh/m²a
fGEE:  A  0,79
Nebenkostenübersicht Kauf Immobilie merken Exposé

Ausstattung

Parkett, Fliesen, Gas, Fußbodenheizung, Einbauküche, Wohnküche / offene Küche, Personenaufzug, Südbalkon, Badewanne, Dusche


Immobilie anfragen


Ihre persönliche Beratung

Schantl ITH Immobilientreuhand GmbH

Dejan Ljepoja, MBA

Schantl ITH Immobilientreuhand GmbH

T +43 664 307 00 09

H +43 660 199 20 22