Traumhaftes Baugrundstück in 8062 Rabnitz – sonnige Lage mit herrlichem Ausblick!

Grundstück , 8062 Rabnitz , Rabnitzbrücke


Das Grundstück befindet sich in Rabnitz bei St. Radegund, einer ruhigen und naturnahen Wohnlage im beliebten Grazer Umland. Die Umgebung überzeugt durch ihre idyllische Landschaft sowie den herrlichen Schöcklblick und weiten Fernblick. Dank der sonnigen Westausrichtung genießen Sie zahlreiche Sonnenstunden und stimmungsvolle Abendsonne. Eine Bushaltestelle in unmittelbarer Nähe sorgt für eine gute Anbindung, während Graz in kurzer Zeit erreichbar ist. Die Lage vereint somit Ruhe, Natur und gute Infrastruktur – ideal für alle, die naturnah wohnen und dennoch stadtnah bleiben möchten.

Beschreibung der Immobilie

Traumhaftes Baugrundstück in 8062 Rabnitz – sonnige Lage mit herrlichem Ausblick!

Traumhaftes Baugrundstück in 8062 Rabnitz – sonnige Lage mit herrlichem Ausblick!





Willkommen in Rabnitz – einem Ort, an dem Sie Ihren Wohntraum inmitten der wunderschönen steirischen Landschaft verwirklichen können.



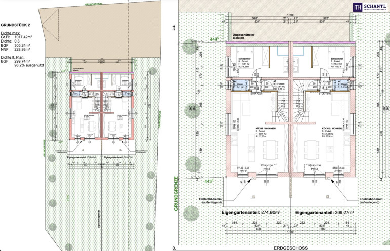
Dieses attraktive Baugrundstück mit einer großzügigen Fläche von 944 m² bietet Ihnen die ideale Grundlage für Ihr zukünftiges Zuhause oder eine wertbeständige Investition.



Die Liegenschaft begeistert mit einem wunderschönen Bergblick, herrlichem Fernblick sowie einem idyllischen Grünblick – beste Voraussetzungen für ein Zuhause mit hoher Lebensqualität und besonderem Wohlfühlfaktor.





Ob modernes Einfamilienhaus, gemütliches Familienheim oder zukunftsorientierte Investition: Dieses Grundstück bietet vielfältige Möglichkeiten zur Verwirklichung Ihrer Vorstellungen. Die ruhige Umgebung schafft ein angenehmes Wohngefühl, während die Nähe zur Natur jeden Tag zu etwas Besonderem macht.





Auch die Infrastruktur kann sich sehen lassen: Eine Bushaltestelle in unmittelbarer Nähe sorgt für eine praktische und unkomplizierte Anbindung an die umliegenden Orte. Zusätzlich befinden sich wichtige Einrichtungen des täglichen Bedarfs, wie etwa ein Arzt, in gut erreichbarer Nähe. So genießen Sie die perfekte Kombination aus naturnahem Wohnen und alltagstauglicher Infrastruktur.







Ihre Highlights auf einen Blick:






  • Großzügige 944 m² Grundstücksfläche



  • Traumhafter Schöcklblick



  • Sonnige Westausrichtung – perfekte Abendsonne



  • Wunderschöner Fernblick & Grünblick



  • Ruhige und naturnahe Lage mit hoher Lebensqualität



  • Ideale Größe für Ihr individuelles Einfamilienhaus



  • Gute Verkehrsanbindung durch Bus in unmittelbarer Nähe



  • Wichtige Infrastruktur (Arzt etc.) schnell erreichbar



  • Attraktives Preis-Leistungs-Verhältnis



  • Perfekt geeignet für Eigennutzer & Anleger








Nutzen Sie diese besondere Gelegenheit und sichern Sie sich ein Grundstück in einer der reizvollsten Lagen der Steiermark.



In Rabnitz erwarten Sie Ruhe, Ausblick und zahlreiche Möglichkeiten, Ihren persönlichen Wohntraum zu verwirklichen.





Worauf noch warten?



Vereinbaren Sie noch heute eine Besichtigung oder eine persönliche Beratung mit uns!



Sie wollen Ihre Immobilie verkaufen? Dann sind Sie bei uns goldrichtig!




Wir sind gerne für Sie da und unterstützen Sie unverbindlich bei der Bewertung Ihrer Immobilie. Mit viel Sorgfalt stellen wir Ihnen alle wichtigen Informationen und Unterlagen zusammen, damit Sie die besten Entscheidungen treffen können.



In Kooperation mit unserer SFI Vermögenstreuhand begleiten wir Sie bei der Verwirklichung Ihres Traumobjekts und unterstützen Sie beim nachhaltigen Vermögensaufbau.



Mit unseren erfahrenen Experten sorgen wir dafür, dass Sie die besten Konditionen erhalten – damit Ihre Träume Wirklichkeit werden!



www.schantl-ith.at in Kooperation mit www.sfi-invest.com 



Die Angaben über das angebotene Objekt erfolgen mit der Sorgfalt eines ordentlichen Immobilienmaklers; für die Richtigkeit solcher Angaben, die auf Informationen der über das Objekt Verfügungsberechtigten beruhen, wird keine Gewähr geleistet.

Infrastruktur / Entfernungen

Gesundheit
Arzt <1.000m
Klinik <3.500m
Apotheke <2.750m
Krankenhaus <3.250m

Kinder & Schulen
Kindergarten <1.750m
Schule <1.750m
Universität <9.000m
Höhere Schule <7.000m

Nahversorgung
Supermarkt <1.500m
Bäckerei <7.000m

Sonstige
Geldautomat <1.500m
Bank <1.500m
Post <3.750m
Polizei <1.500m

Verkehr
Bus <500m
Straßenbahn <6.000m
Bahnhof <10.000m

Angaben Entfernung Luftlinie / Quelle: OpenStreetMap

Eckdaten Objektnr. 297677

Art: Grundstück
Land: Österreich
Kaufpreis: 155.000,00
Grundstücksfl.: 1.017,00 m²
Nebenkostenübersicht Kauf Immobilie merken Exposé

Immobilie anfragen


Ihre persönliche Beratung

Schantl ITH Immobilientreuhand GmbH

Christopher Wischenbart, BSc

Schantl ITH Immobilientreuhand GmbH

T +43 664 5411047

H +43 664 2507403