GENIAL und RAR!! 5-Zimmer-Penthouse mit grandiosem Fernblick, bester Ausstattung und herrlicher Terrasse!

Wohnung - Penthouse, 1120 Wien , Breitenfurter Straße


Welch geniale Lage! Durch die zentrale Lage des Projekts in der kommen Sie mit, aber auch ohne Auto, überall unkompliziert hin. Zu Fuß erreichen Sie in 5-10 Gehminuten alle wichtigen Versorgungseinrichtungen. Durch die Lage zwischen dem Erholungsgebiet Wienerberg und dem Schlosspark Schönbrunn lassen sich verschiedenste Freizeitmöglichkeiten, wie das Kino Wienerberg, die SCS, oder der Tiergarten Schönbrunn einfach und bequem erreichen. Direkt vor dem Haus befindet sich die Haltestelle Sonnergasse, bei der die Buslinie 62A sowie die Straßenbahnlinie 62 hält. Diese bringt Sie in wenigen Minuten zur U- und S-Bahn Wien Meidling und somit bequem weiter die Innenstadt. Mit ihrer erstklassigen Lage, der Nähe zu Parks, öffentlichen Verkehrsmitteln und Einkaufsmöglichkeiten ist die Wohnung ein idealer Ort für ein komfortables und anspruchsvolles Leben in Wien.

Beschreibung der Immobilie

GENIAL und RAR!! 5-Zimmer-Penthouse mit grandiosem Fernblick, bester Ausstattung und herrlicher Terrasse!

Hoch modernes Wohnen im 12. Bezirk – Ihr neues Zuhause in nahe Wien Meidling!



Ob stilvolle Neubauwohnungen, oder anspruchsvolles Wohnen im Dachgeschoss – hier haben Sie die Qual der Wahl!



In bester Lage, nur wenige Schritte zur S-Bahn, erstrahlt dieser Neubau elegant und stilvoll. Die Fassade fügt sich harmonisch in das Straßenbild ein, während der puristisch gestaltete Hauseingang und der Personenlift sofort überzeugen. Die Tiefgarage, Fahrrad-Abstellräume, sowie die moderne Heizungsanlage, versprechen ein anspruchsvolles und nachhaltiges Wohnen! 



Die durchdachte Raumgestaltung in den Wohnungen eignet sich perfekt für Familien, Paare und Singles – hier findet jeder seinen Platz. Viele Wohnungen verfügen zudem über private Freiflächen, die in den ruhigen Innenhof gerichtet sind und einen traumhaften Grün-, sowie Fernblick in den Süden von Wien bieten. Genießen Sie hier Ihr wohlverdientes Feierabendgetränk nach einem anstrengenden Arbeitstag.



Facts:



  • Eichen-Parkett (Landhausdiele),
  • elegante Fliesen (60x60 cm)
  • Armaturen (Hansgrohe), Keramiken (Laufen)
  • Wohnungstüren der Widerstandsklasse WK3
  • Luftwärmepumpen - Fußbodenheizung und -kühlung,
  • Klimaanlage von LG  
  • Video Gegensprechanlage
  • Hauseigene Tiefgarage
  • elektrische Rollos/Jalousien
  • dreifach isolierverglaste Fenster
  • Einlagerungsräume im Erdgeschoß 
  • Innentüren flächenbündig, uvm...


Überzeugen Sie sich selbst von diesem außergewöhnlichen Projekt, das mit viel Liebe zum Detail realisiert wurde. 





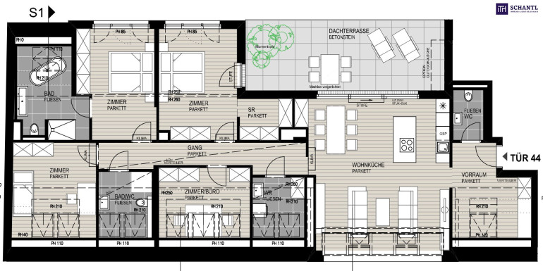
TOP 44 - Nordsüdseitig ausgerichtete 5-Zimmer-Wohnung im 2.DG!



Wenn Sie nach unten schauen, liegt Ihnen die Stadt zu Füßen. Kopf hoch, und der Himmel über Wien ist zum Greifen nah. Genau so und nicht anders präsentiert sich dieses wunderbar angelegte Penthouse. Diese Wohnung beeindruckt mit einem großzügigen Raumangebot. Viel Platz für gemütliche Abende mit Familie und Freunden finden Sie in dem über 40 Quadratmeter großen Wohn- Essbereich, mit dem zentralen Platz für Ihre neue Küche, die die Herzen von Hobbyköchen mit Sicherheit höher schlagen lässt. Vier wunderbar geschnittene Zimmer zwischen 12,2 m² und 16,4 m², die sich ideal als Schlafzimmer, Kinderzimmer, oder Arbeitszimmer nutzen lassen, zwei modern gestaltete Badezimmer (beide mit Tageslicht) mit Dusche, freistehender Badewanne und WC, eine separates Gäste WC, sowie der sehr nützliche Wirtschaftsraum mit dem Waschmaschinen Anschluss und Handwaschbecken, ergänzen das Raumangebot dieser genial gestalteten Wohnung. Die gut 26,6 m² große und ruhige Terrasse im Innenhof, ist in Richtung Süden ausgerichtet und perfektioniert dieses charmante Penthouse im Erstbezug. So wohnt man gerne!



Wohnfläche: ca. 153 m² + Terrasse: ca. 26,63 m² + Kellerabteil



Kaufpreis: € 965.000,-



Garage (optional): € 26.500.-



Provision: 3% vom KP zzgl. 20% Ust. 





Bei konkretem Interesse senden wir Ihnen sehr gerne weiterführende Dokumente zu, wie:



o Grundbuchauszug



o Wohnungseigentumsvertrag



o Nutzwertgutachten



o Eigentümerversammlungsprotokoll (Falls vorhanden) etc...





Unser Service für Sie: Wenn Sie sich für diese Immobilie entschieden haben, begleiten wir Sie gerne vom Kaufanbot weg inkl. Klärung von Sonderwünschen und der Vertragsunterzeichnung über die Wohnungsübergabe bis hin zu diversen Ummeldungen wie Strom und Gas. Entsprechende Formulare oder auch Meldezettel stellen wir Ihnen sehr gerne zur Verfügung.



Gerne unterstützen wir Sie auch bei der Finanzierung Ihres Traumobjekts und finden mit unseren langjährigen Partnern die besten Konditionen für Sie.



Vereinbaren Sie noch heute einen Termin, wir beraten Sie gerne!



Sie wollen Ihre Immobilie verkaufen? Dann sind Sie bei uns goldrichtig! Gerne beraten wir Sie kostenlos bei der Bewertung Ihrer Immobilie und präsentieren Ihnen die dafür entscheidenden Informationen und Unterlagen unverbindlich. 



www.schantl-ith.at


Wir weisen darauf hin, dass zwischen dem Vermittler und dem zu vermittelnden Dritten ein familiäres oder wirtschaftliches Naheverhältnis besteht.


Der Vermittler ist als Doppelmakler tätig.

Infrastruktur / Entfernungen

Gesundheit
Arzt <250m
Apotheke <500m
Klinik <1.250m
Krankenhaus <1.750m

Kinder & Schulen
Schule <750m
Kindergarten <500m
Universität <2.000m
Höhere Schule <1.750m

Nahversorgung
Supermarkt <500m
Bäckerei <750m
Einkaufszentrum <1.250m

Sonstige
Geldautomat <750m
Bank <750m
Post <750m
Polizei <750m

Verkehr
Bus <250m
U-Bahn <750m
Straßenbahn <250m
Bahnhof <500m
Autobahnanschluss <1.250m

Angaben Entfernung Luftlinie / Quelle: OpenStreetMap

Eckdaten Objektnr. 297769

Art: Wohnung - Penthouse
Land: Österreich
Baujahr: 2024
Zustand: Erstbezug
Alter: Neubau
Kaufpreis: 965.000,00
Kaufpreis / m²: 5.816,06 €
Betriebskosten: 196,26 €
MwSt Gesamt: 21,17 €
Wohnfläche: 152,60 m²
Nutzfläche: 165,92 m²
Zimmer: 5
Bäder: 2
WC: 3
Terrassen: 1
Stellplätze: 1
Keller: 2,34 m²
Heizwärmebedarf:  B  33,60 kWh/m²a
fGEE:  A  0,77
Nebenkostenübersicht Kauf Immobilie merken Exposé

Ausstattung

Estrichboden, Fliesen, Parkett, Fußbodenheizung, Wohnküche / offene Küche, Personenaufzug, Bad mit Fenster, Badewanne, Dusche, Kabel/Satelliten-TV, Tiefgarage


Immobilie anfragen


Ihre persönliche Beratung

Schantl ITH Immobilientreuhand GmbH

Mark Prettenthaler

Schantl ITH Immobilientreuhand GmbH

T +43 6643070009

H +43 650 56 75 611