Perfekte Stadtwohnung - 2-Zimmer mit separater Küche!

Wohnung , 4020 Linz


Beschreibung der Immobilie

Perfekte Stadtwohnung - 2-Zimmer mit separater Küche!

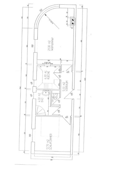
Die lichtdurchflutete Wohnung im Stadtzentrum verfügt über eine Wohnfläche von rund 51 m². Vom Vorraum aus sind alle Räume zentral begehbar: das Schlafzimmer, die separate, möblierte Küche, das Badezimmer mit Dusche sowie das separate WC und der großzügige Wohn- und Essbereich. Der Wohnraum überzeugt durch viel Tageslicht und bietet ausreichend Platz für eine individuelle Gestaltung mit gemütlicher Essecke.



Lage:
Die Wohnung befindet sich im Zentrum der Linzer Innenstadt und ist hervorragend an das öffentliche Verkehrsnetz angebunden. Straßenbahnen und Busse sind nur wenige Meter vom Wohngebäude entfernt. Der Hauptbahnhof ist mit öffentlichen Verkehrsmitteln in weniger als 10 Minuten erreichbar. Dank der zentralen Lage befinden sich Nahversorger, Schulen, Einkaufsmöglichkeiten und zahlreiche weitere Einrichtungen in unmittelbarer Nähe.



Gerne stehen wir für eine Besichtigung zur Verfügung!



Petra Strobl - 0664 24 733 58


Wir weisen darauf hin, dass zwischen dem Vermittler und dem zu vermittelnden Dritten ein familiäres oder wirtschaftliches Naheverhältnis besteht.


Der Immobilienmakler erklärt, dass er – entgegen dem in der Immobilienwirtschaft üblichen Geschäftsgebrauch des Doppelmaklers – einseitig nur für den Vermieter tätig ist.

Infrastruktur / Entfernungen

Gesundheit
Arzt <500m
Apotheke <500m
Klinik <1.000m
Krankenhaus <500m

Kinder & Schulen
Kindergarten <500m
Schule <500m
Universität <1.000m
Höhere Schule <1.000m

Nahversorgung
Supermarkt <500m
Bäckerei <500m
Einkaufszentrum <500m

Sonstige
Bank <500m
Geldautomat <500m
Post <500m
Polizei <500m

Verkehr
Bus <500m
Straßenbahn <500m
Bahnhof <1.000m
Autobahnanschluss <2.000m
Flughafen <3.000m

Angaben Entfernung Luftlinie / Quelle: OpenStreetMap

Eckdaten Objektnr. 5908/1788

Art: Wohnung
Land: Österreich
Zustand: Gepflegt
Alter: Neubau
Gesamtmiete: 794,54
Kaltmiete (netto): 555,00 €
Kaltmiete: 722,31 €
Betriebskosten: 167,31 €
MwSt Gesamt: 72,23 €
Wohnfläche: 51,00 m²
Zimmer: 2,50
Bäder: 1
WC: 1
Heizwärmebedarf:  C  96,00 kWh/m²a
Nebenkostenübersicht Miete Immobilie merken Exposé

Ausstattung

Einbauküche, Personenaufzug, Bad mit Fenster, Dusche


Immobilie anfragen


Ihre persönliche Beratung

ABRA IC GmbH

Petra Strobl

ABRA IC GmbH

T +43 664 24 733 58