Vermietete 2-Zimmer-Maisonette mit Terrasse – Anlage im klimaneutralen Neubau, vermietet bis 2034

Wohnung - Etage, 1230 Wien , Levasseurgasse


Beschreibung der Immobilie

Vermietete 2-Zimmer-Maisonette mit Terrasse – Anlage im klimaneutralen Neubau, vermietet bis 2034

Die Wohnung



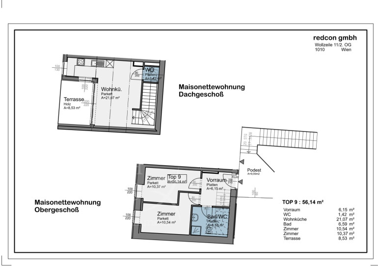
Die untere Ebene empfängt mit einem Vorzimmer, das in zwei Schlafzimmer führt. Das voll ausgestattete Badezimmer mit Dusche, Waschbecken, WC und Waschmaschinenanschluss liegt ebenfalls auf dieser Etage – praktisch und alltagstauglich.



Im Obergeschoss öffnet sich der großzügige Wohn- und Essbereich mit offener Markenküche und direktem Zugang zur Terrasse. Der Blick über die Dächer von Atzgersdorf und die zusätzliche Gästetoilette machen diese Ebene zum eigentlichen Herzstück der Wohnung. Geölter Eichenparkett, Feinsteinzeug, Fußbodenheizung und Dreifachverglasung gehören auch hier zum Standard. Die Wohnung ist über den Personenlift barrierefrei erreichbar.



Das Investment



Top 9 ist befristet vermietet bis 14. Juli 2034. Die monatliche Nettomiete beträgt € 1.026,74 – ein starker Quadratmeterpreis von € 18,29. Betriebskosten und Heizungsakonto werden direkt vom Mieter getragen, die Brutto-Monatsvorschreibung liegt bei € 1.353,58. Auf den Nettokaufpreis von € 393.199 ergibt sich eine Rendite von rund 3,13 %. Die Miete ist indexiert mit einem Schwellwert von 3 bzw. 5 %, sodass Ihr Ertrag mit der Preisentwicklung mitwächst.



Gebäude und Nachhaltigkeit



Das 2024 fertiggestellte Gebäude setzt Maßstäbe in Sachen Zukunftssicherheit: Drei Luftwärmepumpen, eine PV-Anlage mit 13,2 kWp, Dreifachverglasung und Vollwärmeschutz ergeben einen Heizwärmebedarf von nur 37 kWh/m²a. Klimaneutral und ESG-konform bedeutet das für Sie als Eigentümer keine absehbaren Investitionen in die Gebäudetechnik für die nächsten zwei Jahrzehnte.



Lage



Die Liegenschaft im Zentrum von Atzgersdorf profitiert von ausgezeichneter Infrastruktur. Die S-Bahn-Station Atzgersdorf (S2, S3, S4) und die Buslinien 56A/B, 60A/B und 64A sind fußläufig erreichbar. Supermärkte, Apotheken, Ärzte sowie die Volksschule Atzgersdorf und das Gymnasium Maurer Lange Gasse liegen in unmittelbarer Nähe. Autofahrer erreichen über die B13 rasch das gesamte Stadtgebiet.



Kaufpreis: € 432.500 (Eigennutzer) bzw. € 393.199 netto (Anleger) Nutzfläche: 56,14 m² | Gew. Nutzfläche: 58,95 m² | €/m² gew.: € 7.333



Sichern Sie sich diese ertragsstarke Maisonette mit einer der besten Renditen im gesamten Projekt. Anfragen bitte ausschließlich per E-Mail.


Wir weisen darauf hin, dass zwischen dem Vermittler und dem zu vermittelnden Dritten ein familiäres oder wirtschaftliches Naheverhältnis besteht.


Der Vermittler ist als Doppelmakler tätig.

Infrastruktur / Entfernungen

Gesundheit
Arzt <1.000m
Apotheke <250m
Klinik <500m
Krankenhaus <1.750m

Kinder & Schulen
Schule <250m
Kindergarten <500m
Universität <4.750m
Höhere Schule <4.500m

Nahversorgung
Supermarkt <250m
Bäckerei <250m
Einkaufszentrum <1.750m

Sonstige
Geldautomat <250m
Bank <250m
Post <1.750m
Polizei <1.500m

Verkehr
Bus <250m
U-Bahn <1.750m
Straßenbahn <2.000m
Bahnhof <500m
Autobahnanschluss <2.250m

Angaben Entfernung Luftlinie / Quelle: OpenStreetMap

Eckdaten Objektnr. 33846

Art: Wohnung - Etage
Land: Österreich
Zustand: Erstbezug
Alter: Neubau
Kaufpreis: 393.199,00
Betriebskosten: 125,19 €
Heizkosten: 52,24 €
MwSt Gesamt: 23,20 €
Nutzfläche: 56,14 m²
Gesamtfläche: 64,67 m²
Zimmer: 3
Bäder: 1
WC: 2
Heizwärmebedarf:  B  40,60 kWh/m²a
fGEE:  A  0,79
Nebenkostenübersicht Kauf Immobilie merken Exposé

Ausstattung

Parkett, Fliesen, Fußbodenheizung, Zentralheizung, Wohnküche / offene Küche, Westbalkon, Dusche


Immobilie anfragen


Ihre persönliche Beratung

Lisa Pedrolini

Friedrich Immobilienmanagement GmbH

T 0140280003030