Vermietete 2-Zimmer-Dachgeschosswohnung mit Terrasse – Anlage im klimaneutralen Neubau, vermietet bis 2034

Wohnung - Terrassenwohnung, 1230 Wien , Levasseurgasse


Beschreibung der Immobilie

Vermietete 2-Zimmer-Dachgeschosswohnung mit Terrasse – Anlage im klimaneutralen Neubau, vermietet bis 2034

Die Wohnung



Schon beim Betreten überzeugt der großzügige Eingangsbereich, der in den offenen Wohn- und Essbereich mit hochwertiger Markenküche übergeht. Große Fensterfronten mit Dreifachverglasung fluten die Räume mit Tageslicht, während der elektrisch bedienbare Sonnenschutz auch im Hochsommer für angenehme Temperaturen sorgt. Von hier führt der direkte Zugang auf die Terrasse – ein echtes Highlight, das den Wohnraum nach draußen erweitert und die Attraktivität für Mieter nachhaltig steigert.



Das Schlafzimmer bietet einen ruhigen Rückzugsort, das angrenzende Badezimmer ist mit Dusche, Waschbecken, Handtuchheizung und Anschlüssen für Waschmaschine und Trockner komfortabel ausgestattet. Ein separates WC ergänzt den praktischen Grundriss. Geölter Eichenparkett, hochwertiges Feinsteinzeug und Fußbodenheizung sorgen für ein Wohngefühl, das Mieter langfristig zu schätzen wissen. Die Wohnung ist über den Personenlift barrierefrei erreichbar.



Das Investment



Top 5 ist befristet vermietet bis 14. August 2034. Die monatliche Nettomiete beträgt € 845,43, was einem überdurchschnittlichen Quadratmeterpreis von € 15,89 entspricht. Betriebskosten und Heizungsakonto werden direkt vom Mieter getragen, die Brutto-Monatsvorschreibung liegt bei € 1.127,67. Auf den Nettokaufpreis von € 365.471 ergibt sich eine Rendite von rund 2,78 %. Die Miete ist indexiert mit einem Schwellwert von 3 bzw. 5 %, sodass Ihr Ertrag mit der Preisentwicklung mitwächst.



Gebäude und Nachhaltigkeit



Das 2024 fertiggestellte Gebäude setzt Maßstäbe in Sachen Zukunftssicherheit: Drei Luftwärmepumpen, eine PV-Anlage mit 13,2 kWp, Dreifachverglasung und Vollwärmeschutz ergeben einen Heizwärmebedarf von nur 37 kWh/m²a. Klimaneutral und ESG-konform bedeutet das für Sie als Eigentümer: keine absehbaren Investitionen in die Gebäudetechnik für die nächsten zwei Jahrzehnte – und eine Immobilie, die auch künftigen regulatorischen Anforderungen standhält.



Lage



Die Liegenschaft im Zentrum von Atzgersdorf profitiert von einer ausgezeichneten Infrastruktur. Die S-Bahn-Station Atzgersdorf (S2, S3, S4) und die Buslinien 56A/B, 60A/B und 64A sind fußläufig erreichbar und bringen Mieter schnell ins Stadtzentrum. Nahversorgung, Schulen und Ärzte direkt vor der Tür sichern eine konstant hohe Nachfrage am Mietmarkt. Autofahrer erreichen über die B13 rasch das gesamte Stadtgebiet.



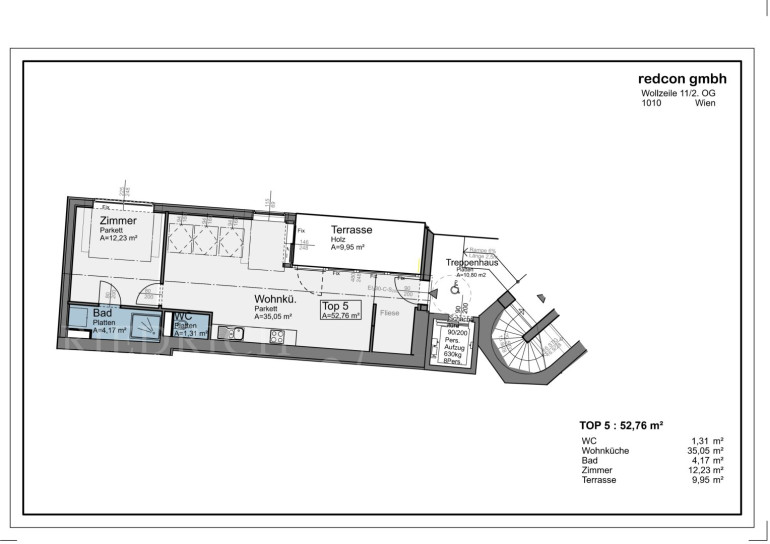
Kaufpreis: € 402.000 (Eigennutzer) bzw. € 365.471 netto (Anleger) Nutzfläche: 53,22 m² | Gew. Nutzfläche: 56,50 m² | €/m² gew.: € 7.114



Sichern Sie sich diese ertragsstarke Dachgeschosswohnung in einem der nachhaltigsten Neubauprojekte des 23. Bezirks. Anfragen bitte ausschließlich per E-Mail.


Wir weisen darauf hin, dass zwischen dem Vermittler und dem zu vermittelnden Dritten ein familiäres oder wirtschaftliches Naheverhältnis besteht.


Der Vermittler ist als Doppelmakler tätig.

Infrastruktur / Entfernungen

Gesundheit
Arzt <1.000m
Apotheke <250m
Klinik <500m
Krankenhaus <1.750m

Kinder & Schulen
Schule <250m
Kindergarten <500m
Universität <4.750m
Höhere Schule <4.500m

Nahversorgung
Supermarkt <250m
Bäckerei <250m
Einkaufszentrum <1.750m

Sonstige
Geldautomat <250m
Bank <250m
Post <1.750m
Polizei <1.500m

Verkehr
Bus <250m
U-Bahn <1.750m
Straßenbahn <2.000m
Bahnhof <500m
Autobahnanschluss <2.250m

Angaben Entfernung Luftlinie / Quelle: OpenStreetMap

Eckdaten Objektnr. 33796

Art: Wohnung - Terrassenwohnung
Land: Österreich
Zustand: Erstbezug
Alter: Neubau
Kaufpreis: 402.018,10
Betriebskosten: 118,68 €
Heizkosten: 53,65 €
MwSt Gesamt: 21,83 €
Nutzfläche: 53,22 m²
Zimmer: 2
Bäder: 1
WC: 1
Terrassen: 1
Heizwärmebedarf:  B  40,60 kWh/m²a
fGEE:  A  0,79
Nebenkostenübersicht Kauf Immobilie merken Exposé

Ausstattung

Parkett, Fliesen, Fußbodenheizung, Zentralheizung, Wohnküche / offene Küche, Personenaufzug, Badewanne


Immobilie anfragen


Ihre persönliche Beratung

Die Friedrich Makler

Friedrich Immobilienmanagement GmbH

T +43 (1) 402 8000 5000