Erstbezug im Dachgeschoss mit Terrasse und atemberaubendem Weitblick
Wohnung
- Dachgeschoß,
1120
Wien
Beschreibung der Immobilie
Erstbezug im Dachgeschoss mit Terrasse und atemberaubendem Weitblick
Im Zuge eines hochwertigen Dachgeschossausbaus entstehen in einem prachtvollen Altbau in der Ratschkygasse insgesamt 8 exklusive Wohnungen auf zwei neu geschaffenen Ebenen. Parallel dazu wird die gesamte Liegenschaft umfassend saniert und durch einen Lift, neue Kellerabteile sowie einen Fahrradabstellraum nachhaltig aufgewertet.Die Fertigstellung ist für Ende Sommer 2026 vorgesehen.
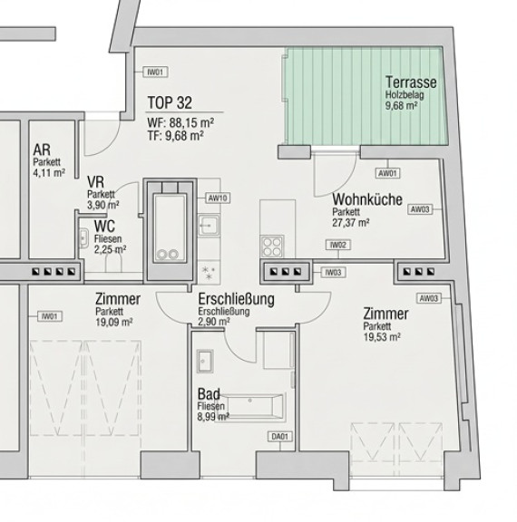
Top 32 überzeugt durch einen durchdachten Grundriss, eine Terrasse sowie einen beeindruckenden Blick über Wien. Die klare Raumstruktur schafft ein angenehmes Wohngefühl und bietet ausreichend Privatsphäre – ideal für Paare oder kleine Familien.
Das Badezimmer ist mit einem Dachfenster ausgestattet, der Wohn- und Küchenbereich überzeugt durch eine offene Gestaltung ohne Dachschrägen. Ein Abstellraum ergänzt das Raumangebot sinnvoll.
Aufgrund des aktuellen Baufortschritts können individuelle Anpassungen in Grundriss und Ausstattung noch berücksichtigt werden.
Ausstattung:
- Fußbodenheizung
- Heizung und Warmwasser über Luft-Wärmepumpe
- Vorbereitung für Klimageräte (Leerverrohrung)
- Echtholzparkettböden
- Großformatige Fliesen in den Sanitärräumen
- Anschlüsse für Wasser, Strom und Beleuchtung auf den Freiflächen
- Medienanschlüsse (UPC & A1)
Eine detaillierte Bau- und Ausstattungsbeschreibung wird auf Anfrage gerne übermittelt. Sonderwünsche können derzeit noch berücksichtigt werden.
Lage:
Die Liegenschaft befindet sich in ruhiger und gleichzeitig hervorragend angebundener Lage im 12. Wiener Gemeindebezirk. Nahversorger, Cafés und Einkaufsmöglichkeiten sind fußläufig erreichbar.
Eine sehr gute öffentliche Anbindung ist gegeben: Die Buslinien 8A, 9A und 36A befinden sich in unmittelbarer Nähe, die U6 (Bahnhof Meidling) ist in etwa 10–12 Gehminuten erreichbar. Ergänzt wird dies durch Straßenbahnlinien, die Badner Bahn sowie den Bahnhof Meidling mit S-Bahn- und Regionalzugverbindungen.
Erholungsgebiete wie Schloss Schönbrunn und der Schönbrunner Schlosspark bieten vielfältige Möglichkeiten zur Freizeitgestaltung.
Hinweise:
Doppeltätigkeit wird ausdrücklich festgehalten.
Der Energieausweis wird nachgereicht.
Wohnungseigentumsbegründung in Vorbereitung; Abweichungen von bis zu 3 % möglich.
Bearbeitung ausschließlich bei vollständigen Kontaktdaten.
Eckdaten Objektnr. 141/85375
| Art: | Wohnung - Dachgeschoß |
| Land: | Österreich |
| Baujahr: | 2026 |
| Alter: | Altbau |
| Kaufpreis: | 699.000,00 € |
| Wohnfläche: | 88,15 m² |
| Zimmer: | 3 |
| Bäder: | 1 |
| WC: | 1 |
| Terrassen: | 1 |
Ausstattung
Personenaufzug
Ihre persönliche Beratung
Dieser Makler ist ein offizielles Mitglied des IR – ir.at Mehr Erfahren
