200m² Büro in INNENSTADTNÄHE mit PARKPLÄTZEN
Büro / Praxis
- Bürofläche,
3500
Krems an der Donau
Beschreibung der Immobilie
200m² Büro in INNENSTADTNÄHE mit PARKPLÄTZEN
200m² Büro in INNENSTADTNÄHE mit PARKPLÄTZEN
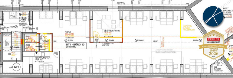
Mit knapp 200m² Bürofläche wird Ihnen mehr als genug Platz für Sie und Ihre Mitarbeiter geboten, unmittelbar in Bahnhofs- und Innenstadtnähe.
Das Office überezeugt mit seinem durchdachten und großzügigen Raumkonzept.
Die hochwertigen Dachflächenfenster durchfluten das gesamte Büro mit Sonnenlicht.
Raumaufteilung:
Eingangsbereich | getrennte WCs und Garderobe | Besprechungsraum | Großraumbüro | Teeküche
Das Büro ist an das Glasfasernetz angeschlossen und bietet so eine schnelle und sichere Datenverbindung.
Genügend Steck- und Netzwerkdosen machen es Ihnen möglich mehrere Arbeitsplätze voll auszustatten.
Weiters ist das Büro klimatisiert und bietet somit auch im Sommer angenehme Temperaturen.
Durch einen Aufzug ist das Büro barrierefrei zu erreichen.
2 Parkplätze sind in der Miete bereits inkludiert.
Weitere Parkplätze können um 50,- zuz. 20% USt angemietet werden.
2 Wallboxen für E-Autos stehen ebenso zur Verfügung.
Kostenaufstellung:
Die Nettomiete inkl. Betriebskostenakonto beträgt €2.469,92.
Zzgl. 20% USt beträgt die Gesamtmiete somit €2963,90.
Ein Akonto für Strom ist bereits in den Betriebskosten enthalten, die anteiligen Heizkosten werden vom Vermieter über einen separaten Heizzähler abgerechnet.
Weiters besteht die Möglichkeit die am Haus montierte Photovoltaikanlage mitzunützen. Hier würde ein eigens dafür eingerichteter Zähler den Verbrauch messen. Sobald die Anlage Strom produziert, wird dieser eingespeist und in Ihrer Betriebskostenabrechnung berücksichtigt.
Falls mehr Lagerfläche benötigt wird, besteht die Möglichkeit eine weitere 250m² große Lagerhalle mitzumieten.
Der Mietvertrag wird nach Absprache befristet - die Standardmietdauer beträgt 5 Jahre.
Weiters weisen wir darauf hin, dass eine Interessentenprovision von 3 Bruttomonatsmieten zzgl. 20% USt zu entrichten ist.
Bilder wurden mithilfe von KI gestaltet.
Interesse? Gerne lassen wir Ihnen ein detailliertes Angebot zukommen! Bitte haben Sie Verständnis, dass wir aufgrund der Nachweispflicht gegenüber dem Eigentümer nur Anfragen mit vollständiger Anschrift und Telefonnummer beantworten können!
KONTAKT: 0676 7704900 - Maximilian Hieke
Wir sind immer auf der Suche nach neuen Objekten. Wenn auch Sie eine Immobilie zu verkaufen oder vermieten haben, berate ich Sie gerne über den besten Weg zum Vermittlungserfolg. Ich freue mich auf Ihren Anruf!
* * * * * * * * * * * * * * * * * *
KUTTENBERGER IMMO - Vier Jahre in Folge ausgezeichnet* mit den Qualitätssiegeln IMMO CHAMPION 2023, TOP IMMO EXPERTE 2024, TOP IMMO EXPERTE 2025 und TOP IMMO EXPERTE 2026! (*von Kurier und dem IMWF - Institut für Management und Wirtschaftsforschung)
Weitere Online-Services auf www.kuttenberger-immo.at:
- Vormerkkunde werden und Angebote erhalten? - - - Suchagent anlegen - - -
- Sie möchten eine Immobilie verkaufen? - - - Beratung anfragen - - -
- Die passende Finanzierung finden? - - - Online Kreditrechner - - -
- Wieviel ist meine Immobilie wert? - - - Immobilie online bewerten - - -
- Künftig keine Immo-News verpassen? - - - Email-Newsletter anmelden - - -
* * * * * * * * * * * * * * * * * *
Wir weisen darauf hin, dass zwischen dem Vermittler und dem zu vermittelnden Dritten ein familiäres oder wirtschaftliches Naheverhältnis besteht.
Der Vermittler ist als Doppelmakler tätig.
Infrastruktur / Entfernungen
Gesundheit
Arzt <500m
Apotheke <500m
Klinik <1.000m
Krankenhaus <500m
Kinder & Schulen
Schule <500m
Kindergarten <500m
Universität <1.000m
Höhere Schule <1.000m
Nahversorgung
Supermarkt <500m
Bäckerei <500m
Einkaufszentrum <1.500m
Sonstige
Geldautomat <500m
Bank <500m
Post <500m
Polizei <1.000m
Verkehr
Bus <500m
Autobahnanschluss <1.500m
Bahnhof <500m
Flughafen <4.500m
Angaben Entfernung Luftlinie / Quelle: OpenStreetMap
Eckdaten Objektnr. 8164/2727
| Art: | Büro / Praxis - Bürofläche |
| Land: | Österreich |
| Zustand: | Gepflegt |
| Kaltmiete (netto): | 2.013,92 € |
| Kaltmiete: | 2.393,92 € |
| Betriebskosten: | 380,00 € |
| MwSt Gesamt: | 76,00 € |
| Nutzfläche: | 200,00 m² |
| Heizwärmebedarf: | B 47,01 kWh/m²a |
| fGEE: | A+ 0,70 |
Ausstattung
Parkett, Zentralheizung
Ihre persönliche Beratung
Maximilian Hieke
Kuttenberger Makler GmbH
T +43 676 7704900
H +43 676 7704900