*** Charmantes teilsaniertes Landanwesen mit 10.978 m² Grund – Ruhe, Natur und vielseitige Nutzungsmöglichkeiten nur wenige Minuten zum grünen See ***

Haus , 8612 Tal


Beschreibung der Immobilie

*** Charmantes teilsaniertes Landanwesen mit 10.978 m² Grund – Ruhe, Natur und vielseitige Nutzungsmöglichkeiten nur wenige Minuten zum grünen See ***

Ehemaliger Kleinbauernhof in herrlicher Alleinlage – gepflegtes Naturrefugium nahe Grüner See



Dieses ganz besondere Anwesen vereint, was heute nur noch selten zu finden ist: echte Alleinlage, großzügigen Grundbesitz, vielseitige Nebengebäude und ein charmantes Wohnhaus in sehr gepflegtem, teilsaniertem Zustand. Nur wenige Fahrminuten nach Großdorf-Pichl und rund 4,5 km vom Grünen See entfernt, eröffnet sich hier eine Liegenschaft für Menschen, die Ruhe, Natur, Freiraum und Authentizität zu schätzen wissen. Der Grüne See gilt als eines der bekanntesten Naturjuwele der Region Tragöß–St. Katharein im Hochschwabmassiv; auch der Freizeitsee Zenz in Pichl-Großdorf liegt in unmittelbarer Umgebung.



Auf einer Gesamtgrundstücksfläche von 10.978 m² präsentiert sich der ehemalige Kleinbauernhof als liebevoll erhaltenes Anwesen mit vielseitigem Nutzungspotenzial. Die Liegenschaft umfasst zwei Grundbücher mit Flächenwidmungen bzw. Nutzungsarten aus Landwirtschaft, Wald, Gärten, Gebäude- und Straßenfläche sowie zusätzlichen 1.737 m² Landwirtschaftsfläche. Für den Erwerb ist eine Genehmigung der Grundverkehrsbehörde einzuholen, was insbesondere bei landwirtschaftlich geprägten Liegenschaften ein wesentlicher Punkt in der Abwicklung ist.



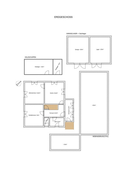
Das Wohnhaus erstreckt sich über zwei Etagen und bietet rund 125 m² Wohnfläche. Der Grundriss umfasst vier Schlafzimmer, ein Wohnzimmer, ein Bad, ein separates WC sowie ein weiteres Bad mit WC. Damit bietet das Haus ausreichend Platz für Familien, Ruhesuchende, Naturliebhaber oder auch für die Nutzung als Ferienwohnsitz mit viel Raum für Gäste. Das Gebäude wurde laufend gepflegt und in wesentlichen Bereichen bereits modernisiert: Das wärmegedämmte Dach wurde 2006 erneuert, die Kunststofffenster mit 3-Scheiben-Isolierverglasung stammen aus etwa 2010, und die Gastherme wurde 2016 erneuert. Insgesamt präsentiert sich die Immobilie in einem sehr gepflegten und solide erhaltenen Zustand.



Beheizt wird das Objekt grundsätzlich über eine Gas-Zentralheizung mit Flüssiggastank; zusätzlich befindet sich im Kellerbereich eine Holzheizung, die den ländlichen Charakter der Immobilie unterstreicht. Die Liegenschaft ist nicht an das öffentliche Wasser- und Kanalnetz angeschlossen, sondern verfügt über eigenes Brunnenwasser sowie eine Sickergrube, die regelmäßig entleert wird. Gerade für Käufer, die ein unabhängigeres Leben in naturnaher Umgebung suchen, liegt darin nicht nur eine Besonderheit, sondern auch ein reizvoller Teil des Gesamtkonzepts.



Ergänzt wird das Ensemble durch drei weitere Gebäude, die das Nutzungsspektrum deutlich erweitern. Besonders hervorzuheben ist das ehemalige, sanierte Stall-/Wirtschaftsgebäude mit Waschküche, Brunnenraum, Werkstätte, Stall, Laube, Zimmer und WC. Dazu kommen ein weiteres Gebäude mit Garage, Abstell- und Lagerflächen sowie ein Holzlagerschuppen. Damit eignet sich die Liegenschaft nicht nur als idyllischer Rückzugsort, sondern auch für Menschen mit Platzbedarf, Hobbys, handwerklichen Projekten oder dem Wunsch nach Lager- und Nutzflächen in außergewöhnlichem Ausmaß.



Die Umgebung unterstreicht den besonderen Charakter dieses Angebots: Tragöß–St. Katharein ist weithin bekannt für seine wunderschöne Wald- und Berglandschaft, für den Grünen See, für Wanderungen etwa Richtung Edelweißboden, Kamplsteig oder Marienklamm sowie für naturnahe Freizeitqualität im Wechsel der Jahreszeiten. Der Freizeitsee Zenz in Pichl-Großdorf ergänzt das Angebot um Bade-, Freizeit- und Erholungsmöglichkeiten direkt im Ort. Auch die überregionale Anbindung ist gut: Bruck an der Mur ist von Tragöß aus per Straße in etwa 25 Minuten erreichbar; zusätzlich besteht eine Busanbindung in Richtung Bruck an der Mur.



Diese Liegenschaft ist kein Objekt von der Stange, sondern eine seltene Gelegenheit für Liebhaber charaktervoller Landimmobilien. Wer ein Anwesen mit Privatsphäre, Naturverbundenheit, solider Bausubstanz, Nebengebäuden und großem Grundbesitz sucht, findet hier einen Ort mit besonderer Ausstrahlung und vielfältigen Möglichkeiten.




Highlights der Liegenschaft



  • Ehemaliger Kleinbauernhof in absoluter Alleinlage
  • 10.978 m² Gesamtgrundstücksfläche
  • 2 Grundbücher
  • Ca. 125 m² Wohnfläche auf 2 Etagen
  • 4 Schlafzimmer
  • 1 Wohnzimmer
  • 1 Bad, 1 separates WC, 1 weiteres Bad mit WC
  • Sehr gepflegter, teilsanierter Zustand
  • Dach mit Wärmedämmung erneuert (2006)
  • Kunststofffenster mit 3-fach-Isolierverglasung ca. 2010
  • Neue Gastherme ca. 2016
  • Gas-Zentralheizung mit Flüssiggastank
  • Zusätzliche Holzheizung im Keller
  • Eigenes Brunnenwasser
  • Sickergrube vorhanden
  • 3 zusätzliche Nebengebäude
  • Werkstatt-, Lager-, Garagen- und Nutzflächen in attraktivem Umfang
  • Nahe Grüner See und Freizeitsee Zenz
  • Ideales Refugium für Naturliebhaber, Ruhesuchende und Individualisten
  • Genehmigung der Grundverkehrsbehörde erforderlich



Infrastruktur / Lage



Die Liegenschaft befindet sich in ruhiger Alleinlage bei Großdorf-Pichl in der Gemeinde Tragöß–St. Katharein im Bezirk Bruck-Mürzzuschlag, eingebettet in die Naturkulisse des Hochschwabmassivs. Die Region ist besonders für den Grünen See, ihre Wander- und Naturräume sowie ihre hohe Erholungsqualität bekannt. Der Freizeitsee Zenz befindet sich direkt in Pichl-Großdorf.



Distanzen laut Verkäuferangaben bzw. regionaler Lageeinordnung:



  • ca. wenige Minuten nach Großdorf-Pichl
  • ca. 4,5 km zum Grünen See
  • wenige Minuten zum Freizeitsee Zenz
  • ca. 25 Minuten nach Bruck an der Mur


Freizeit & Erholung in der Umgebung:



  • Grüner See
  • Freizeitsee Zenz
  • Wanderungen am Kamplsteig
  • Edelweißboden
  • Marienklamm
  • Langlaufgebiet rund um den Grünen See mit rund 15 km Loipennetz

Der Vermittler ist als Doppelmakler tätig.

Infrastruktur / Entfernungen

Gesundheit
Arzt <2.000m

Kinder & Schulen
Kindergarten <7.500m
Schule <6.500m

Nahversorgung
Supermarkt <1.000m

Sonstige
Bank <7.500m
Post <7.500m
Geldautomat <8.000m

Verkehr
Bus <1.000m
Bahnhof <7.500m

Angaben Entfernung Luftlinie / Quelle: OpenStreetMap

Eckdaten Objektnr. 3812/374

Art: Haus
Land: Österreich
Baujahr: 1936
Zustand: Gepflegt
Möbliert: Teil
Alter: Altbau
Kaufpreis: 248.000,00
Betriebskosten: 220,00 €
Heizkosten: 180,00 €
Wohnfläche: 125,00 m²
Nutzfläche: 300,00 m²
Grundstücksfl.: 10.978,00 m²
Zimmer: 5
Bäder: 2
WC: 2
Balkone: 1
Stellplätze: 5
Keller: 29,00 m²
Heizwärmebedarf:  F  247,40 kWh/m²a
fGEE:  D  2,38
Nebenkostenübersicht Kauf Immobilie merken Exposé

Ausstattung

Fliesen, Laminatboden, Parkett, Gas, Zentralheizung, Einbauküche, Bad mit Fenster, Garage, Parkplatz


Immobilie anfragen


Ihre persönliche Beratung

REMAX Smart

Günter Harrer

RE/MAX Smart

T +43 3862 24717

H +43 660 756 97 30