WOHNUNG FÜR ZWEI UM € 939,- GESAMTMIETE

Wohnung , 1100 Wien


Beschreibung der Immobilie

WOHNUNG FÜR ZWEI UM € 939,- GESAMTMIETE

WOHNUNG FÜR ZWEI UM € 939,- GESAMTMIETE
In einem modernen Neubau- Wohnungshaus wird diese besondere Wohnung zur Vermietung angeboten. Die Wohnung liegt in einer ruhigen Seitenstraße des 10. Bezirks. Rufen Sie mich an und vereinbaren Sie einen unverbindlichen Besichtigungstermin.


HIGHLIGHTS
+  Neubau: Baujahr 2019

+  Viel Licht: hell, freundlich, zentral begehbar

+  Gute Verkehrsanbindung: U1 Reumannplatz in weinigen Minuten mit der Straßenbahn Linie 6 nach 4 Stationen erreichbar

+  Küche: Moderne Einbauküche mit allen Geräten

+  Sehr gute Einkaufsmöglichkeiten: Favoritenstrasse 

+  Garage: kann im eigenen Haus angemietet werden - je nach Verfügbarkeit



ECKDATEN
*  Lage: 1. Obergeschoss

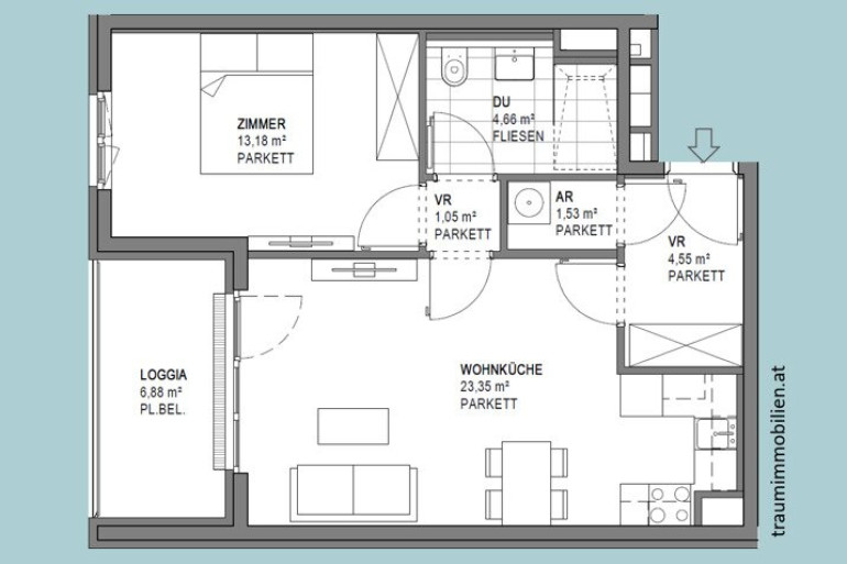
*  Gesamtfläche: 57,05 m²

*  Wohnfläche: 48,32 m²

*  Loggia: 6,88 m²

*  Kellerabteil: 1,85 m²

*  Zimmer: 2

*  Badezimmer: mit Dusche

*  WC: separateToilette

*  Lift: Ja

*  Kellerabteil: Ja

*  Heizung: Fußbodenheizung

*  TV/Internet: SAT- Anlage, UPC und Telekomanschlüsse

*  Baujahr: 2019



VERMIETUNG
*  Beziehbar: ab sofort

*  Mietdauer: befristetes Mietverhältnis für 5 Jahre mit Möglichkeit auf Verlängerung

*  Kündigungsverzicht des Mieters: 1 Jahr



KOSTEN:
o  Wohnungsmiete (monatlich): € 939,- (inklusive Betriebskosten und Mehrwertsteuer)

o  Garagenplatz (monatlich): je nach Verfügbarkeit

o  Kaution Wohnung (einmalig): € 3.900,- (wird bei Auszug wieder zurückerstattet)



SENDEN SIE MIR IHRE KONTAKTDATEN UND VEREINBAREN SIE EINEN VERLIEBUNGSTERMIN
Herr Ruhollah Ghiami, Traumimmobilien.at - Engl Immobilien GmbH, 9201 Krumpendorf, Südbahnweg 47, Tel: 0043 (660) 400-2-400 Mail: ruhollah.ghiami@traumimmobilien.at.

Eckdaten Objektnr. 39082

Art: Wohnung
Land: Österreich
Baujahr: 2019
Zustand: Erstbezug
Alter: Neubau
Gesamtmiete: 939,00
Kaltmiete (netto): 939,00 €
Kaltmiete: 939,00 €
Wohnfläche: 48,32 m²
Gesamtfläche: 57,05 m²
Zimmer: 2
Bäder: 1
WC: 1
Keller: 1,85 m²
Heizwärmebedarf:  B  29,32 kWh/m²a
fGEE:  A  0,84
Nebenkostenübersicht Miete Immobilie merken Exposé

Ausstattung

Parkett, Fliesen, Gas, Fußbodenheizung, Einbauküche, Personenaufzug, Dusche, Kabel/Satelliten-TV, Tiefgarage


Immobilie anfragen


Ihre persönliche Beratung

Traumimmobilien.at - Engl Immobilien GmbH

Ruhollah Ghiami

Traumimmobilien.at - Engl Immobilien GmbH

T 0043 (660) 400-2-400

H 0043 (660) 400-2-400