Anlegerhit beim Arsenal

Wohnung , 1110 Wien,Simmering


Öffentliche Verkehrsanbindung: Straßenbahnlinien 6 und 11, Autobuslinie 69A in unmittelbarer Nähe; S-Bahn-Station Geiselbergstraße in ca. 600 m Entfernung; Wiener Hauptbahnhof in ca. 850 m Entfernung Infrastruktur: sämtliche Einkaufsmöglichkeiten des täglichen Bedarfs sowie Freizeit- und Sporteinrichtungen in unmittelbarer Nähe vorhanden. Infrastrukturelle Einrichtungen (Kindergärten, Schulen, Ärzte …) innerhalb des Bezirks vorhanden.

Beschreibung der Immobilie

Anlegerhit beim Arsenal

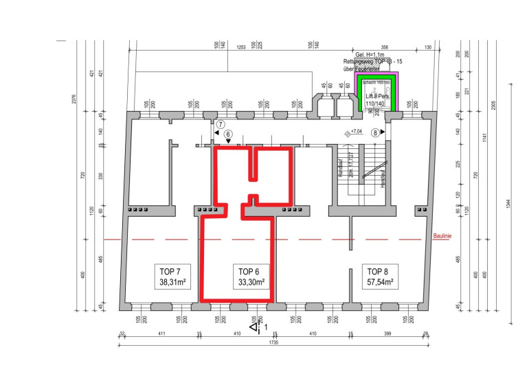
Die renovierungsbedürftige Wohnung verfügt über 33,30 m² Wohnfläche und besteht aus einem Zimmer, Kabinett und Vorraum.



Es werden in diesem Objekt mehrere Wohnungen zum Kauf angeboten.



Bei Interesse finden Sie alle Objekte auf www.myimmo.at.



In zentraler Lage werden insgesamt 10 renovierungsbedürftige Altbauwohnungen mit ein bis zwei Zimmern zwischen 26 m² und 57 m² zum Verkauf angeboten.

Bei Erwerb von nebeneinanderliegenden Wohnungen ist eine Zusammenlegung möglich.



Das im Jahr 1903 errichtete Zinshaus wurde nach einem Bombenschaden im 2. Weltkrieg ohne Fördermittel Wiederhergestellt (Baubescheid vom 28.04.1949). 

Somit ist eine Vermietung zum angemessenen Mietzins (siehe §16 Abs. 1 Z  2 MRG) erlaubt.

Aufgrund der Widmung ist auch eine kurzfristige Apartmentvermietung möglich.



Im Zuge des baubewilligten Dachgeschossausbaues wird ein Lift eingebaut und das Dach erneuert.



________________________________________



Wir erlauben uns Sie auf das wirtschaftliche Näheverhältnis zur Verkäuferin hinzuweisen.



Die Vermittlungsprovision beträgt 3 % vom Kaufpreis zzgl. 20 % USt.



Für weitere Frage steht Ihnen Herr GEYIK gerne unter +43 1 810 10 21 - 12 zur Verfügung.


Wir weisen darauf hin, dass zwischen dem Vermittler und dem zu vermittelnden Dritten ein familiäres oder wirtschaftliches Naheverhältnis besteht.


Der Vermittler ist als Doppelmakler tätig.

Infrastruktur / Entfernungen

Gesundheit
Arzt <500m
Apotheke <500m
Klinik <500m
Krankenhaus <2.500m

Kinder & Schulen
Schule <500m
Kindergarten <500m
Universität <1.000m
Höhere Schule <2.000m

Nahversorgung
Supermarkt <500m
Bäckerei <1.000m
Einkaufszentrum <1.500m

Sonstige
Geldautomat <1.000m
Bank <1.000m
Post <500m
Polizei <1.500m

Verkehr
Bus <500m
U-Bahn <1.500m
Straßenbahn <500m
Bahnhof <1.000m
Autobahnanschluss <500m

Angaben Entfernung Luftlinie / Quelle: OpenStreetMap

Eckdaten Objektnr. 1155/2882

Art: Wohnung
Land: Österreich
Baujahr: 1903
Zustand: Teil_vollrenovierungsbed
Alter: Altbau
Kaufpreis: 98.000,00
Betriebskosten: 123,82 €
Wohnfläche: 33,30 m²
Nutzfläche: 33,30 m²
Heizwärmebedarf:  F  243,00 kWh/m²a
fGEE:  D  2,23
Nebenkostenübersicht Kauf Immobilie merken Exposé

Immobilie anfragen


Ihre persönliche Beratung

Serkan Geyik

myImmo GmbH

T +43 1 810 10 21 - 12

F + 43 1 810 10 21 - 89