Nachhaltiges Wohnen mit Terrasse und Garten – Neuwertige 3-Zimmer-Wohnung für Anleger

Wohnung - Terrassenwohnung, 1230 Wien , Levasseurgasse


Diese charmante Terrassenwohnung in der Levasseurgasse 1230 Wien besticht durch ihre ideale Lage. In unmittelbarer Nähe finden Sie alles, was das Herz begehrt: Arzt, Apotheke und Klinik für Ihre Gesundheit, Schulen und Kindergärten für die Kleinen sowie zahlreiche Einkaufsmöglichkeiten wie Supermärkte und Bäckereien. Auch Geldautomaten und Banken sind schnell erreichbar. Die Anbindung an öffentliche Verkehrsmittel, Bus und Bahnhof, sorgt für eine bequeme Mobilität in die Innenstadt und darüber hinaus.

Beschreibung der Immobilie

Nachhaltiges Wohnen mit Terrasse und Garten – Neuwertige 3-Zimmer-Wohnung für Anleger


Ihre Chance im Herzen von Atzgersdorf



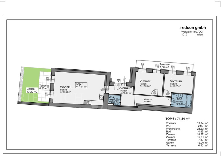
Diese neuwertige Erdgeschosswohnung mit 69,28 m² Wohnfläche, Terrasse (14,30 m²) und eigenem Gartenanteil (13,20 m²) vereint modernes Wohnen mit nachhaltigem Komfort – und eignet sich als renditestarke Kapitalanlage.



Die Wohnung



Drei helle Zimmer und eine offene Wohnküche bieten ein durchdachtes Raumkonzept für Singles, Paare oder kleine Familien. Hochwertige Ausstattung ist selbstverständlich: geölter Eichenparkett, Feinsteinzeug in den Nassräumen, eine Markenküche inklusive Geräten sowie ein stilvolles Badezimmer mit Badewanne. Über die Wohnräume gelangen Sie direkt auf die großzügige Terrasse und in den privaten Garten – ein persönlicher Rückzugsort im Grünen, mitten in der Stadt.



Nachhaltigkeit, die sich rechnet



Das gesamte Gebäude wurde 2024 fertiggestellt und erfüllt höchste ökologische Standards: Drei Luftwärmepumpen mit Fußbodenheizung, eine PV-Anlage mit 13,2 kWp, Dreifachverglasung und Vollwärmeschutz sorgen für einen Heizwärmebedarf von nur 37 kWh/m²a. Das bedeutet minimale Betriebskosten und keine absehbaren Investitionen in Energietechnik für die nächsten 20 bis 25 Jahre – ein ESG-konformes Gebäude, das für kommende gesetzliche Anforderungen bestens gerüstet ist.



Für Anleger



Die Wohnung lässt sich auf Basis der aktuellen Marktmieten zu einer monatlichen Nettomiete von rund € 1.178 vermieten, was einer Nettorendite von ca. 3,16 % auf den Kaufpreis entspricht. Die übrigen neun Einheiten im Haus sind bereits langfristig auf zehn Jahre befristet vermietet – ein stabiles, erprobtes Mieterumfeld mit indexierten Mietverträgen. Für Anleger gilt ein attraktiver Nettokaufpreis von € 447.292 (zzgl. USt).



Die Lage



Im Zentrum von Atzgersdorf liegt alles in Gehweite: Supermärkte, Apotheke, Ärzte, Volksschule und Gymnasium. Die Buslinien 56A/B, 60A/B und 64A sowie die S-Bahn-Station Atzgersdorf (S2, S3, S4) sorgen für eine schnelle Anbindung an die Wiener Innenstadt. Autofahrer erreichen über die B13 rasch das gesamte Stadtgebiet.



Vereinbaren Sie jetzt Ihren Besichtigungstermin – Anfragen bitte ausschließlich per E-Mail.


Wir weisen darauf hin, dass zwischen dem Vermittler und dem zu vermittelnden Dritten ein familiäres oder wirtschaftliches Naheverhältnis besteht.


Der Vermittler ist als Doppelmakler tätig.

Infrastruktur / Entfernungen

Gesundheit
Arzt <1.000m
Apotheke <250m
Klinik <500m
Krankenhaus <1.750m

Kinder & Schulen
Schule <250m
Kindergarten <500m
Universität <4.750m
Höhere Schule <4.500m

Nahversorgung
Supermarkt <250m
Bäckerei <250m
Einkaufszentrum <1.750m

Sonstige
Geldautomat <250m
Bank <250m
Post <1.750m
Polizei <1.500m

Verkehr
Bus <250m
U-Bahn <1.750m
Straßenbahn <2.000m
Bahnhof <500m
Autobahnanschluss <2.250m

Angaben Entfernung Luftlinie / Quelle: OpenStreetMap

Eckdaten Objektnr. 33841

Art: Wohnung - Terrassenwohnung
Land: Österreich
Zustand: Neuwertig
Alter: Neubau
Kaufpreis: 447.292,00
Betriebskosten: 154,49 €
Heizkosten: 79,82 €
MwSt Gesamt: 30,83 €
Nutzfläche: 69,28 m²
Zimmer: 3
Bäder: 1
WC: 1
Terrassen: 1
Garten: 13,20 m²
Heizwärmebedarf:  B  40,60 kWh/m²a
fGEE:  A  0,79
Nebenkostenübersicht Kauf Immobilie merken Exposé

Ausstattung

Fliesen, Parkett, Fußbodenheizung, Zentralheizung, Wohnküche / offene Küche, Ostbalkon, Badewanne


Immobilie anfragen


Ihre persönliche Beratung

Lisa Pedrolini

Friedrich Immobilienmanagement GmbH

T 0140280003030