Geräumige, attraktive Gewerbefläche (Handel/Praxis/Büro/Lager) in Brunn am Gebirge zu vermieten!

Einzelhandel , 2345 Brunn am Gebirge


Diese Gewerbeimmobilie in 2345 Brunn am Gebirge besticht durch ihre zentrale Lage direkt im Gewerbegebiet mit bester Anbindung direkt an die Autobahn. Die unmittelbarer Nähe sowohl zur A2 als auch zur A21 und Triester Straße garantiert optimale Erreichbarkeit. Auch eine gute Anbindung an öffentliche Verkehrsmittel (Baden bahn und Regionalbusse) ist gegeben.

Beschreibung der Immobilie

Geräumige, attraktive Gewerbefläche (Handel/Praxis/Büro/Lager) in Brunn am Gebirge zu vermieten!

Diese großzügige Handels/Büro/ Industrie- und Gewerbefläche mit beeindruckenden 1.490 m² Nutzfläche bietet vielfältige Möglichkeiten zur Verwirklichung unterschiedlichster Geschäftsideen. 



Die Immobilie besticht durch ihre hervorragende Lage in Brunn am Gebirge, Niederösterreich. Die exzellente Verkehrsanbindung mit der Nähe zu A2, A21 und Triester Straße ermöglicht KundInnen und MitarbeiterInnen eine einfache und schnelle Erreichbarkeit. Direkt vor Ort befindet sich außerdem eine Bushaltestelle und der Autobahnanschluss ist nur wenige Minuten entfernt – so ist man bestens mit der Region und dem überregionalen Verkehrsnetz verbunden.



Nicht nur die Anbindung, auch die Infrastruktur rund um den Standort überzeugt: In unmittelbarer Nähe befinden sich - mit der SCS unweit vom Standort - unzählige Einkaufsmöglichkeiten, ein Mc Donalds sowie Arztpraxen, eine Apotheke, Schulen und Kindergärten sowie ein Supermärkte (z.B. Billa, ...). Parkplätze direkt vor Ort sichern ein bequemes Einkaufserlebnis. Dies alles verspricht eine nachhaltig hohe Kundenfrequenz. 



Das Objekt bietet eine attraktive Möglichkeit, in eine hochwertige Gewerbefläche zu investieren, die sich durch Flexibilität und Vielseitigkeit auszeichnet sowie die Chance, ein Unternehmen an einem strategisch günstigen Standort zu positionieren und von der starken Infrastruktur zu profitieren.



Ihre Vorteile:



  • Direkte Kundenparkplätze vor dem Eingangsbereich 
  • Flächen Klimatisiert
  • Hochregal Lagerfläche im Erdgeschoss direkt angebunden 
  • Büro/Lagerfläche im OG
  • Beste Sichtbarkeit und sehr attraktive Lage


Für Rückfragen steht Ihnen Herr Mag. Philipp Mayer unter 0686 370 60 95 zur Verfügung. 


Der Vermittler ist als Doppelmakler tätig.

Infrastruktur / Entfernungen

Gesundheit
Arzt <1.000m
Apotheke <500m
Klinik <3.500m
Krankenhaus <3.000m

Kinder & Schulen
Schule <1.000m
Kindergarten <1.000m
Universität <8.000m
Höhere Schule <5.000m

Nahversorgung
Supermarkt <500m
Bäckerei <1.500m
Einkaufszentrum <1.500m

Sonstige
Geldautomat <500m
Bank <500m
Post <2.000m
Polizei <1.500m

Verkehr
Bus <500m
U-Bahn <2.000m
Straßenbahn <4.000m
Bahnhof <1.500m
Autobahnanschluss <1.000m

Angaben Entfernung Luftlinie / Quelle: OpenStreetMap

Eckdaten Objektnr. 446

Art: Einzelhandel
Land: Österreich
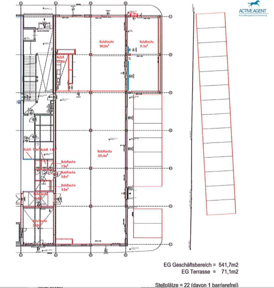
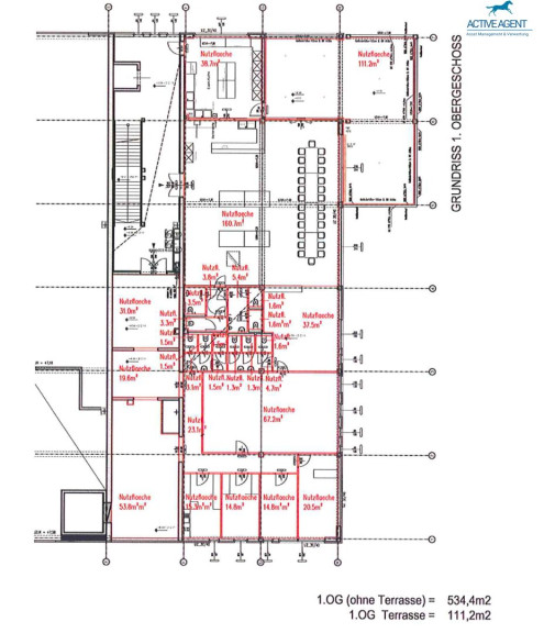
Nutzfläche: 1.490,00 m²
Gesamtfläche: 1.490,00 m²
Lagerfläche: 303,00 m²
Verkaufsfläche: 542,00 m²
Bürofläche: 645,00 m²
Nebenkostenübersicht Miete Immobilie merken Exposé

Ausstattung

Dielenboden, Estrichboden, Fliesen, Einbauküche, Personenaufzug, Parkplatz, Gastterrasse


Immobilie anfragen


Ihre persönliche Beratung

Active Agent GmbH

Mag. Philipp Mayer

Active Agent GmbH

T +43 676 370 60 95