Stilvolle Altbauwohnung mit viel Licht in zentraler Lage!
Wohnung
,
1020
Wien
,
Zirkusgasse
Die Wohnung befindet sich in zentraler und absolut gefragter Lage des 2. Bezirks. Die Umgebung überzeugt durch ihre hervorragende Infrastruktur mit zahlreichen Einkaufsmöglichkeiten, Restaurants und Cafés in unmittelbarer Nähe. Die Anbindung an den öffentlichen Verkehr ist ausgezeichnet: Die U-Bahn-Linie U1 (Nestroyplatz) befindet sich unmittelbarer Nähe und ermöglicht eine schnelle Verbindung in die Innenstadt. Zusätzlich stehen Straßenbahn- und Buslinien sowie der Verkehrsknotenpunkt Praterstern mit S-Bahn-Anschluss zur Verfügung. Die Innenstadt ist fußläufig erreichbar. Auch Erholungsmöglichkeiten wie der nahegelegene Prater bieten einen idealen Ausgleich zum urbanen Leben.
Beschreibung der Immobilie
Stilvolle Altbauwohnung mit viel Licht in zentraler Lage!
Stilvolle Altbauwohnung mit viel Licht in zentraler Lage!
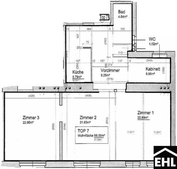
Diese großzügige und lichtdurchflutete Wohnung befindet sich im 1. Liftstock über Mezzanin eines gepflegten Wohnhauses und besticht durch ihren klassischen Charme sowie einen durchdachten Grundriss auf rund 98 m² Wohnfläche.
Die Wohnung verfügt über drei geräumige Zimmer, die vielseitig genutzt werden können – ob als Wohn-, Schlaf- oder Arbeitsbereiche. Ergänzt wird das Raumangebot durch ein kleines, separates Kabinett, das sich ideal als Homeoffice, Gästezimmer oder praktischer Stauraum anbietet.
Die Küche ist separat angelegt und ermöglicht eine klare Trennung zwischen Wohn- und Kochbereich. Das Badezimmer ist vom WC getrennt, was zusätzlichen Komfort im Alltag schafft.
Dank der südlichen Ausrichtung präsentiert sich die Wohnung besonders hell und freundlich. Großzügige Fensterflächen sorgen den ganzen Tag über für ein angenehmes Wohngefühl. Der Blick in Richtung Schrottgießergasse unterstreicht die attraktive, urbane Lage.
Die Fakten:
- ca. 98 m² Wohnfläche
- 1. Liftstock über Mezzanin
- 3 Zimmer + separates Kabinett
- getrenntes Badezimmer und WC
- separate Küche
- südseitige Ausrichtung der Haupträume
Diese Wohnung vereint klassischen Wohnkomfort mit urbaner Lebensqualität und eignet sich ideal für Paare, Familien oder anspruchsvolle Stadtliebhaber.
Wir weisen darauf hin, dass zwischen dem Vermittler und dem zu vermittelnden Dritten ein familiäres oder wirtschaftliches Naheverhältnis besteht.
Der Vermittler ist als Doppelmakler tätig.
Infrastruktur / Entfernungen
Gesundheit
Arzt <250m
Apotheke <250m
Klinik <750m
Krankenhaus <250m
Kinder & Schulen
Schule <250m
Kindergarten <250m
Universität <250m
Höhere Schule <1.250m
Nahversorgung
Supermarkt <250m
Bäckerei <250m
Einkaufszentrum <1.000m
Sonstige
Geldautomat <500m
Bank <500m
Post <500m
Polizei <250m
Verkehr
Bus <250m
U-Bahn <250m
Straßenbahn <500m
Bahnhof <250m
Autobahnanschluss <3.000m
Angaben Entfernung Luftlinie / Quelle: OpenStreetMap
Eckdaten Objektnr. 95993
| Art: | Wohnung |
| Land: | Österreich |
| Zustand: | Gepflegt |
| Alter: | Altbau |
| Kaufpreis: | 899.000,00 € |
| Betriebskosten: | 139,48 € |
| MwSt Gesamt: | 13,95 € |
| Wohnfläche: | 97,86 m² |
| Zimmer: | 4 |
| Bäder: | 1 |
| WC: | 1 |
| Heizwärmebedarf: | E 161,90 kWh/m²a |
| fGEE: | E 2,82 |
Ausstattung
Parkett, Fliesen, Gas, Etagenheizung, Einbauküche, Personenaufzug, Badewanne
Ihre persönliche Beratung
Dieser Makler ist ein offizielles Mitglied des IR – ir.at Mehr Erfahren
