Erstbezug im Cottageviertel! Moderne 3-Zimmer-Neubauwohnung mit 2 Balkonen in Ruhelage (1170 Wien) !!

Wohnung , 1170 Wien


Das Objekt befindet sich in einer der gefragtesten Wohngegenden Wiens – dem Cottageviertel im 17. Bezirk. Die Kombination aus ruhigem, grünem Wohnumfeld und ausgezeichneter Infrastruktur macht diese Lage besonders attraktiv. Öffentliche Verkehrsmittel, Einkaufsmöglichkeiten und Naherholungsgebiete sind bequem erreichbar.

Beschreibung der Immobilie

Erstbezug im Cottageviertel! Moderne 3-Zimmer-Neubauwohnung mit 2 Balkonen in Ruhelage (1170 Wien) !!

Diese exklusive 3-Zimmer-Neubauwohnung im begehrten Cottageviertel von Hernals vereint stilvolles Wohnen mit höchstem Komfort und einer erstklassigen Lage.



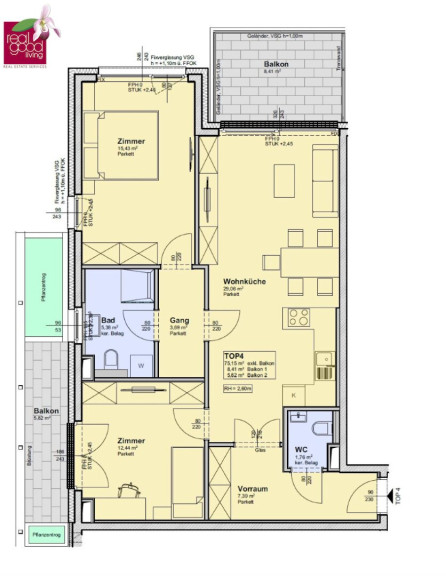
Auf rund 75 m² Wohnfläche überzeugt die Wohnung durch eine durchdachte Raumaufteilung, helle Räume und hochwertige Ausstattung. Die großzügige Wohnküche (ca. 29 m²) bildet das Herzstück der Wohnung, während zwei Schlafzimmer ausreichend Platz für Familie, Gäste oder Homeoffice bieten.



Besonderes Highlight sind die zwei Balkone mit schönem Grünblick, die zum Entspannen in absoluter Ruhelage einladen.



Die Wohnung wird im Erstbezug übergeben und ist sofort bezugsfertig.




Highlights auf einen Blick:



  • Toplage im Cottageviertel Hernals
  • Erstbezug im modernen Neubau
  • Ca. 75 m² Wohnfläche + 2 Balkone
  • Großzügige Wohnküche
  • 2 Schlafzimmer
  • Fußbodenheizung (Zentralheizung – Gas)
  • Hochwertige Ausstattung (Parkett & Fliesen)
  • Außenliegender Sonnenschutz
  • Personenaufzug
  • Kellerabteil inklusive
  • Absolute Ruhelage mit Grünblick
  • Energieeffizient (HWB: 33,89 kWh/m²a)


? Raumaufteilung



  • Vorraum: 7,39 m²
  • Wohnküche: 29,06 m²
  • Schlafzimmer 1: 12,14 m²
  • Schlafzimmer 2: 15,43 m²
  • Badezimmer: 5,38 m²
  • Abstellraum: 1,48 m²


Außenflächen:



  • Balkon 1: 5,82 m²
  • Balkon 2: 8,41 m²


Zusätzlich:



  • Kellerabteil: ca. 2 m²


Kaufpreis & Konditionen



  • Kaufpreis: € 697.000,-
  • Tiefgaragenplatz (optional): € 35.000,-
  • Provision: 3 % zzgl. 20 % USt.



? Kontakt



Bruno Franz
? +43 664 355 3790




ℹ️ Hinweis



Die dargestellten Fotos können teilweise Symbolbilder sein.



Bitte beachten Sie, dass Anfragen nur mit vollständigen Kontaktdaten (inkl. Telefonnummer) bearbeitet werden können.



Gerne unterstützen wir Sie auch bei der Finanzierung und finden gemeinsam mit unseren langjährigen Partnern die besten Konditionen.




Wir weisen darauf hin, dass zwischen dem Vermittler und dem zu vermittelnden Dritten ein familiäres oder wirtschaftliches Naheverhältnis besteht.


Der Vermittler ist als Doppelmakler tätig.

Infrastruktur / Entfernungen

Gesundheit
Arzt <1.000m
Apotheke <1.500m
Klinik <2.000m
Krankenhaus <1.500m

Kinder & Schulen
Schule <1.500m
Kindergarten <1.000m
Universität <1.000m
Höhere Schule <3.000m

Nahversorgung
Supermarkt <1.000m
Bäckerei <1.000m
Einkaufszentrum <1.500m

Sonstige
Geldautomat <1.500m
Bank <1.500m
Post <1.000m
Polizei <2.000m

Verkehr
Bus <500m
U-Bahn <2.500m
Straßenbahn <1.000m
Bahnhof <2.000m
Autobahnanschluss <6.000m

Angaben Entfernung Luftlinie / Quelle: OpenStreetMap

Eckdaten Objektnr. 4356/454

Art: Wohnung
Land: Österreich
Zustand: Erstbezug
Alter: Neubau
Kaufpreis: 697.000,00
Wohnfläche: 75,00 m²
Zimmer: 3
Bäder: 1
WC: 2
Balkone: 2
Stellplätze: 1
Keller: 2,00 m²
Heizwärmebedarf:  B  3.389,00 kWh/m²a
Nebenkostenübersicht Kauf Immobilie merken Exposé

Ausstattung

Fliesen, Parkett, Gas, Fußbodenheizung, Personenaufzug, Dusche, Kabel/Satelliten-TV, Tiefgarage


Immobilie anfragen


Ihre persönliche Beratung

RealGoodLiving Real Estate Services GmbH

Bruno Franz

RealGoodLiving Real Estate Services GmbH

T +43 660 245 44 57

H +43 664 3553 790